Vente Maison 6 pièces 117 m²

Maison - 6 pièce(s) - 117 m²

285 525 € *
  •   Référence : 1041872_1005120_3681761
  •   Dernière mise à jour : 02/03/2026

A
Classe Énergie
50 kWh/m² an
info
NC
Indice d'émissions de gaz à effet de serre
Non communiqué
info
Pour la nouvelle notation (DPE à partir de juillet 2021), c'est la plus mauvaise des deux performances (énergie, climat) qui est retenue.

Le Thuit (27700)

VENTE d'une maison de 6 pièces (117 m²) au Thuit de l'Oison
IDÉALEMENT SITUÉE - MAISON 6 PIÈCES NEUVE
À vendre à deux pas de Rouen, ayez le coup de coeur pour cette maison de 6 pièces de 117 m², idéalement située dans Le Thuit de l'Oison (27370).
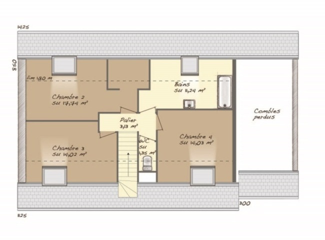
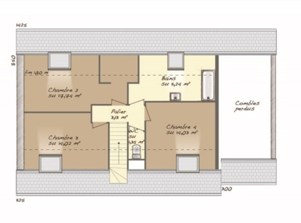
Elle compte quatre chambres, une cuisine ouverte sur l'espace de vie , d'un cellier donnant sur le garage et deux salles de bains. La maison est neuve bénéficiant de la norme RE20.
Le terrain de la propriété est de 626 m².
La maison se trouve dans un quartier prisé.
Son prix de vente est de 285 525 €.
Contactez notre agence (Fanny GATINAULT : ) pour tout renseignement sur la maison. Maisons Balency Louviers est là pour vous accompagner dans tous vos projets immobiliers.

Annonce proposée par un Agent Commercial Partenaire.

Nos offres de terrains sont proposées en collaboration avec nos partenaires fonciers pour des maisons dans le cadre de la loi du 10/12/1990, selon disponibilité.
Surface habitable : 117m2.
Nombre de pièces : 6.
Nombre de chambres : 4.
Prix terrain seul : 69000 euros.

Terrain proposé par un partenaire foncier selon disponibilités et autorisation de publicité au prix de 69 000 €. Hors droit d'enregistrement et frais de notaire. Terrain + Maison proposés au prix de 285 525 € (Hors branchements et raccordements, papiers peints, peintures, revêtement de sol dans les chambres. Tarif modifiable sans préavis). Etiquette énergie : A. Différents modèles disponibles pour ce terrain. Assurances et garanties du constructeur (RC professionnelle, décennale, dommage ouvrage, garantie de remboursement de l'acompte, livraison à prix et délai convenu) : HEXAOM Services est enregistré auprès de l'ORIAS en tant que Courtier en financement, Niveau 1, sous le numéro 14001345.

MAISONS BALENCY 7 boulevard Georges Clémenceau 27400 Louviers
Référence : FG2444558_1



Bien En copropriété : non

* Prix net, hors frais notarié, d'enregistrement et de publicité foncière.

Contactez
MAISONS BALENCY

Adresse postale

7 boulevard Georges Clémenceau
27400 Louviers
Itinéraire

Site internet

maisons-balency.fr

N° de téléphone

Nous contacter

Contactez-nous pour l'annonce "Le Thuit (27700)", Réf. : 1041872_1005120_3681761

* Tous les champs sont obligatoires ** En cas de transmission de coordonnées téléphoniques vous reconnaissez accepter expressément d'être rappelé par l'annonceur