Vente Maison 4 pièces 64 m²

Maison - 4 pièce(s) - 64 m²

168 480 € *
  •   Référence : 1005411_1005133_3698100
  •   Dernière mise à jour : 19/04/2026

A
Classe Énergie
50 kWh/m² an
info
NC
Indice d'émissions de gaz à effet de serre
Non communiqué
info
Pour la nouvelle notation (DPE à partir de juillet 2021), c'est la plus mauvaise des deux performances (énergie, climat) qui est retenue.

Mosnes (37530)

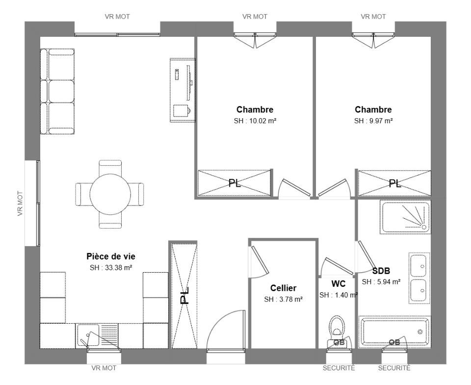
Venez faire construire cette belle maison de 64 m² offrant un espace de vie très lumineux grâce à une triple exposition.
Elle comprend deux belles chambres avec placards intégrés pour un rangement optimisé.
La salle de bains, spacieuse, peut accueillir à la fois une douche, une baignoire et une double vasque pour un confort maximal.
La maison est équipée d'une climatisation réversible pour chauffer ou rafraîchir selon les saisons.
Je reste disponible pour toutes demandes de renseignements, n'hésitez pas me contacter : Stéphane Digneton : O

Nos offres de terrains sont proposées en collaboration avec nos partenaires fonciers pour des maisons dans le cadre de la loi du 10/12/1990, selon disponibilité.
Surface habitable : 64m2.
Nombre de pièces : 4.
Nombre de chambres : 2.
Prix terrain seul : 40480 euros.

Terrain proposé par un partenaire foncier selon disponibilités et autorisation de publicité au prix de 40 480 €. Hors droit d'enregistrement et frais de notaire. Terrain + Maison proposés au prix de 168 480 € (Hors branchements et raccordements, papiers peints, peintures, revêtement de sol dans les chambres. Tarif modifiable sans préavis). Etiquette énergie : A. Différents modèles disponibles pour ce terrain. Assurances et garanties du constructeur (RC professionnelle, décennale, dommage ouvrage, garantie de remboursement de l'acompte, livraison à prix et délai convenu) :

CONSTRUCTIONS IDEALE DEMEURE 2 rue Thérèse et René Planiol 37540 Saint-Cyr-sur-Loire
Référence : SD2460621_2



Bien En copropriété : non

* Prix net, hors frais notarié, d'enregistrement et de publicité foncière.

Contactez
CONSTRUCTIONS IDEALE DEMEURE

Adresse postale

2 rue Thérèse et René Planiol
37540 Saint-Cyr-sur-Loire
Itinéraire

N° de téléphone

Siret : 39083611200024

Nous contacter

Contactez-nous pour l'annonce "Mosnes (37530)", Réf. : 1005411_1005133_3698100

* Tous les champs sont obligatoires ** En cas de transmission de coordonnées téléphoniques vous reconnaissez accepter expressément d'être rappelé par l'annonceur