Paris 16 (75016)

PARIS (75016)

1 365 000 € *
  •   Référence : 14202344_9711
  •   Dernière mise à jour : 23/01/2026

NC
Classe Énergie
Non communiqué
info
NC
Indice d'émissions de gaz à effet de serre
Non communiqué
info
Pour la nouvelle notation (DPE à partir de juillet 2021), c'est la plus mauvaise des deux performances (énergie, climat) qui est retenue.

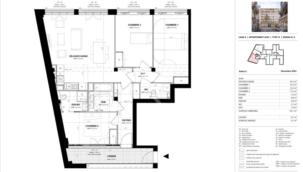
Une réalisation d'exception mêlant réhabilitation d'un patrimoine existant et construction neuve, au coeur du très prisé 16e arrondissement de Paris. Idéalement située au 19 rue de Passy, cette adresse d'exception N.19 PASSY conjugue élégance intemporelle et modernité architecturale. Les appartements, du studio au 5 pièces (DUPLEX,TRIPLEX), se distinguent par leurs volumes généreux, leurs prestations haut de gamme et leurs espaces extérieurs privatifs : terrasses, loggias ou jardins suspendus. Certains logements bénéficient de vues remarquables sur les toits de Paris et la Tour Eiffel, offrant un art de vivre unique entre histoire et contemporanéité. Contactez-nous dès maintenant pour plus d'informations et pour organiser une visite ! LES + ARGOS CONSEIL : Prix direct promoteur (possibilité d'offres commerciales ou de frais de notaire offerts selon offres commerciales) Possibilité de rendez vous physique dans nos bureaux Accès à plus de 600 programmes en Ile de France et 3.000 en France Frais de notaire réduit Possibilité de TVA réduite (Selon éligibilité) Accompagnement dans les démarches administratives et suivi avec les promoteurs Accompagnement dans la sélection de biens immobiliers Les honoraires sont à la charge du vendeur Accompagnement dans l'obtention du financement

Bien En copropriété : Non
Procédure sur le Syndicat des copropriétaires : NC

* Prix net, hors frais notarié, d'enregistrement et de publicité foncière.

Contactez
L'ADRESSE ROMAINVILLE

Adresse postale

57 Avenue de Verdun
93230 Romainville
Itinéraire

N° de téléphone

Siret : 49330611200035

Nous contacter

Contactez-nous pour l'annonce "Appartement d'exception avec vue Tour Eiffel Paris 16 4 pièce(s) 104.2 m2", Réf. : 14202344_9711

* Tous les champs sont obligatoires ** En cas de transmission de coordonnées téléphoniques vous reconnaissez accepter expressément d'être rappelé par l'annonceur