Aix les bains (73100)
AIX LES BAINS (73100)
666 000
€ *
- Référence : 73028812
- Dernière mise à jour : 18/01/2026
Pour la nouvelle notation (DPE à partir de juillet 2021), c'est la plus mauvaise des deux performances (énergie, climat) qui est retenue.
Informations sur les risques (ERP)
Les informations sur les risques auxquels ce bien est exposé sont disponibles sur le site Géorisques : https://www.georisques.gouv.fr
À Aix-les-Bains, dans la prestigieuse résidence « Les Nouveaux Thermes »
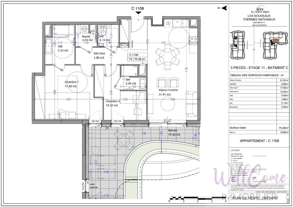
- Découvrez cet appartement 3 pièces de 75,28m² située au 11ème étage côté Ouest.
Cet appartement haut de gamme comprend : pièce de vie de 31,91 m² accueillant séjour cuisine et prolongée par un balcon végétalisé de 19,60 m² côté Ouest.
L'espace nuit comprend un dégagement, une chambre de 17m², une chambre de 10,22m² avec salle d'eau, une salle de bains, une buanderie, un wc.
Box en sous-sol sécurisé inclus.
La résidence se distingue par ses prestations premium et son engagement environnemental : façades végétalisées sur 3,5 km, plus de 15 000 plantes, toitures vertes, récupération des eaux pluviales et planchers chauffants/rafraîchissants par géothermie.
Contactez votre agence WellCome Immobilier pour réserver cet appartement d'exception parmi les premiers lots disponibles ! D'autres appartements neufs du T1 au T6 sont également proposés.
Frais de notaire réduits
Programme certifié RE2020 seuil 2022 & NF Habitat HQE
Livraison prévue 1er trimestre 2029 Surface CARREZ : 75.28 m²
Numéro de mandat : VLNT/C1108
Plus d'information :
- Calme
Précision localisation : centre ville, animations, école, commerces, bus, gare
Honoraires à la charge du Vendeur
Bien En copropriété : OUI
Nombre de lots de la copropriété : 219
Montant moyen des Charges annuelles : 0.00 euros
Procédure sur le Syndicat des copropriétaires : NON
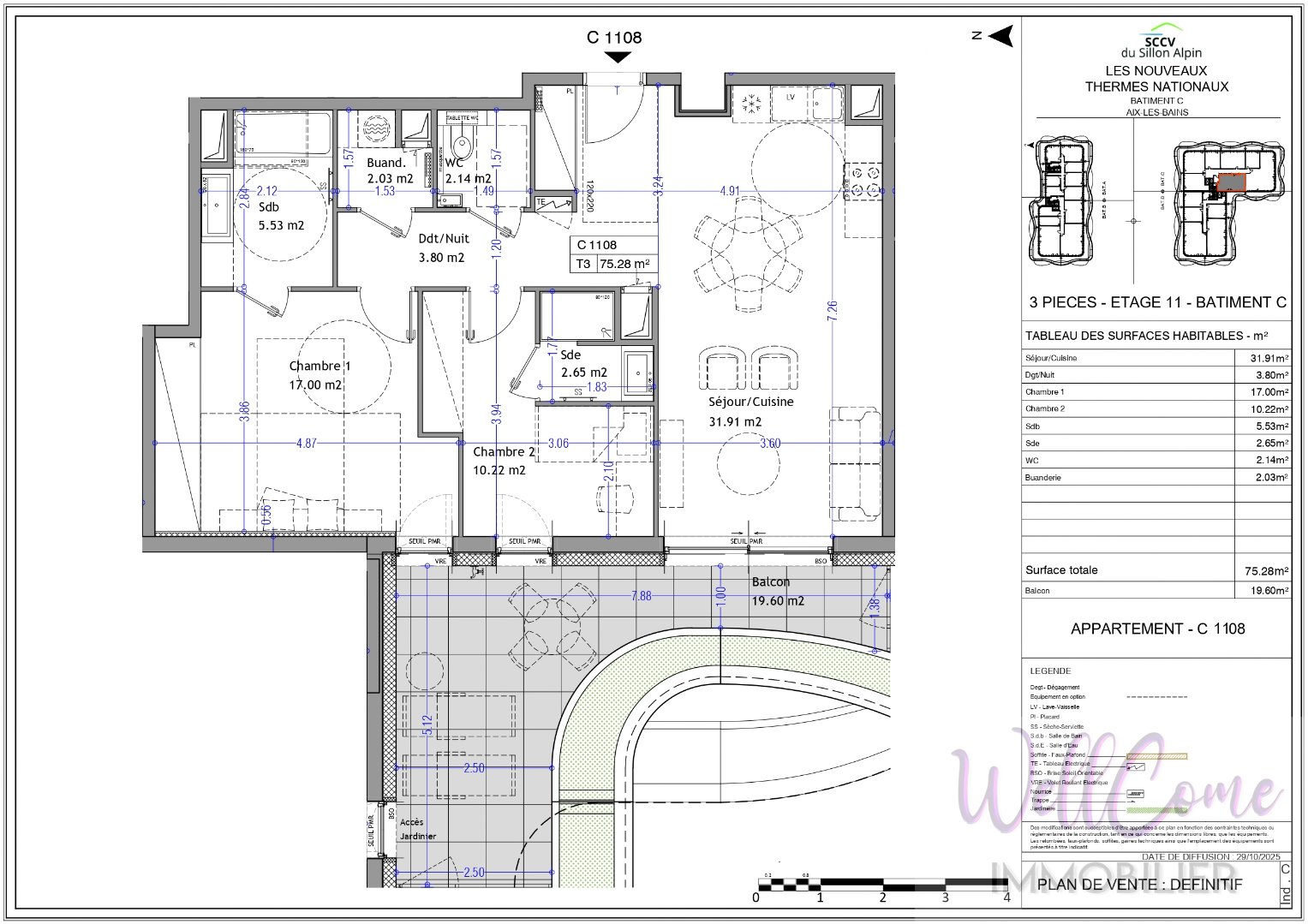
- Découvrez cet appartement 3 pièces de 75,28m² située au 11ème étage côté Ouest.
Cet appartement haut de gamme comprend : pièce de vie de 31,91 m² accueillant séjour cuisine et prolongée par un balcon végétalisé de 19,60 m² côté Ouest.
L'espace nuit comprend un dégagement, une chambre de 17m², une chambre de 10,22m² avec salle d'eau, une salle de bains, une buanderie, un wc.
Box en sous-sol sécurisé inclus.
La résidence se distingue par ses prestations premium et son engagement environnemental : façades végétalisées sur 3,5 km, plus de 15 000 plantes, toitures vertes, récupération des eaux pluviales et planchers chauffants/rafraîchissants par géothermie.
Contactez votre agence WellCome Immobilier pour réserver cet appartement d'exception parmi les premiers lots disponibles ! D'autres appartements neufs du T1 au T6 sont également proposés.
Frais de notaire réduits
Programme certifié RE2020 seuil 2022 & NF Habitat HQE
Livraison prévue 1er trimestre 2029 Surface CARREZ : 75.28 m²
Numéro de mandat : VLNT/C1108
Plus d'information :
- Calme
Précision localisation : centre ville, animations, école, commerces, bus, gare
Honoraires à la charge du Vendeur
Bien En copropriété : OUI
Nombre de lots de la copropriété : 219
Montant moyen des Charges annuelles : 0.00 euros
Procédure sur le Syndicat des copropriétaires : NON
* Prix net, hors frais notarié, d'enregistrement et de publicité foncière.
Contactez
WELLCOME IMMOBILIER - AGENCE G. BOUVIER
N° de téléphone
Nous suivre
Nous contacter
Autre contact (à Aix-Les-Bains)
BOUVIER
9 avenue de Verdun
73100 Aix-Les-Bains
Tél.
Site web