Ville di pietrabugno (20200)
Ville di pietrabugno (20200) Sous Compromis
639 000
€ *
- Référence : V80000972-972
- Dernière mise à jour : 20/01/2026
Pour la nouvelle notation (DPE à partir de juillet 2021), c'est la plus mauvaise des deux performances (énergie, climat) qui est retenue.
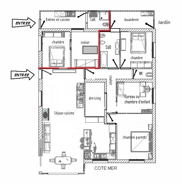
Pépite immobilière : l'Agence vous présente une maison individuelle avec soubassement en pierre élevée de deux niveaux en plein coeur du quartier prisé de Toga.
L'atout de cette maison réside dans ses possibilités de logements multiples :
- Au rez-de chaussée , au niveau du stationnement se trouvent un grand studio et un garage de 30 m2 avec porte motorisée.
- Au niveau zero de la maison principale de type T5 auquel on accède par une belle terrasse dallée plein Sud, l'entrée s'ouvre directement sur l'immense salon-séjour baigné de lumière avec dans son décroché et face à la mer une belle cuisine aménagée et intégralement équipée.
La partie 'nuit' à laquelle on accède par un couloir comprend 3 chambres (l'une est actuellement utilisée en bureau), un vaste dressing aménagé, un WC séparé et une salle de bains qui ouvre sur un espace aménagé en buanderie au dos de la maison.
Sur ce niveau accessible par une entrée indépendante un T2 avait ete aménagé par les propriétaires actuels mais il est facilement réunissable au reste de la maison permettant ainsi de récuperer une autre chambre tres bien exposée au Sud avec une autre salle de bains.
En R+2 auquel on accède par un escalier extérieur les combles viennnent d'être aménagés avec toutes les arrivées permettant de disposer d'un plateau 'brut' de 80 m2 avec une belle terrasse pleine mer permettant tous les usages( salle de jeux, loft, immense bureau ou appartement indépendant).
Un jardin d'environ 3 X 15 m au dos de la maison constitue un charmant potager.
ATOUT : une maison quasi 'en ville ' avec une vue mer panoramique sur les iles italiennes idéale pour une grande famille et offrant l'avantage d'être face à la plage et à proximité de tout (nombreux commerces en front de mer a Toga) et arret de bus à proximité immédiate pour les enfants indépendants.
Détails :
Nombre de chambre(s) : 4
Nombre de pièces : 5
Nombre de niveaux : 2
Nb de salle de bains : 3
Cuisine : Americaine -Equipee
Mode de chauffage : AIR PULSE
Type de chauffage : CLIMATISATION
Format de chauffage : INDIVIDUEL
Nombre de wc : 3
Nom du négociateur : PANTALACCI Alexandra
Taxe foncière : 1600 euros
L'atout de cette maison réside dans ses possibilités de logements multiples :
- Au rez-de chaussée , au niveau du stationnement se trouvent un grand studio et un garage de 30 m2 avec porte motorisée.
- Au niveau zero de la maison principale de type T5 auquel on accède par une belle terrasse dallée plein Sud, l'entrée s'ouvre directement sur l'immense salon-séjour baigné de lumière avec dans son décroché et face à la mer une belle cuisine aménagée et intégralement équipée.
La partie 'nuit' à laquelle on accède par un couloir comprend 3 chambres (l'une est actuellement utilisée en bureau), un vaste dressing aménagé, un WC séparé et une salle de bains qui ouvre sur un espace aménagé en buanderie au dos de la maison.
Sur ce niveau accessible par une entrée indépendante un T2 avait ete aménagé par les propriétaires actuels mais il est facilement réunissable au reste de la maison permettant ainsi de récuperer une autre chambre tres bien exposée au Sud avec une autre salle de bains.
En R+2 auquel on accède par un escalier extérieur les combles viennnent d'être aménagés avec toutes les arrivées permettant de disposer d'un plateau 'brut' de 80 m2 avec une belle terrasse pleine mer permettant tous les usages( salle de jeux, loft, immense bureau ou appartement indépendant).
Un jardin d'environ 3 X 15 m au dos de la maison constitue un charmant potager.
ATOUT : une maison quasi 'en ville ' avec une vue mer panoramique sur les iles italiennes idéale pour une grande famille et offrant l'avantage d'être face à la plage et à proximité de tout (nombreux commerces en front de mer a Toga) et arret de bus à proximité immédiate pour les enfants indépendants.
Détails :
Nombre de chambre(s) : 4
Nombre de pièces : 5
Nombre de niveaux : 2
Nb de salle de bains : 3
Cuisine : Americaine -Equipee
Mode de chauffage : AIR PULSE
Type de chauffage : CLIMATISATION
Format de chauffage : INDIVIDUEL
Nombre de wc : 3
Nom du négociateur : PANTALACCI Alexandra
Taxe foncière : 1600 euros
* Prix net, hors frais notarié, d'enregistrement et de publicité foncière.
Contactez
L'IMMOBILIERE DU PALAIS
N° de téléphone
Nous contacter