Lucinges (74380)

Lucinges (74380)

650 000 € *
  •   Référence : 84
  •   Dernière mise à jour : 21/12/2025

D
Classe Énergie
244 kWh/m² an
info
B
Indice d'émissions de gaz à effet de serre
7 kgéq/m².an
info
Pour la nouvelle notation (DPE à partir de juillet 2021), c'est la plus mauvaise des deux performances (énergie, climat) qui est retenue.

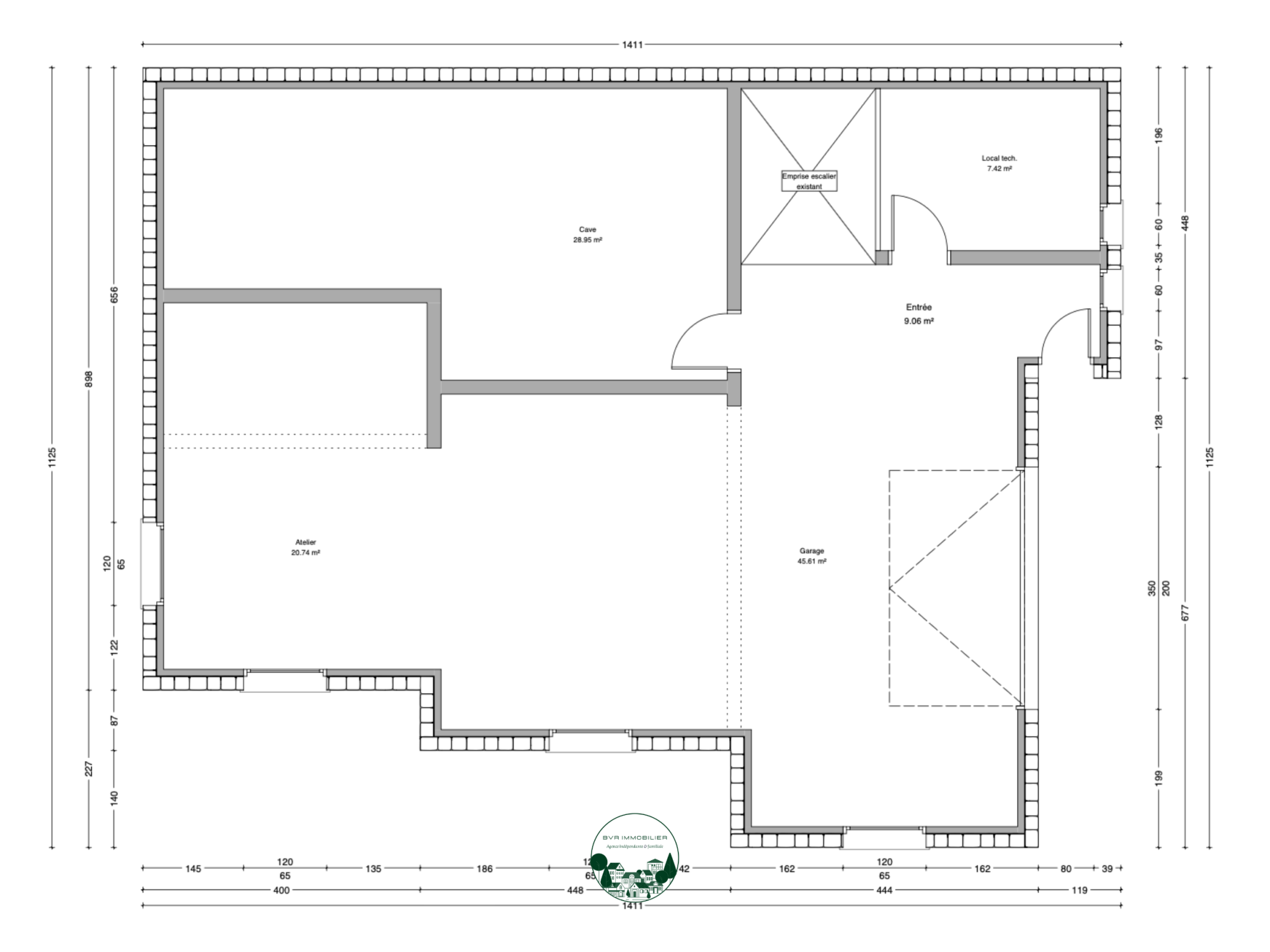
À découvrir sur les hauteurs de Lucinges, ce magnifique projet de vie pour une maison de vacances au quotidien.Chalet de 220 m² au sol, environ 204 m² habitables et sous sol de 114 m².Construction en bois massif des années 90, édifiée sur un terrain plat de 1230 m² piscinable.Dans sa configuration actuelle, au premier étage, il se compose d'un salon séjour avec cheminée, cuisine ouverte.2 chambres, bureau, salle d'eau, wc.Au dernier étage, 2 chambres mansardées, et un grand espace lumineux.Nous pouvons vous proposer un projet clés en main, entièrement budgétisé pour réaménager entièrement ce bien plein de charme.Chiffrage en cours.Les plans correspondent au nouveau projet imaginé.Chauffage par chaudière bois + cheminée + radiateurs électriques pour le dernier étage.Les informations sur les risques auxquels ce bien est exposé sont disponibles sur le site Géorisques : www.georisques.gouv.frL'équipe BVR Immobilier.
(gedeon_90177_31901025)

* Prix net, hors frais notarié, d'enregistrement et de publicité foncière.

Contactez
BVR IMMOBILIER

Adresse postale

10 Rue des Grands Champs
38320 Eybens
Itinéraire

Site internet

bvr-immobilier.com

N° de téléphone

Siret : 95238926000011

Nous contacter

Contactez-nous pour l'annonce "Chalet 220 m2 - Terrain plat 1200 m2", Réf. : 84

* Tous les champs sont obligatoires ** En cas de transmission de coordonnées téléphoniques vous reconnaissez accepter expressément d'être rappelé par l'annonceur