Cran-gevrier (74960)
Cran-Gevrier (74960) Exclusivité
695 000
€ *
- Référence : 86424464
- Dernière mise à jour : 04/12/2025
Pour la nouvelle notation (DPE à partir de juillet 2021), c'est la plus mauvaise des deux performances (énergie, climat) qui est retenue.
Informations sur les risques (ERP)
Les informations sur les risques auxquels ce bien est exposé sont disponibles sur le site Géorisques : https://www.georisques.gouv.fr
Nouveauté à saisir rapidement !
À Annecy Cran-Gevrier (74960), dans une zone artisanale, à proximité de toutes les commodités et d'un parc, et avec un accès à l'A41 en 2 minutes, je vous présente en exclusivité une propriété de 342,91 m2 bâtis dont 167,18 m2 loi « Carrez ».
De type 7, avec 5 grandes chambres et un bureau, 3 salles de bains, 2 WC, un sous-sol, un atelier (garage/hangar) et des terrasses, vous serez conquis par son spacieux séjour-cuisine de caractère, avec sa cheminée chaleureuse et sa luminosité permise par l'exposition plein Sud.
Située dans une petite copropriété sans charges, avec fibre optique, clôturée et composée de 3 habitations seulement, elle n'est mitoyenne que d'un côté, et seulement au rez-de-chaussée.
Bâtie en 1980, elle a été régulièrement entretenue, les travaux les plus récents étant le remplacement de toutes les fenêtres.
Il est conseillé de me contacter sans délai si vous êtes intéressés.
Bien que parfaitement habitable en l'état, vous pourriez être tentés d'effectuer quelques travaux, tels que les peintures, les revêtements de sol, et la toiture de la partie atelier.
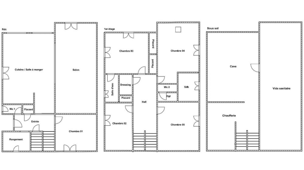
Agencement :
Au rez-de-chaussée :
-Entrée avec placard, WC, bureau de 5,85 m2 ;
-Séjour-cuisine de 54,42 m2 ;
-Chambre de 13,20 m2.
À l'étage :
-Grand dégagement, WC, dressing de 3,50 m2 ;
-Salle de bains de 4,54 m2 ;
-2 chambres de respectivement 15,78 m2 et 14,60 m2 au sol ;
-Une chambre de 19,8 m2 au sol comprenant un coin douche ;
-Une suite parentale de 21,2 m2 avec sa propre salle d'eau ;
-Un sous-sol de 46,98 m2 composé d'une grande pièce et de la chaufferie.
En annexe :
-Plus de 70 m2 de terrasses ;
-Atelier/garage/entrepôt/hangar de 123 m2 et d'une hauteur sous plafond de 4,82 m ;
-4 ou 5 places de parking.
Copropriété composée de 3 lots principaux, sans charges ni procédure en cours.
Découvrez un film immobilier dans cette annonce et sur mes réseaux sociaux : Facebook, Instagram, YouTube : @agencemaitre
Contactez-moi dès que possible et avec un plan de financement abouti pour avoir l'opportunité de visiter et vous positionner de façon prioritaire.
Environnement :
-À moins de 15 minutes à pied : Crèche, école, lycée, supermarché, boulangerie, terrain de football, transport scolaire, parc ;
-Gare d'Annecy à 6 minutes en voiture ;
-Genève douane de Bardonnex à 30 minutes en voiture.
Taxe foncière : 2.400 euros / année.
Chauffage : insert bois, chaudière gaz, chauffage au sol au rez-de-chaussée et radiateurs à l'étage.
Pompe à chaleur réversible dans la partie atelier.
Un projet d'achat ou de vente ? Besoin d'une estimation ? Je suis votre interlocuteur privilégié sur les deux Savoie (74 et 73), l'Ain (01), et le Canton de Genève.
Chers confrères, mon agence est ouverte à la collaboration
- sous réserve de la présentation d'un client qualifié et qui ne m'a pas contacté au préalable
- alors n'hésitez pas.
Les honoraires de l'agence sont à la charge du vendeur.
Les informations sur les risques auxquels ce bien est exposé sont disponibles sur le site Géorisques à l'adresse suivante : georisques.gouv.fr
SIRET : 978 3
Carte T numéro CPI 000 008 délivrée par la CCI de Haute-Savoie.
Numéro de mandat : 67
Plus d'information :
- Climatisation
Honoraires à la charge du Vendeur
Bien En copropriété : NON
À Annecy Cran-Gevrier (74960), dans une zone artisanale, à proximité de toutes les commodités et d'un parc, et avec un accès à l'A41 en 2 minutes, je vous présente en exclusivité une propriété de 342,91 m2 bâtis dont 167,18 m2 loi « Carrez ».
De type 7, avec 5 grandes chambres et un bureau, 3 salles de bains, 2 WC, un sous-sol, un atelier (garage/hangar) et des terrasses, vous serez conquis par son spacieux séjour-cuisine de caractère, avec sa cheminée chaleureuse et sa luminosité permise par l'exposition plein Sud.
Située dans une petite copropriété sans charges, avec fibre optique, clôturée et composée de 3 habitations seulement, elle n'est mitoyenne que d'un côté, et seulement au rez-de-chaussée.
Bâtie en 1980, elle a été régulièrement entretenue, les travaux les plus récents étant le remplacement de toutes les fenêtres.
Il est conseillé de me contacter sans délai si vous êtes intéressés.
Bien que parfaitement habitable en l'état, vous pourriez être tentés d'effectuer quelques travaux, tels que les peintures, les revêtements de sol, et la toiture de la partie atelier.
Agencement :
Au rez-de-chaussée :
-Entrée avec placard, WC, bureau de 5,85 m2 ;
-Séjour-cuisine de 54,42 m2 ;
-Chambre de 13,20 m2.
À l'étage :
-Grand dégagement, WC, dressing de 3,50 m2 ;
-Salle de bains de 4,54 m2 ;
-2 chambres de respectivement 15,78 m2 et 14,60 m2 au sol ;
-Une chambre de 19,8 m2 au sol comprenant un coin douche ;
-Une suite parentale de 21,2 m2 avec sa propre salle d'eau ;
-Un sous-sol de 46,98 m2 composé d'une grande pièce et de la chaufferie.
En annexe :
-Plus de 70 m2 de terrasses ;
-Atelier/garage/entrepôt/hangar de 123 m2 et d'une hauteur sous plafond de 4,82 m ;
-4 ou 5 places de parking.
Copropriété composée de 3 lots principaux, sans charges ni procédure en cours.
Découvrez un film immobilier dans cette annonce et sur mes réseaux sociaux : Facebook, Instagram, YouTube : @agencemaitre
Contactez-moi dès que possible et avec un plan de financement abouti pour avoir l'opportunité de visiter et vous positionner de façon prioritaire.
Environnement :
-À moins de 15 minutes à pied : Crèche, école, lycée, supermarché, boulangerie, terrain de football, transport scolaire, parc ;
-Gare d'Annecy à 6 minutes en voiture ;
-Genève douane de Bardonnex à 30 minutes en voiture.
Taxe foncière : 2.400 euros / année.
Chauffage : insert bois, chaudière gaz, chauffage au sol au rez-de-chaussée et radiateurs à l'étage.
Pompe à chaleur réversible dans la partie atelier.
Un projet d'achat ou de vente ? Besoin d'une estimation ? Je suis votre interlocuteur privilégié sur les deux Savoie (74 et 73), l'Ain (01), et le Canton de Genève.
Chers confrères, mon agence est ouverte à la collaboration
- sous réserve de la présentation d'un client qualifié et qui ne m'a pas contacté au préalable
- alors n'hésitez pas.
Les honoraires de l'agence sont à la charge du vendeur.
Les informations sur les risques auxquels ce bien est exposé sont disponibles sur le site Géorisques à l'adresse suivante : georisques.gouv.fr
SIRET : 978 3
Carte T numéro CPI 000 008 délivrée par la CCI de Haute-Savoie.
Numéro de mandat : 67
Plus d'information :
- Climatisation
Honoraires à la charge du Vendeur
Bien En copropriété : NON
* Prix net, hors frais notarié, d'enregistrement et de publicité foncière.
Contactez
AGENCE MAîTRE
N° de téléphone
Nous suivre
Nous contacter
Visite virtuelle