Colombier saugnieu (69124)
Colombier saugnieu (69124)
325 000
€ *
- Référence : 1858A - 1005-2685
- Dernière mise à jour : 14/01/2026
Pour la nouvelle notation (DPE à partir de juillet 2021), c'est la plus mauvaise des deux performances (énergie, climat) qui est retenue.
À VENDRE
Situé dans une résidence de standing se composant de 2 bâtiments, dans un environnement residentiel, au calme et à quelques mètres des écoles,
SUBLIMO vous propose un appartement neuf, livrable et disponible de suite !
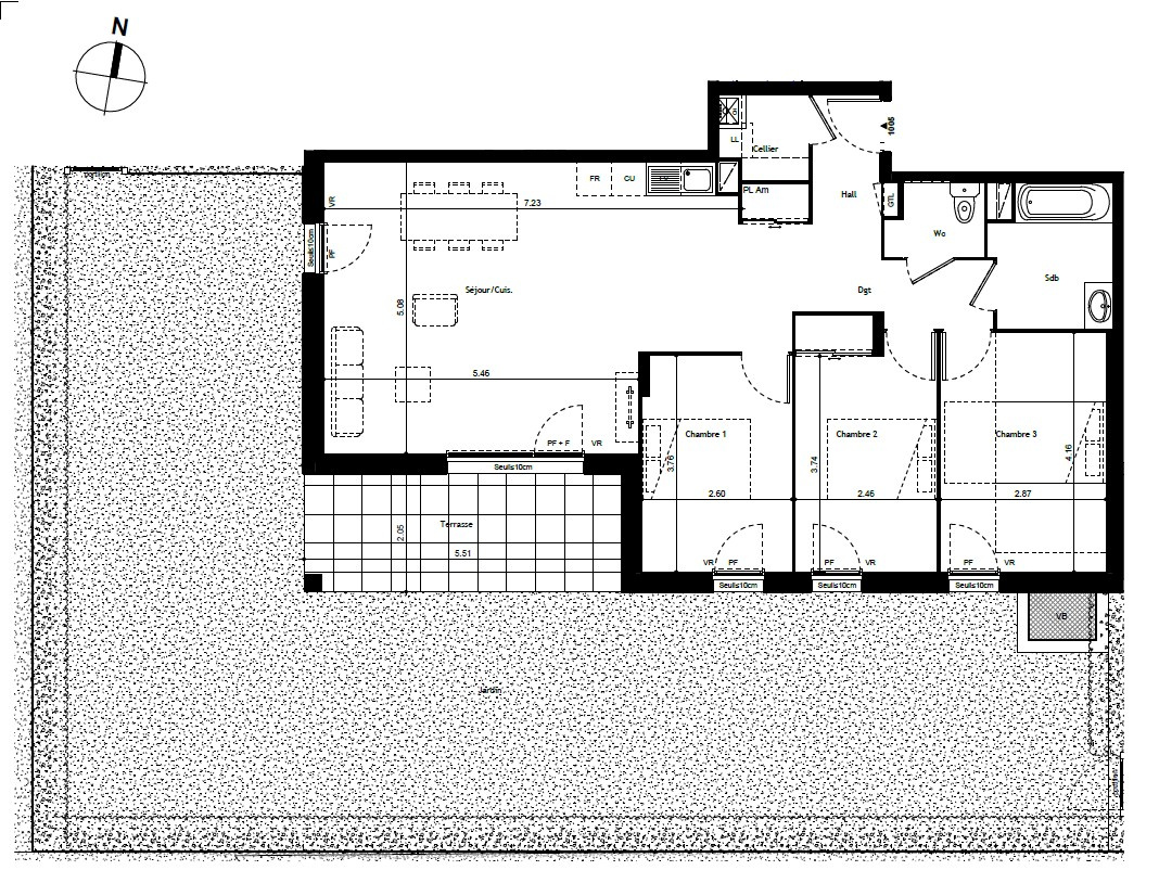
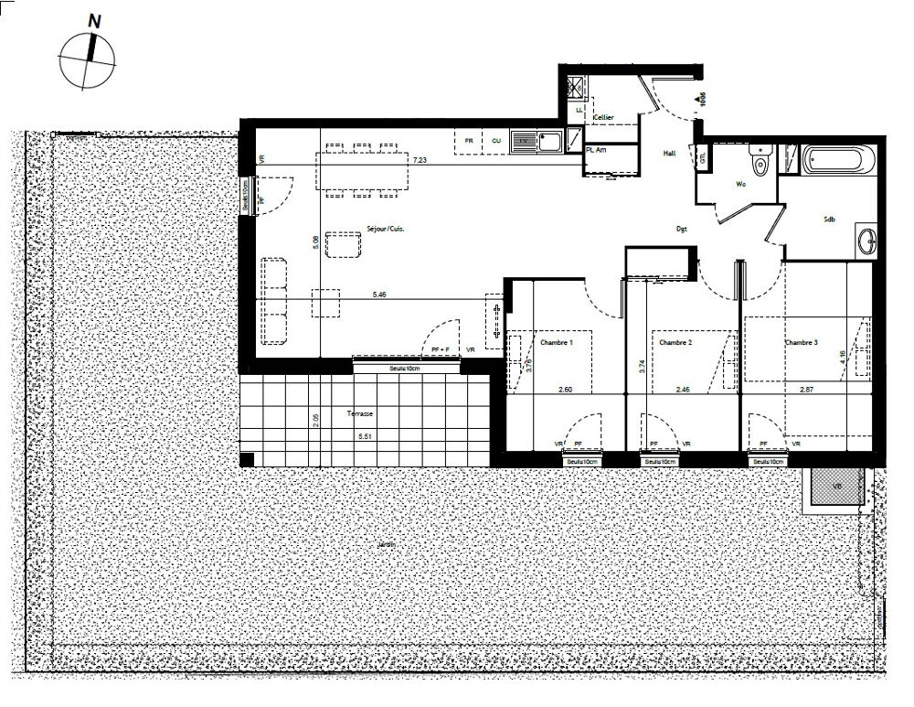
Appartement T4 de 85 m2 en rez-de-jardin avec jardin privatif de 117 m2 et terrasse de 11 m2.
Soigneusement pensé, vous serez séduit autant par son agencement que par ses rangements !
Il se compose d'un hall d'entrée, d'un espace cellier, d'un WC indépendant, d'une salle de bains, de trois chambres et d'une grande pièce de vie de près de 40 m2 ouvrant sur l'extérieur.
L'appartement bénéficie d'une exposition Sud-Ouest pour vous assurer une belle luminosité. Le jardin privatif, accessible depuis la terrasse, offre un cadre idéal pour profiter de l'extérieur.
Une place de stationnement est incluse dans le prix de vente et nous vous offrons la possibilité d'acquérir un garage au prix de 18 000 € en complément pour répondre à vos besoins.
ICI, LES FRAIS DE NOTAIRES VOUS SONT OFFERT !
Pour plus d'informations ou pour organiser une visite, n'hésitez pas à nous contacter.
ELIGIBLE PTZ, PINEL, ZONE B1
Contactez-nous dès à présent afin d'avoir une présentation complète du projet.
Détails :
Nombre de chambre(s) : 3
Nombre de pièces : 4
Nombre de niveaux : 1
Nb de salle de bains : 1
Mode de chauffage : CONVECTEUR
Type de chauffage : GAZ
Format de chauffage : INDIVIDUEL
Terrasse : 1
Nombre de wc : 1
Honoraires à charge du Vendeur
Bien En copropriété : Oui
Nombre de lots de la copropriété : 8
Montant moyen des Charges annuelles : 0 euros
Détail sur la procédure en cours : non
Nom du négociateur : ANTUNES Stéphanie
Situé dans une résidence de standing se composant de 2 bâtiments, dans un environnement residentiel, au calme et à quelques mètres des écoles,
SUBLIMO vous propose un appartement neuf, livrable et disponible de suite !
Appartement T4 de 85 m2 en rez-de-jardin avec jardin privatif de 117 m2 et terrasse de 11 m2.
Soigneusement pensé, vous serez séduit autant par son agencement que par ses rangements !
Il se compose d'un hall d'entrée, d'un espace cellier, d'un WC indépendant, d'une salle de bains, de trois chambres et d'une grande pièce de vie de près de 40 m2 ouvrant sur l'extérieur.
L'appartement bénéficie d'une exposition Sud-Ouest pour vous assurer une belle luminosité. Le jardin privatif, accessible depuis la terrasse, offre un cadre idéal pour profiter de l'extérieur.
Une place de stationnement est incluse dans le prix de vente et nous vous offrons la possibilité d'acquérir un garage au prix de 18 000 € en complément pour répondre à vos besoins.
ICI, LES FRAIS DE NOTAIRES VOUS SONT OFFERT !
Pour plus d'informations ou pour organiser une visite, n'hésitez pas à nous contacter.
ELIGIBLE PTZ, PINEL, ZONE B1
Contactez-nous dès à présent afin d'avoir une présentation complète du projet.
Détails :
Nombre de chambre(s) : 3
Nombre de pièces : 4
Nombre de niveaux : 1
Nb de salle de bains : 1
Mode de chauffage : CONVECTEUR
Type de chauffage : GAZ
Format de chauffage : INDIVIDUEL
Terrasse : 1
Nombre de wc : 1
Honoraires à charge du Vendeur
Bien En copropriété : Oui
Nombre de lots de la copropriété : 8
Montant moyen des Charges annuelles : 0 euros
Détail sur la procédure en cours : non
Nom du négociateur : ANTUNES Stéphanie
* Prix net, hors frais notarié, d'enregistrement et de publicité foncière.
Contactez
SUBLIMO
N° de téléphone
Fax.
Nous suivre
Nous contacter