Bayonne (64100)

Bayonne (64100) Exclusivité

299 000 € *
  •   Référence : AVAP170000124-124
  •   Dernière mise à jour : 04/12/2025

D
Classe Énergie
218 kWh/m² an
info
D
Indice d'émissions de gaz à effet de serre
43 kgéq/m².an
info
Pour la nouvelle notation (DPE à partir de juillet 2021), c'est la plus mauvaise des deux performances (énergie, climat) qui est retenue.


Lysi Immobilier est ravi de vous présenter en exclusivité cet appartement T3 avec deux terrasses et deux parking dans une copropriété à taille humaine, résidence Ama Lurra, quartier Séqué, à proximité de toute commodités :

> 4 min du Leclerc Bayonne Nord
> 7 min de l'autoroute A63
> 15 min de la Mairie

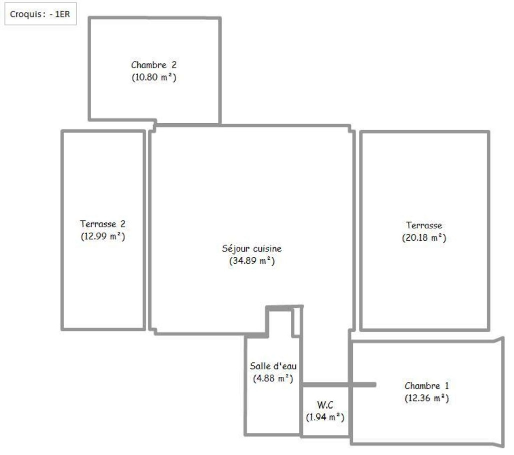
Dans une construction récente de 2012 (DPE D), l'appartement se compose ainsi :

+ Salon de 35m2 avec cuisine équipée Équipements cuisines : rangements, plaques, hotte, évier, frigo, four et micro-ondes, avec une sortie d'eau pour lave-vaisselle Ilot central, connexion Fibre Optique, 2 ouvertures pour accéder aux 2 terrasses Exposition Ouest / Est

+ 2 chambres de 11 et 12m2, non mitoyennes, avec rangements et placards intégrés (penderie et étagères inclues), avec prise fibre optique également

+ Salle de bain, décorée avec goût, de 5m2 environ avec douche à l'italienne, et sortie d'eau pour lave-linge

+ WC indépendant

+ Deux grandes terrasses complètent ce bien, de 20m2 et 13m2, permettant de véritables lieux de vie selon la météo et l'heure de la journée, en plus d'un grand rangement pour les objets encombrants (vélos, planche de surf, poussette, etc.)

Le tout pour 64,87m2, et 98m2 en incluant les terrasses.

+ En sus, 2 parkings, aérien et evergreen, sont inclus dans le prix.

DPE C / GES D

Taxe Foncière 2024 : 1 092€

Résidence sécurisée, à taille humaine, sur 2 étages, avec ascenseur et seulement 18 copropriétaires dans le bâtiment (43 logements répartis sur la résidence de 3 batiments)
Charges syndic à l'année : 1 280€ (fonds de travaux Alur inclus) Terrasses bâtiments refaites en 2022 Réfection étanchéité du toit payé et refait en 2025 Travaux soutènement talus payé et refait en 2025

La résidence se situe Quartier Séqué :
Écoquartier entièrement pensé et aménagé avec une démarche AEU (Approche Environnementale de l'Urbanisme), pour valoriser le paysage et la biodiversité. Le quartier s'inscrit dans son environnement, bordé d'espaces verts, pour préserver la forêt et certains arbres centenaires qui la composent.
A taille humaine, le café associatif dynamise la vie locale avec des prestations durables comme un potager collectif, des marchés avec des produits locaux, vide-greniers, des évènements réguliers et gratuits (avec théâtre, conférences, etc.) et des ateliers (jardinage, sport, langue, etc.).

En résumé, un appartement atypique avec ses larges terrasses et son agencement, dans un quartier avec des valeurs humaines et environnementales, à visiter pour confirmer son potentiel certain.

Prix de vente : 299 000€ honoraires d'agence TTC inclus,
Commission à la charge du vendeur de 14 950 €.
Pour toute information et demande de visite, veuillez contacter : M. Cyril PETETIN SIREN : 821 398 690
Agent mandataire sous la carte transaction numéro CPI8200013 Réseau LYSI Immobilier 130 chemin de la Boissonnade 82000 Montauban Activité assurée en RC auprès de MMA sous le numéro 148331349.
- Annonce rédigée et publiée par un Agent Mandataire - Référence : 146 Bien en copropriété. Honoraires d'agence de 5% à la charge du vendeur Réseau LYSI ImmobilierSiège Social 130 chemin de la Boissonnade 82000 MontaubanCarte professionnelle no : CPI8200013 délivrée par la CCI 82RC PRO Transaction sur immeubles et fonds de commerce MMA IARD 14 Boulevard Marie et Alexandre Oyon 72030 LE MANS CEDEX 9

Détails :
Nombre de chambre(s) : 2
Nombre de pièces : 3
Nb de salle de bains : 1
Cuisine : Americaine -Equipee
Terrasse : 1
Nombre de parking : 1


Bien En copropriété : Oui
Nombre de lots de la copropriété : 3
Montant moyen des Charges annuelles : 1280 euros
Procédure sur le Syndicat des copropriétaires : NOTPROCESS
Détail sur la procédure en cours : non

* Prix net, hors frais notarié, d'enregistrement et de publicité foncière.

Contactez
LYSI IMMOBILIER

Adresse postale

130 CHE, DE LA BOISSONNADE
82000 Montauban
Itinéraire

N° de téléphone

Siret : 92135851100019

Nous contacter

Contactez-nous pour l'annonce "T3 traversant 64,87m2 avec double terrasse, 2 parking, 1er étage / Quartier Séqué", Réf. : AVAP170000124-124

* Tous les champs sont obligatoires ** En cas de transmission de coordonnées téléphoniques vous reconnaissez accepter expressément d'être rappelé par l'annonceur