Paris 18 (75018)
Appartement - 1 pièce(s) - 41 m² Exclusivité
352 000
€ *
- Référence : 4218
- Dernière mise à jour : 05/12/2025
Pour la nouvelle notation (DPE à partir de juillet 2021), c'est la plus mauvaise des deux performances (énergie, climat) qui est retenue.
Rue Guy-Môquet , proche de la ligne 13/14, du parc Martin Luther King et du village des Batignolles.
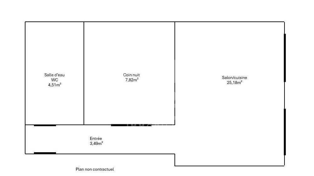
Dans un immeuble récent, au premier étage par ascenseur, découvrez un grand studio aménagé en 2 pièces.
Un rafraîchissement est à prévoir.
Il dispose d'une entrée qui dessert toutes les pièces:
Une pièce de vie de 25m² sur rue exposée NORD-OUEST avec cuisine ouverte aménagée et équipée; un espace nuit de 8m² et une salle d'eau avec WC.
Le chauffage électrique est individuel, l'eau chaude est collective avec chaudière.
Comptez 260€ de charges mensuelles et 1016 € de Taxe foncière. Une cave complète ce bien.
Contactez-nous: ERA Batignolles 97bis rue Legendre 75017 PARIS
Mail: Tél:
L'Etat des Risques et Pollution peut être consulté sur https://www.georisques.gouv.fr
Honoraires à la charge de l'Acquéreur
Pourcentage des Honoraires : 22000.000 %
Bien En copropriété : Oui
Nombre de lots de la copropriété : 88
Montant moyen des Charges annuelles : 3120.00 euros
Dans un immeuble récent, au premier étage par ascenseur, découvrez un grand studio aménagé en 2 pièces.
Un rafraîchissement est à prévoir.
Il dispose d'une entrée qui dessert toutes les pièces:
Une pièce de vie de 25m² sur rue exposée NORD-OUEST avec cuisine ouverte aménagée et équipée; un espace nuit de 8m² et une salle d'eau avec WC.
Le chauffage électrique est individuel, l'eau chaude est collective avec chaudière.
Comptez 260€ de charges mensuelles et 1016 € de Taxe foncière. Une cave complète ce bien.
Contactez-nous: ERA Batignolles 97bis rue Legendre 75017 PARIS
Mail: Tél:
L'Etat des Risques et Pollution peut être consulté sur https://www.georisques.gouv.fr
Honoraires à la charge de l'Acquéreur
Pourcentage des Honoraires : 22000.000 %
Bien En copropriété : Oui
Nombre de lots de la copropriété : 88
Montant moyen des Charges annuelles : 3120.00 euros
* Prix net, hors frais notarié, d'enregistrement et de publicité foncière.
Contactez
ERA BATIGNOLLES
N° de téléphone
Nous contacter