Saint andre de cubzac (33240)
SAINT ANDRE DE CUBZAC (33240) Exclusivité
124 200
€ *
- Référence : 58787821_1677
- Dernière mise à jour : 20/12/2025
Pour la nouvelle notation (DPE à partir de juillet 2021), c'est la plus mauvaise des deux performances (énergie, climat) qui est retenue.
Informations sur les risques (ERP)
Les informations sur les risques auxquels ce bien est exposé sont disponibles sur le site Géorisques : https://www.georisques.gouv.fr
Date du diagnostic ERP : 01/07/2025
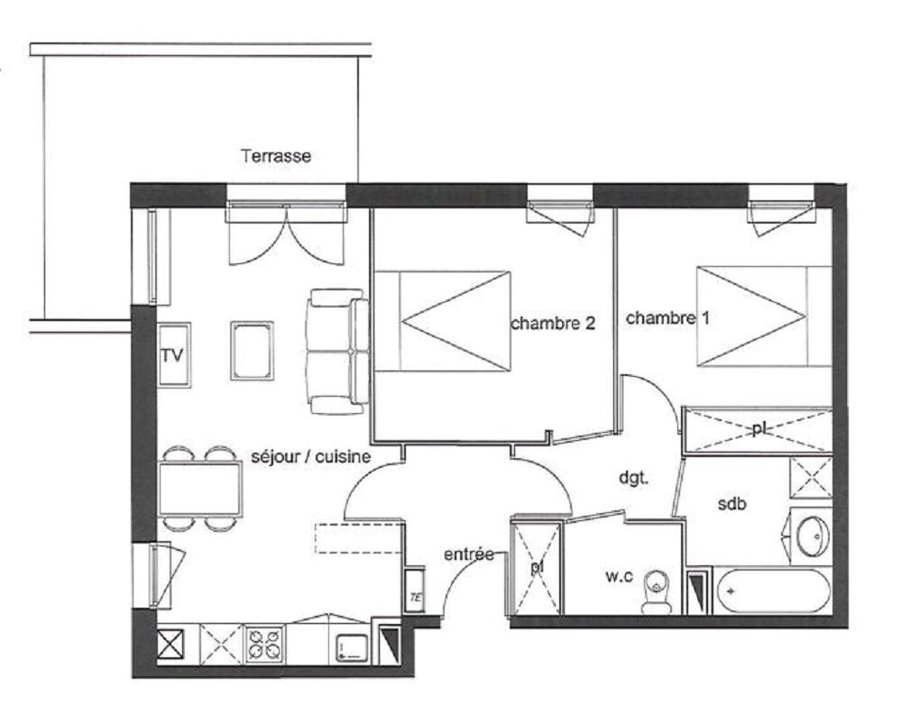
AVANTIM AQUITAINE vous propose en EXCLUSIVITE , un appartement T3 de 56.10 m², VENDU LOUE (pour investissement locatif) en rez-de-chaussée, composé d'une entrée avec placard, d'un séjour avec cuisine américaine de 20.42 m², de 2chambres dont 1 avec placard, 1 salle de bain,1WC séparé, 1 terrasse de 10.24 m² et 2 places de parking. Loué depuis le 19/03/2015 - Loyer actuel : 617,59 euros hors charges + 55 euros de provision pour charges locatives. Contact : DPE : C - GES: C . Taxe Foncière: 830 euros / an. Charges moyennes de copropriété: 1031 euros/ an . PRIX : 115 000 euros + 8 % frais d'agence à la charge de l'acquéreur. Les informations sur les risques auxquels ce bien est exposé sont disponibles sur le site Géorisques : www.georisques.gouv.fr (8.00 % honoraires TTC à la charge de l'acquéreur.) Copropriété de 66 lots (Pas de procédure en cours). Charges annuelles : 1031 euros.
Etat général : Bon Etat
Année de construction : 2011
Chauffage : Individuel
Chauffage (mécanisme) : Radiateur
Chauffage (mode) : Gaz
Cuisine : Américaine
Numéro de mandat : 1677
Honoraires à la charge de : Acquéreur
Pourcentage des Honoraires à la charge de l'Acquéreur : 8 %
Prix net vendeur : 115000 euros
Bien En copropriété : Oui
Nombre de lots de la copropriété : 66
Montant moyen des Charges annuelles : 1031 euros
Procédure sur le Syndicat des copropriétaires : NC
Détail sur la procédure en cours : Pas de procédure en cours
Taxe foncière : 830 euros
Etat général : Bon Etat
Année de construction : 2011
Chauffage : Individuel
Chauffage (mécanisme) : Radiateur
Chauffage (mode) : Gaz
Cuisine : Américaine
Numéro de mandat : 1677
Honoraires à la charge de : Acquéreur
Pourcentage des Honoraires à la charge de l'Acquéreur : 8 %
Prix net vendeur : 115000 euros
Bien En copropriété : Oui
Nombre de lots de la copropriété : 66
Montant moyen des Charges annuelles : 1031 euros
Procédure sur le Syndicat des copropriétaires : NC
Détail sur la procédure en cours : Pas de procédure en cours
Taxe foncière : 830 euros
* Prix net, hors frais notarié, d'enregistrement et de publicité foncière.
Contactez
AVANTIM AQUITAINE
N° de téléphone
Nous contacter
Autre contact (à Bordeaux)
AVANTIM
Siège social
75 - 77 allée jean giono
33100 Bordeaux