Besancon (25000)
Besancon (25000) Exclusivité
315 000
€ *
- Référence : 2982-37627
- Dernière mise à jour : 12/01/2026
Pour la nouvelle notation (DPE à partir de juillet 2021), c'est la plus mauvaise des deux performances (énergie, climat) qui est retenue.
Informations sur les risques (ERP)
Les informations sur les risques auxquels ce bien est exposé sont disponibles sur le site Géorisques : https://www.georisques.gouv.fr
Date du diagnostic ERP : 02/09/2025
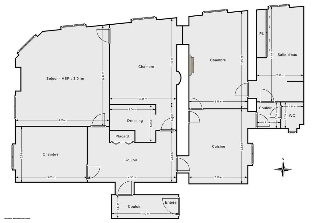
En exclusivité, idéalement situé dans le quartier des Chaprais à Besançon, découvrez ce superbe appartement lumineux et spacieux de 118m2.
Appartement bien entretenu de 4 pièces aux volumes généreux au 1er étage d'un immeuble de type haussmannien. Une belle hauteur sous plafond de 3 mètres, des portes-fenêtres avec double vitrage ainsi que des volets roulants dans toutes les pièces. Ce bien dispose d'un parquet massif ainsi que de nombreux rangements.
L'entrée de16 m2 de l'appartement conduit au séjour de 23 m2,qui dispose de 3 grandes fenêtres, dont l'une avec balcon de 2m2.
Une cuisine de X m2indépendante équipée et récemment rénovée.
3 belles chambres de respectvement 10 16 et 22 m2, la plus grande possède un dressing.
La spacieuse salle d'eau de 11 m2 avec douche dispose d'un espace lingerie ainsi que plusieurs rangements. Le WC est indépendant avec fenêtre et lave main.
Une cave de 10 m2 et un grenier complètent ce bien. La place de parking dans la cour est sécurisée par un portail électrique et un digicode. La cour privative dispose de table et chaise ombragée pour profiter des extérieurs.
Le chauffage est au gaz avec une chaudière à condensation individuelle de 2015.
DPE classe C. Fibre présente
Les charges de copropriété : 1150 euros/an.
Taxe foncière : 1100 euros
Nombre de lots dans la copropriété :14
A proximité : écoles, commerces, restaurants, gare Viotte, transports en communs, au pied tu TRAM.
Proche du centre-ville ainis que du Parc Micaud. Notre motivation, c'est votre coup de coeur
Détails :
Nombre de chambre(s) : 3
Nombre de pièces : 4
Nombre de niveaux : 1
Nb de salle d'eau : 1
Cuisine : Separee -Equipee
Mode de chauffage : CHAUDIERE
Type de chauffage : GAZ_VILLE
Format de chauffage : INDIVIDUEL
Balcon : 1
Nombre de wc : 1
Cave : 1
Nombre de parking : 1
Honoraires à charge de l'Acquéreur
Honoraires : 13000 euros
Pourcentage des Honoraires à la charge de l'Acquéreur : 4.30 %
Prix net vendeur : 302000 euros
Bien En copropriété : Oui
Nombre de lots de la copropriété : 14
Montant moyen des Charges annuelles : 1150 euros
Procédure sur le Syndicat des copropriétaires : NOTPROCESS
Détail sur la procédure en cours : non
Nom du négociateur : HECHT Yoann
Taxe foncière : 1100 euros
Appartement bien entretenu de 4 pièces aux volumes généreux au 1er étage d'un immeuble de type haussmannien. Une belle hauteur sous plafond de 3 mètres, des portes-fenêtres avec double vitrage ainsi que des volets roulants dans toutes les pièces. Ce bien dispose d'un parquet massif ainsi que de nombreux rangements.
L'entrée de16 m2 de l'appartement conduit au séjour de 23 m2,qui dispose de 3 grandes fenêtres, dont l'une avec balcon de 2m2.
Une cuisine de X m2indépendante équipée et récemment rénovée.
3 belles chambres de respectvement 10 16 et 22 m2, la plus grande possède un dressing.
La spacieuse salle d'eau de 11 m2 avec douche dispose d'un espace lingerie ainsi que plusieurs rangements. Le WC est indépendant avec fenêtre et lave main.
Une cave de 10 m2 et un grenier complètent ce bien. La place de parking dans la cour est sécurisée par un portail électrique et un digicode. La cour privative dispose de table et chaise ombragée pour profiter des extérieurs.
Le chauffage est au gaz avec une chaudière à condensation individuelle de 2015.
DPE classe C. Fibre présente
Les charges de copropriété : 1150 euros/an.
Taxe foncière : 1100 euros
Nombre de lots dans la copropriété :14
A proximité : écoles, commerces, restaurants, gare Viotte, transports en communs, au pied tu TRAM.
Proche du centre-ville ainis que du Parc Micaud. Notre motivation, c'est votre coup de coeur
Détails :
Nombre de chambre(s) : 3
Nombre de pièces : 4
Nombre de niveaux : 1
Nb de salle d'eau : 1
Cuisine : Separee -Equipee
Mode de chauffage : CHAUDIERE
Type de chauffage : GAZ_VILLE
Format de chauffage : INDIVIDUEL
Balcon : 1
Nombre de wc : 1
Cave : 1
Nombre de parking : 1
Honoraires à charge de l'Acquéreur
Honoraires : 13000 euros
Pourcentage des Honoraires à la charge de l'Acquéreur : 4.30 %
Prix net vendeur : 302000 euros
Bien En copropriété : Oui
Nombre de lots de la copropriété : 14
Montant moyen des Charges annuelles : 1150 euros
Procédure sur le Syndicat des copropriétaires : NOTPROCESS
Détail sur la procédure en cours : non
Nom du négociateur : HECHT Yoann
Taxe foncière : 1100 euros
* Prix net, hors frais notarié, d'enregistrement et de publicité foncière.
Contactez
GHT TRANSACTIONS
N° de téléphone
Nous suivre
Nous contacter