Saint-maur-des-fossés (94210)
Saint-Maur-des-Fossés (94210) Exclusivité
207 000
€ *
- Référence : 86230946
- Dernière mise à jour : 04/12/2025
Pour la nouvelle notation (DPE à partir de juillet 2021), c'est la plus mauvaise des deux performances (énergie, climat) qui est retenue.
Informations sur les risques (ERP)
Les informations sur les risques auxquels ce bien est exposé sont disponibles sur le site Géorisques : https://www.georisques.gouv.fr
*****************************************
Idéal 'INVESTISSEUR' ou 'PRIMO ACCEDANT'
*****************************************
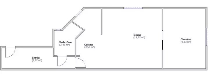
En EXCLUSIVTÉ, à 100 mètres de la Gare RER A de CHAMPIGNY-SUR-MARNE, au 111 Boulevard de Champigny, aux pieds des commerces et centre-ville, votre appartement de type F2 de 40 M2 'LOI CARREZ' au 1er étage sur cour intérieure d'une petite copropriété sécurisé par digicode au calme avec une vue dégagée, composé d'une très grande entrée, salle d'eau/water-closets, cuisine/séjour de 20 m2 et chambre de 10 m2.
Une cave vient compléter ce Bien ainsi qu'un local vélo/poussettes en parties communes.
*********************************
Charges : 85,00/Mois.
Taxe Foncière: 809,00 Eur/An.
********************************************
Travaux d'isolation (DPE:G) à prévoir pour de la location.
Potentiel locatif: 900/950,00 Eur/Mens
***********************************
Ce bien vous est présenté par:
Arthurimmo.com
Romain DAVID
Fixe:
Portable:
Email:
Honoraires à la charge du Vendeur
Bien En copropriété : NON
Idéal 'INVESTISSEUR' ou 'PRIMO ACCEDANT'
*****************************************
En EXCLUSIVTÉ, à 100 mètres de la Gare RER A de CHAMPIGNY-SUR-MARNE, au 111 Boulevard de Champigny, aux pieds des commerces et centre-ville, votre appartement de type F2 de 40 M2 'LOI CARREZ' au 1er étage sur cour intérieure d'une petite copropriété sécurisé par digicode au calme avec une vue dégagée, composé d'une très grande entrée, salle d'eau/water-closets, cuisine/séjour de 20 m2 et chambre de 10 m2.
Une cave vient compléter ce Bien ainsi qu'un local vélo/poussettes en parties communes.
*********************************
Charges : 85,00/Mois.
Taxe Foncière: 809,00 Eur/An.
********************************************
Travaux d'isolation (DPE:G) à prévoir pour de la location.
Potentiel locatif: 900/950,00 Eur/Mens
***********************************
Ce bien vous est présenté par:
Arthurimmo.com
Romain DAVID
Fixe:
Portable:
Email:
Honoraires à la charge du Vendeur
Bien En copropriété : NON
* Prix net, hors frais notarié, d'enregistrement et de publicité foncière.
Contactez
AGENCE DU MARCHE
N° de téléphone
Nous contacter
Logement à consommation énergétique excessive