Montlhery (91310)
MONTLHERY (91310)
224 900
€ *
- Référence : 14148121_18827
- Dernière mise à jour : 04/12/2025
Pour la nouvelle notation (DPE à partir de juillet 2021), c'est la plus mauvaise des deux performances (énergie, climat) qui est retenue.
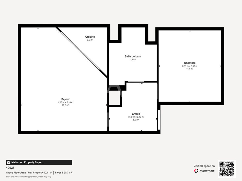
l'Adresse CHILLY-MAZARIN vous propose à la vente un appartement trés récent de 2024, situé à proximité des commodités de la rue principale de Montlhéry (transports, écoles, commerces ainsi que les accès autoroute), dans une copropriété à faibles charges, d'environ 45 m² comprenant une entrée, une salle d'eau, wc, un espace de rangement ainsi qu'une belle pièce principale avec son coin cuisine. Deux places de stationnement privatives en extérieur complètent ce bien. Copropriété de 121 lots - dont 33 lots habitation. (Pas de procédure en cours). Charges annuelles : 150.67 euros. Stéphane LANTY (EI) Agent Commercial - Numéro RSAC : - .
Etat général : Excellent
Année de construction : 2024
Chauffage : Collectif
Chauffage (mécanisme) : Radiateur
Cuisine : Ouverte Aménagée Equipée
Ascenceur : oui
Interphone : oui
Fibre optique : Oui
Numéro de mandat : 12936
* Visite virtuelle : https://my.matterport.com/models/Wogdzkowk3b
Honoraires à la charge de : Vendeur
Bien En copropriété : Oui
Nombre de lots de la copropriété : 121
Montant moyen des Charges annuelles : 150.67 euros
Procédure sur le Syndicat des copropriétaires : NC
Détail sur la procédure en cours : Pas de procédure en cours
Taxe foncière : 625 euros
Etat général : Excellent
Année de construction : 2024
Chauffage : Collectif
Chauffage (mécanisme) : Radiateur
Cuisine : Ouverte Aménagée Equipée
Ascenceur : oui
Interphone : oui
Fibre optique : Oui
Numéro de mandat : 12936
* Visite virtuelle : https://my.matterport.com/models/Wogdzkowk3b
Honoraires à la charge de : Vendeur
Bien En copropriété : Oui
Nombre de lots de la copropriété : 121
Montant moyen des Charges annuelles : 150.67 euros
Procédure sur le Syndicat des copropriétaires : NC
Détail sur la procédure en cours : Pas de procédure en cours
Taxe foncière : 625 euros
* Prix net, hors frais notarié, d'enregistrement et de publicité foncière.
Contactez
AGENCE DE L'AVENIR
N° de téléphone
Nous contacter
Visite virtuelle