Vente Appartement 6 pièces 138 m²

Annecy (74600)

475 000 € *
  •   Référence : FF155-158
  •   Dernière mise à jour : 06/03/2026

D
Classe Énergie
224 kWh/m² an
info
B
Indice d'émissions de gaz à effet de serre
9 kgéq/m².an
info
Pour la nouvelle notation (DPE à partir de juillet 2021), c'est la plus mauvaise des deux performances (énergie, climat) qui est retenue.
Informations sur les risques (ERP)
Les informations sur les risques auxquels ce bien est exposé sont disponibles sur le site Géorisques : https://www.georisques.gouv.fr
Date du diagnostic ERP : 11/04/2025

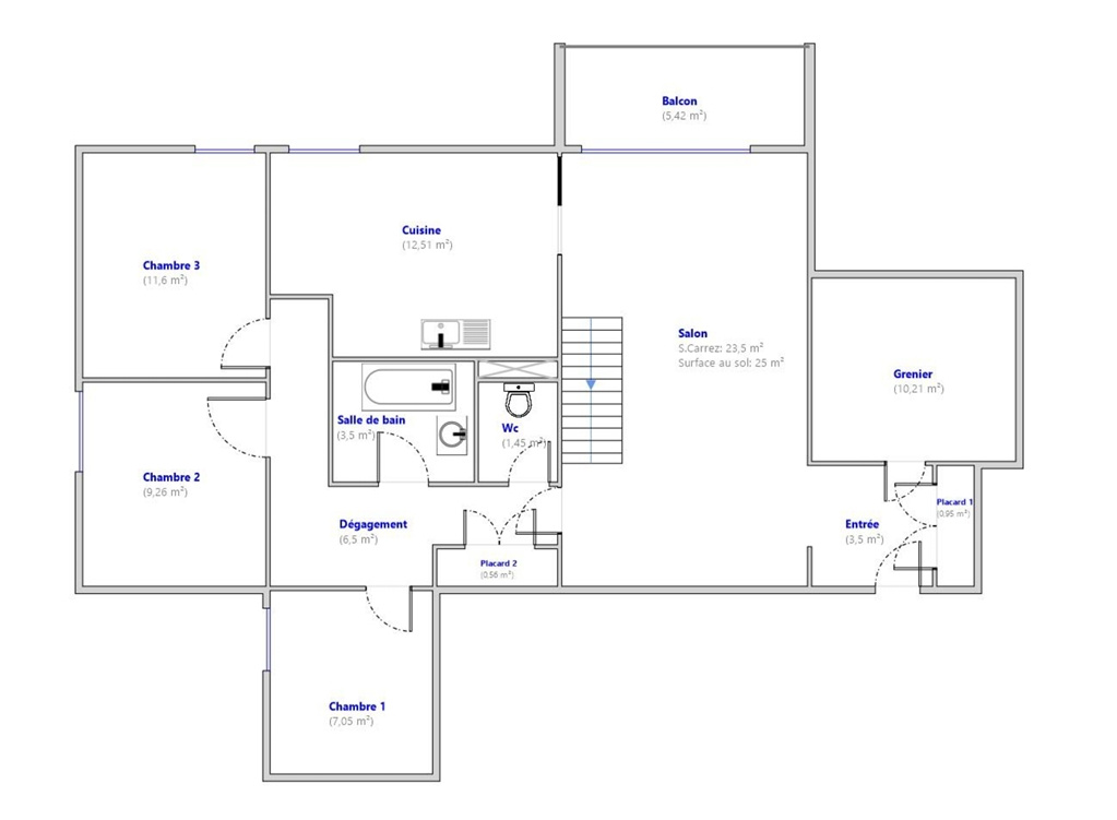
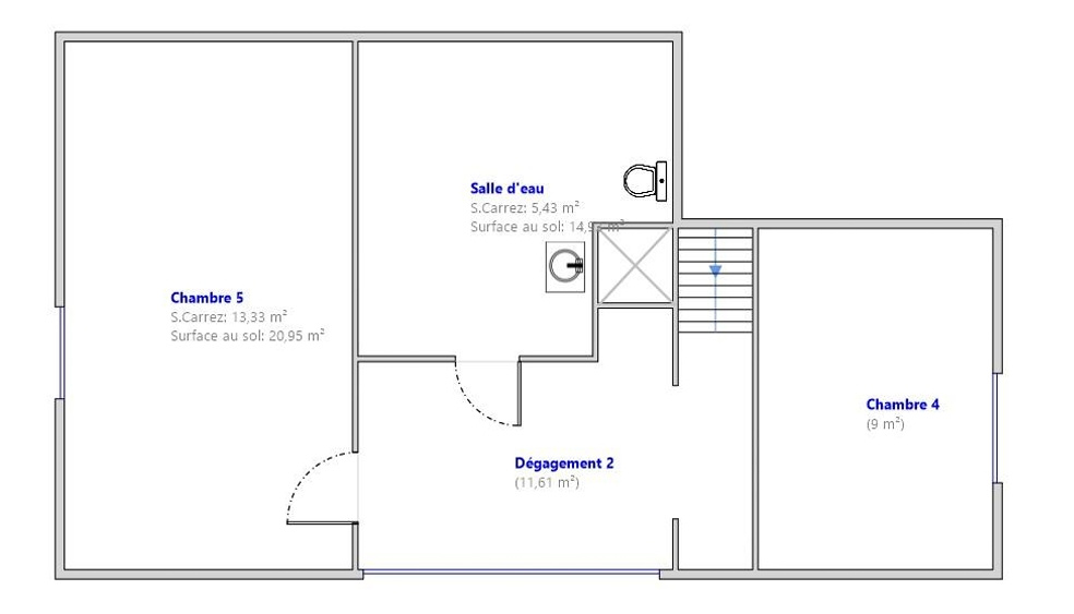
ANNECY - SEYNOD - Duplex de 114 m2, dernier étage

Exclusivité à ANNECY - SEYNOD : T6 en dernier étage, proche du lac d'Annecy et des montagnes, avec vue imprenable sur le bonheur. Ce duplex, niché au dernier étage d'une copropriété paisible, a tout pour plaire... sauf le lac privé (on ne peut pas tout avoir). Avec ses 5 chambres, c'est le paradis des familles nombreuses ou des amateurs de pièces supplémentaires pour transformer une chambre en dressing, bureau ou salle de méditation. La pièce de vie lumineuse semble presque dire : 'Asseyez-vous, détendez-vous et contemplez la lumière naturelle qui baigne la pièce.' Et si jamais vous vous lassez des rayons du soleil, la cuisine fermée vous invite à des expériences culinaires dignes de MasterChef. Côté pratique, vous disposez d'une salle de douche pour les matins pressés et d'une salle de bains pour les soirées relaxantes, ainsi qu'un garage et une cave pour stocker tout ce que vous aimez ou que vous avez oublié aimer. La baie vitrée, quant à elle, ne fait pas les choses à moitié : elle inonde la pièce de vie de lumière et donne accès au balcon, parfait pour surveiller les montagnes ou étudier la vie des oiseaux. Enfin, vous êtes à deux pas des commerces, arrêts de bus, des écoles et d'un parc privé appartenant à la copropriété. Le rêve n'est-il pas de pouvoir dire 'Je vis près du lac ET des montagnes' en toute légitimité ? Bien sûr, il faut prévoir un petit budget rafraîchissement, mais c'est une chance rare de personnaliser cet espace à votre goût ! Une opportunité unique pour ceux qui cherchent une vie exceptionnelle entre nature, confort... et petites touches d'humour !
Ne manquez pas cette opportunité unique. Contactez vite votre agence pour programmer une visite avant que cet appartement ne trouve un autre propriétaire !
Référence FF155
(P.S. : Comme toujours, les informations sur les risques naturels ou technologiques sont disponibles sur Géorisques.)
Bien en collaboration Interkab.

Détails :
Nombre de chambre(s) : 5
Nombre de pièces : 6
Nombre de niveaux : 2
Nb de salle de bains : 1
Nb de salle d'eau : 1
Cuisine : Separee -Equipee
Mode de chauffage : RADIATEUR
Type de chauffage : MIXTE
Format de chauffage : COLLECTIF
Balcon : 1
Nombre de wc : 2
Nombre de parking : 1


Honoraires à charge du Vendeur
Taxe foncière : 1551 euros

* Prix net, hors frais notarié, d'enregistrement et de publicité foncière.

Contactez
NOVAO

Adresse postale

174 ALLEE DES CHEVREUILS
74330 Sillingy
Itinéraire

Site internet

novaoimmo.fr

N° de téléphone

Siret : 97765970500015

Nous contacter

Contactez-nous pour l'annonce "ANNECY - SEYNOD - Duplex de 114 m2, dernier étage", Réf. : FF155-158

* Tous les champs sont obligatoires ** En cas de transmission de coordonnées téléphoniques vous reconnaissez accepter expressément d'être rappelé par l'annonceur