Paimpol (22500)
Paimpol (22500)
338 800
€ *
- Référence : VA5851-BIENALAMER
- Dernière mise à jour : 22/12/2025
Pour la nouvelle notation (DPE à partir de juillet 2021), c'est la plus mauvaise des deux performances (énergie, climat) qui est retenue.
Informations sur les risques (ERP)
Les informations sur les risques auxquels ce bien est exposé sont disponibles sur le site Géorisques : https://www.georisques.gouv.fr
L'agence 'MON BIEN A LA MER', spécialiste de l'immobilier neuf sur les côtes Bretonnes, vous présente :
Nouvelle résidence de standing en front de Mer, à 400m du centre ville/port, 10 min en voiture de l'embarcadère BREHAT/Pointe de l'ARCOUEST.
Normes RE2020.
Ascenseur, Frais de notaire réduits, Livraison fin 2026.
Carrelage au sol Villeroy & Boch, Parquet stratifié dans les chambres, Grand bac à douche extraplat avec faïence toute hauteur Villeroy & Boch, volets roulants électriques toutes fenêtres, chauffage électrique, résidence sécurisée.
Ce T3 n'a pas de vue Mer / exposé sud ouest.
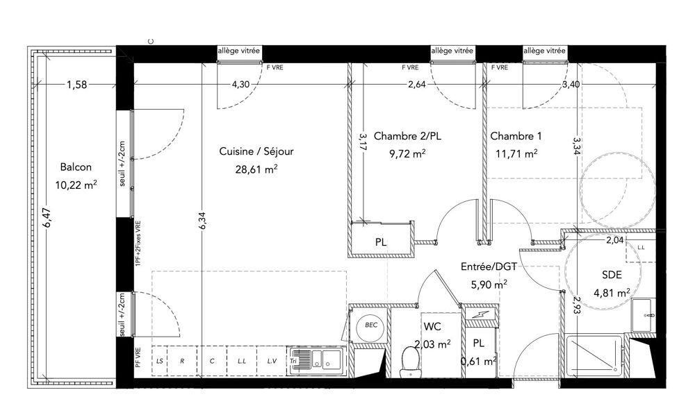
Séjour de 28,61m2, terrasse 10,22m2.
Deux chambres (11,71-9,72).
Wc séparé, salle d'eau, placards, un parking.
Nous Consulter
Honoraires à la charge du vendeur.
Non soumis au DPE.
Les informations sur les risques auxquels ce bien est exposé sont disponibles sur le site Géorisques : georisques.gouv.fr.
Votre conseiller MON BIEN A LA MER : Gérant
- .fr MON BIEN A LA MER
Carte T CPI 2225 040
RCP ACM IARD B1 7025278
TTC
Honoraires à la charge du Vendeur
Bien En copropriété : NON
Nouvelle résidence de standing en front de Mer, à 400m du centre ville/port, 10 min en voiture de l'embarcadère BREHAT/Pointe de l'ARCOUEST.
Normes RE2020.
Ascenseur, Frais de notaire réduits, Livraison fin 2026.
Carrelage au sol Villeroy & Boch, Parquet stratifié dans les chambres, Grand bac à douche extraplat avec faïence toute hauteur Villeroy & Boch, volets roulants électriques toutes fenêtres, chauffage électrique, résidence sécurisée.
Ce T3 n'a pas de vue Mer / exposé sud ouest.
Séjour de 28,61m2, terrasse 10,22m2.
Deux chambres (11,71-9,72).
Wc séparé, salle d'eau, placards, un parking.
Nous Consulter
Honoraires à la charge du vendeur.
Non soumis au DPE.
Les informations sur les risques auxquels ce bien est exposé sont disponibles sur le site Géorisques : georisques.gouv.fr.
Votre conseiller MON BIEN A LA MER : Gérant
- .fr MON BIEN A LA MER
Carte T CPI 2225 040
RCP ACM IARD B1 7025278
TTC
Honoraires à la charge du Vendeur
Bien En copropriété : NON
* Prix net, hors frais notarié, d'enregistrement et de publicité foncière.
Contactez
MON BIEN A LA MER
N° de téléphone
Nous contacter
Visite virtuelle