Mainvilliers (28300)
Mainvilliers (28300)
118 900
€ *
- Référence : 777-BIENSEREIN28
- Dernière mise à jour : 19/01/2026
Pour la nouvelle notation (DPE à partir de juillet 2021), c'est la plus mauvaise des deux performances (énergie, climat) qui est retenue.
Informations sur les risques (ERP)
Les informations sur les risques auxquels ce bien est exposé sont disponibles sur le site Géorisques : https://www.georisques.gouv.fr
Bienvenue dans votre futur chez-vous ! Nous sommes ravis de vous présenter ce spacieux deux pièces doté d'une agréable terrasse et d'un jardin privatif, le tout, situé dans une résidence appréciée pour son calme et sa localisation proche de la gare et du centre ville de Chartres.
Fonctionnel et lumineux, ce bien vous offrira un cadre de vie confortable et pratique.
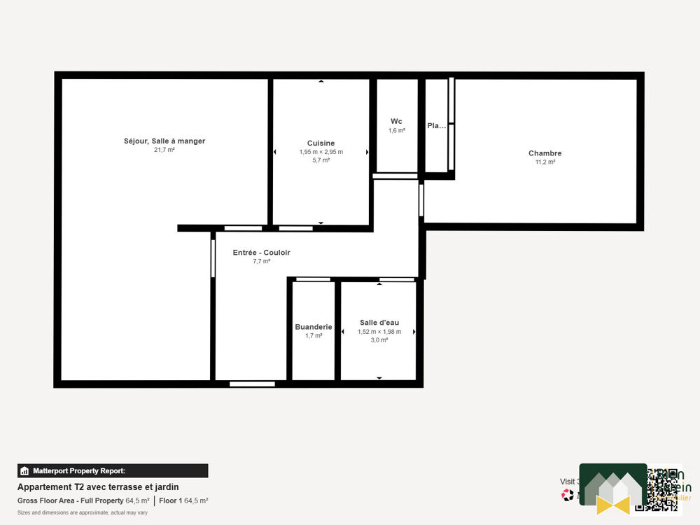
Découvrez un appartement composé comme suit :
- Une spacieuse entrée
- Un séjour
- salle à manger de plus de 21 m²
- Une cuisine indépendante (ouverture possible sur la pièce de vie)
- Une chambre avec placard
- Une salle d'eau
- Un wc indépendant
- Une buanderie
Espaces extérieurs :
- Une terrasse
- Un jardin clos
- Un abris de jardin
Coté confort :
- Situé en rez de chaussée
- Proximité immédiate des commodités
L'emplacement :
Toutes les commodités vous seront accessibles à pieds : vous trouverez un bus à 4 minutes, la gare de Chartres à 700 mètres, et le centre ville à 900 mètres.
N'hésitez pas à contacter votre agent au Noeud Pap' pour obtenir plus d'informations et visiter cet appartement !
Honoraires inclus de 8.09% TTC à la charge de l'acquéreur.
Prix hors honoraires 110 000 €.
Dans une copropriété de 101 lots.
Quote-part moyenne du budget prévisionnel 1 236 €/an.
Aucune procédure n'est en cours.
Classe énergie D, Classe climat D Montant estimé des dépenses annuelles d'énergie pour un usage standard : entre 1240.00 € et 1710.00 € sur les années 2021, 2022 et 2023 (abonnements compris).
Les informations sur les risques auxquels ce bien est exposé sont disponibles sur le site Géorisques : georisques.gouv.fr.
Votre conseiller Bien Serein immobilier : Doriane BARBE
Agent commercial (Entreprise individuelle)
RSAC 829314210
TTC
Numéro de mandat : 777
Honoraires à la charge de l'acquéreur
Pourcentage des Honoraires à la charge de l'Acquéreur : 8.09 %
Bien En copropriété : OUI
Nombre de lots de la copropriété : 101
Montant moyen des Charges annuelles : 1236 euros
Procédure sur le Syndicat des copropriétaires : NON
Fonctionnel et lumineux, ce bien vous offrira un cadre de vie confortable et pratique.
Découvrez un appartement composé comme suit :
- Une spacieuse entrée
- Un séjour
- salle à manger de plus de 21 m²
- Une cuisine indépendante (ouverture possible sur la pièce de vie)
- Une chambre avec placard
- Une salle d'eau
- Un wc indépendant
- Une buanderie
Espaces extérieurs :
- Une terrasse
- Un jardin clos
- Un abris de jardin
Coté confort :
- Situé en rez de chaussée
- Proximité immédiate des commodités
L'emplacement :
Toutes les commodités vous seront accessibles à pieds : vous trouverez un bus à 4 minutes, la gare de Chartres à 700 mètres, et le centre ville à 900 mètres.
N'hésitez pas à contacter votre agent au Noeud Pap' pour obtenir plus d'informations et visiter cet appartement !
Honoraires inclus de 8.09% TTC à la charge de l'acquéreur.
Prix hors honoraires 110 000 €.
Dans une copropriété de 101 lots.
Quote-part moyenne du budget prévisionnel 1 236 €/an.
Aucune procédure n'est en cours.
Classe énergie D, Classe climat D Montant estimé des dépenses annuelles d'énergie pour un usage standard : entre 1240.00 € et 1710.00 € sur les années 2021, 2022 et 2023 (abonnements compris).
Les informations sur les risques auxquels ce bien est exposé sont disponibles sur le site Géorisques : georisques.gouv.fr.
Votre conseiller Bien Serein immobilier : Doriane BARBE
Agent commercial (Entreprise individuelle)
RSAC 829314210
TTC
Numéro de mandat : 777
Honoraires à la charge de l'acquéreur
Pourcentage des Honoraires à la charge de l'Acquéreur : 8.09 %
Bien En copropriété : OUI
Nombre de lots de la copropriété : 101
Montant moyen des Charges annuelles : 1236 euros
Procédure sur le Syndicat des copropriétaires : NON
* Prix net, hors frais notarié, d'enregistrement et de publicité foncière.
Contactez
BIEN SEREIN
N° de téléphone
Nous suivre
Nous contacter