Tremblay en france (93290)
Tremblay en france (93290)
108 000
€ *
- Référence : 735.-1000
- Dernière mise à jour : 05/12/2025
Pour la nouvelle notation (DPE à partir de juillet 2021), c'est la plus mauvaise des deux performances (énergie, climat) qui est retenue.
Informations sur les risques (ERP)
Les informations sur les risques auxquels ce bien est exposé sont disponibles sur le site Géorisques : https://www.georisques.gouv.fr
Date du diagnostic ERP : 07/06/2024
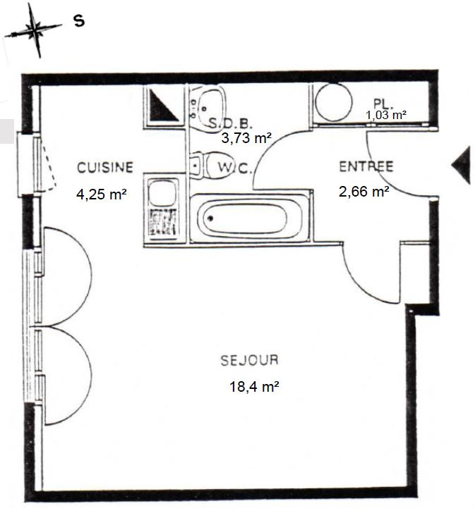
Situé au 4 et dernier étage d'un immeuble bien entretenu, ce studio d'environ 30m2 bénéficie d'un cadre de vie agréable dans un environnement calme à Tremblay-en-France.
Il offre une entrée avec placard intégré, une salle de bain avec WC, ainsi qu'un séjour en L de 18,40 m2. Le coin cuisine avec fenêtre, légèrement séparé, permet une organisation agréable et fonctionnelle de l'espace de vie.
Situé dans une zone calme, il bénéficie d'une localisation pratique : 20 minutes à pied de la gare du Vert Galant et un accès rapide aux transports grâce aux bus desservant la gare en quelques minutes.
Une place de parking privative en sous-sol vient parfaire ce bien.
Idéal pour un premier achat ou un investissement locatif, alliant confort et praticité.
À compter du 1er janvier 2026, en raison des nouvelles réglementations (électricité et petites surfaces), le DPE de ce logement sera automatiquement reclassé en classe D.
Détails :
Nombre de pièces : 1
Nb de salle de bains : 1
Cuisine : Americaine -Semi-equipee
Mode de chauffage : RADIATEUR
Type de chauffage : ELECTRIQUE
Format de chauffage : INDIVIDUEL
Nombre de wc : 1
Nombre de parking : 1
Bien En copropriété : Oui
Nombre de lots de la copropriété : 111
Montant moyen des Charges annuelles : 1090 euros
Procédure sur le Syndicat des copropriétaires : NOTPROCESS
Détail sur la procédure en cours : non
Taxe foncière : 856 euros
Il offre une entrée avec placard intégré, une salle de bain avec WC, ainsi qu'un séjour en L de 18,40 m2. Le coin cuisine avec fenêtre, légèrement séparé, permet une organisation agréable et fonctionnelle de l'espace de vie.
Situé dans une zone calme, il bénéficie d'une localisation pratique : 20 minutes à pied de la gare du Vert Galant et un accès rapide aux transports grâce aux bus desservant la gare en quelques minutes.
Une place de parking privative en sous-sol vient parfaire ce bien.
Idéal pour un premier achat ou un investissement locatif, alliant confort et praticité.
À compter du 1er janvier 2026, en raison des nouvelles réglementations (électricité et petites surfaces), le DPE de ce logement sera automatiquement reclassé en classe D.
Détails :
Nombre de pièces : 1
Nb de salle de bains : 1
Cuisine : Americaine -Semi-equipee
Mode de chauffage : RADIATEUR
Type de chauffage : ELECTRIQUE
Format de chauffage : INDIVIDUEL
Nombre de wc : 1
Nombre de parking : 1
Bien En copropriété : Oui
Nombre de lots de la copropriété : 111
Montant moyen des Charges annuelles : 1090 euros
Procédure sur le Syndicat des copropriétaires : NOTPROCESS
Détail sur la procédure en cours : non
Taxe foncière : 856 euros
* Prix net, hors frais notarié, d'enregistrement et de publicité foncière.
Contactez
AF IMMOBILIER
N° de téléphone
Nous contacter