Nice (06000)

Appartement - 2 pièce(s) - 42 m² Exclusivité

250 000 € *
  •   Référence : TAPP960390
  •   Dernière mise à jour : 04/12/2025

C
Classe Énergie
144 kWh/m² an
info
A
Indice d'émissions de gaz à effet de serre
4 kgéq/m².an
info
Pour la nouvelle notation (DPE à partir de juillet 2021), c'est la plus mauvaise des deux performances (énergie, climat) qui est retenue.

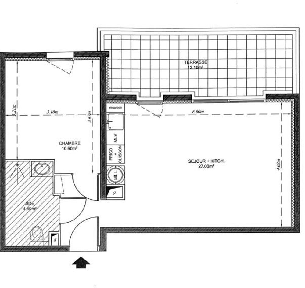
À vendre, appartement de standing T2 (42 m²) avec terrasse et garage à Nice, dans un immeuble au calme de 2011. - Faculté de Saint Jean d'Angely, à proximité de la gare Riquier. Ce bien immobilier, construit en 2011, offre un cadre de vie agréable et moderne. D'une superficie de 42 m², cet appartement se trouve au troisième étage d'un immeuble de cinq étages, accessible aux personnes à mobilité réduite. Il se compose d'un séjour lumineux avec kitchenette, d'une chambre confortable, ainsi que d'une salle d'eau avec WC. L'appartement bénéficie d'une exposition sud-ouest, ce qui permet de profiter d'une belle luminosité tout au long de la journée. L'un des atouts majeurs de ce bien est sa terrasse de 12 m². De plus, un garage fermé de 13m² en sous-sol est inclus. Situé dans un environnement calme, cet appartement est également proche de toutes les commodités telles que les commerces, les transports en commun et les services. Ne manquez pas cette opportunité d'acquérir un bien de qualité dans un secteur recherché de Nice. Le bien est soumis au statut de la copropriété , la copropriété comporte 94 lots , la quote-part budget prévisionnel (dépenses courantes) est de 960,00 euros/an. Honoraires à la charge du vendeur. Vous pouvez consulter les barèmes d'honoraires à l'adresse suivante : . Montant estimé des dépenses annuelles d'énergie pour un usage standard : entre 570 et 820 euros. Prix moyens des énergies indexés en 2023. Les informations sur les risques auxquels ce bien est exposé sont disponibles sur le site Géorisques : https://www.georisques.gouv.fr

* Prix net, hors frais notarié, d'enregistrement et de publicité foncière.

Contactez
CITYA DALBERA

Adresse postale

18 rue de l'Hôtel des Postes
06000 Nice
Itinéraire

N° de téléphone

Siret : 34815521900077

Nous contacter

Contactez-nous pour l'annonce "Nice (06000)", Réf. : TAPP960390

* Tous les champs sont obligatoires ** En cas de transmission de coordonnées téléphoniques vous reconnaissez accepter expressément d'être rappelé par l'annonceur