Tassin la demi lune (69160)
Tassin la demi lune (69160) Exclusivité
249 000
€ *
- Référence : 2762-670
- Dernière mise à jour : 01/12/2025
Pour la nouvelle notation (DPE à partir de juillet 2021), c'est la plus mauvaise des deux performances (énergie, climat) qui est retenue.
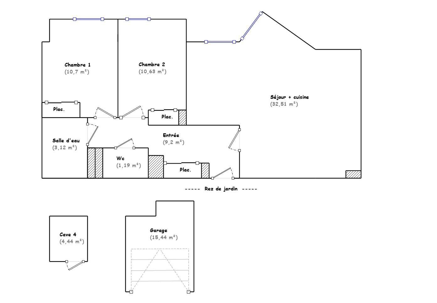
Limite TASSIN / LYON 5ème - Rue Joliot Curie, en retrait de la rue. L'Agence PEDRINI vous propose cet agréable T3 de 67,35 m2 en rez-de-jardin.
Dans une résidence construite en 2006, de qualité, fermée, arborée et bénéficiant d'une piscine.
Cet appartement moderne se compose d'une entrée avec placard, un vaste séjour de 32m2 avec cuisine ouverte et donnant sur le jardin de 30m2 très calme.
L'espace nuit se compose de 2 chambres avec placards, d'une salle d'eau avec douche à l'italienne, et de toilettes séparées.
Un GARAGE + une CAVE sont vendus avec l'appartement (inclus dans le prix).
Un appartement en bon état dans une belle résidence, bénéficiant de la proximité de toutes les commodités (arret de bus Les Battieres au pied de l'immeuble, Supermarché AUCHAN à 8 mn à pied).
Pour toute information complémentaire et pour une visite, Antoine PINE
Détails :
Nombre de chambre(s) : 2
Nombre de pièces : 3
Nb de salle d'eau : 1
Cuisine : Americaine -Equipee
Mode de chauffage : RADIATEUR
Type de chauffage : GAZ
Format de chauffage : INDIVIDUEL
Terrasse : 1
Nombre de wc : 1
Cave : 1
Nombre de parking : 1
Honoraires à charge du Vendeur
Bien En copropriété : Oui
Nombre de lots de la copropriété : 213
Montant moyen des Charges annuelles : 1360.70 euros
Procédure sur le Syndicat des copropriétaires : NOTPROCESS
Détail sur la procédure en cours : non
Nom du négociateur : PINEAU ANTOINE
Dans une résidence construite en 2006, de qualité, fermée, arborée et bénéficiant d'une piscine.
Cet appartement moderne se compose d'une entrée avec placard, un vaste séjour de 32m2 avec cuisine ouverte et donnant sur le jardin de 30m2 très calme.
L'espace nuit se compose de 2 chambres avec placards, d'une salle d'eau avec douche à l'italienne, et de toilettes séparées.
Un GARAGE + une CAVE sont vendus avec l'appartement (inclus dans le prix).
Un appartement en bon état dans une belle résidence, bénéficiant de la proximité de toutes les commodités (arret de bus Les Battieres au pied de l'immeuble, Supermarché AUCHAN à 8 mn à pied).
Pour toute information complémentaire et pour une visite, Antoine PINE
Détails :
Nombre de chambre(s) : 2
Nombre de pièces : 3
Nb de salle d'eau : 1
Cuisine : Americaine -Equipee
Mode de chauffage : RADIATEUR
Type de chauffage : GAZ
Format de chauffage : INDIVIDUEL
Terrasse : 1
Nombre de wc : 1
Cave : 1
Nombre de parking : 1
Honoraires à charge du Vendeur
Bien En copropriété : Oui
Nombre de lots de la copropriété : 213
Montant moyen des Charges annuelles : 1360.70 euros
Procédure sur le Syndicat des copropriétaires : NOTPROCESS
Détail sur la procédure en cours : non
Nom du négociateur : PINEAU ANTOINE
* Prix net, hors frais notarié, d'enregistrement et de publicité foncière.
Contactez
AGENCE PEDRINI
N° de téléphone
Fax.
Nous contacter
Logement à consommation énergétique excessive