Sèvres (92310)

Sèvres (92310)

203 000 € *
  •   Référence : 92SEVCAT510
  •   Dernière mise à jour : 05/12/2025

B
Classe Énergie
107 kWh/m² an
info
A
Indice d'émissions de gaz à effet de serre
7 kgéq/m².an
info
Pour la nouvelle notation (DPE à partir de juillet 2021), c'est la plus mauvaise des deux performances (énergie, climat) qui est retenue.

Idéalement situé, à proximité du centre ville et à 11 minutes du métro Ligne 9 et à 7 minutes de Tram T2.


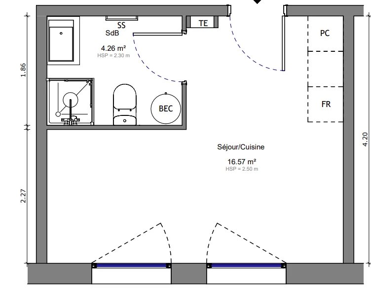
Cet appartement se compose


- d'un espace de vie de de plus de 16m2

- d'une salle de bains de plus de 4m2.


Dans une immeuble moderne entre la ville et la Forêt.

Pour plus d'information, merci de nous contacter directement.

Numéro de mandat : 92SEVCAT510

Plus d'information :

- Alarme


Honoraires à la charge de l'Acquéreur : NON
Bien En copropriété : NON

* Prix net, hors frais notarié, d'enregistrement et de publicité foncière.

Contactez
JB PIERRE INVEST NEUILLY

Adresse postale

26 rue Jacques Dulud
92200 Neuilly-sur-Seine
Itinéraire

N° de téléphone

Siret : 49430490000157

Nous contacter

Contactez-nous pour l'annonce "Studio de 20m2 au coeur de Sévres", Réf. : 92SEVCAT510

* Tous les champs sont obligatoires ** En cas de transmission de coordonnées téléphoniques vous reconnaissez accepter expressément d'être rappelé par l'annonceur