Grosseto prugna (20128)
Grosseto prugna (20128)
265 000
€ *
- Référence : 2156-B01-3602
- Dernière mise à jour : 04/12/2025
Pour la nouvelle notation (DPE à partir de juillet 2021), c'est la plus mauvaise des deux performances (énergie, climat) qui est retenue.
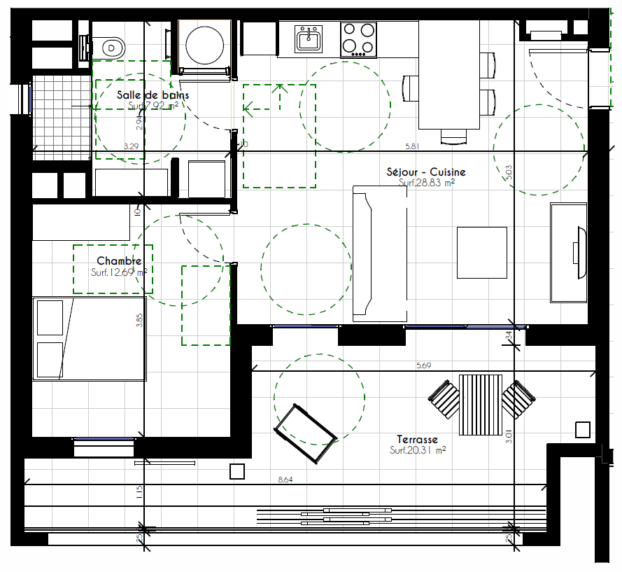
L'agence Scaglia Immo, vous propose à la vente ce bel appartement de type 2 situé au 1er étage dans la nouvelle résidence ' Les Jardins de la Viva'.
Idéalement située sur les hauteurs de Porticcio dominant la baie d'Ajaccio.
Il se compose d'une entrée, d'un séjour ouvert sur la cusine donnant accés à une belle terrasse ,d'une chambre, d'une salle d'eau et d'un wc.
Les atouts du bien :
Climatisation
Menuiseries aluminium, carrelage 60x60, volets roulants motorisés et volets coulissants selon les façades
Terrasses étanches avec point d'eau et éclairage
Stationnements extérieurs inclus et en box fermés en supplément.
Conçue pour un mode de vie éco-responsable, la résidence propose des espaces verts aménagés, des places de stationnement drainantes et des extérieurs soignés.
Les avantages de l'immobilier neuf :
- Frais de notaire réduits : seulement 2 à 3% contre 7 à 8% dans l'ancien. Dispositifs d'aide à l'achat : PTZ+, TVA réduite, aide de la Collectivité Territoriale de Corse.
- Avantages fiscaux : défiscalisation, exonération de taxe foncière pendant 2 ans.
- Sécurité et garanties : garantie décennale, biennale, de parfait achèvement.
- Performance énergétique optimale : logements conformes aux normes RE2020, assurant faible consommation et confort thermique.
Les informations sur les risques auxquels ce bien est exposé sont disponibles sur le site Géorisques : www.georisques.gouv.fr Les informations sur les risques auxquels ce bien est exposé sont disponibles sur le site Géorisques : www.georisques.gouv.fr
Détails :
Nombre de chambre(s) : 1
Nombre de pièces : 2
Nb de salle d'eau : 1
Terrasse : 1
Nombre de wc : 1
Nombre de parking : 1
Honoraires à charge du Vendeur
Bien En copropriété : Oui
Nombre de lots de la copropriété : 65
Montant moyen des Charges annuelles : 0 euros
Détail sur la procédure en cours : non
Idéalement située sur les hauteurs de Porticcio dominant la baie d'Ajaccio.
Il se compose d'une entrée, d'un séjour ouvert sur la cusine donnant accés à une belle terrasse ,d'une chambre, d'une salle d'eau et d'un wc.
Les atouts du bien :
Climatisation
Menuiseries aluminium, carrelage 60x60, volets roulants motorisés et volets coulissants selon les façades
Terrasses étanches avec point d'eau et éclairage
Stationnements extérieurs inclus et en box fermés en supplément.
Conçue pour un mode de vie éco-responsable, la résidence propose des espaces verts aménagés, des places de stationnement drainantes et des extérieurs soignés.
Les avantages de l'immobilier neuf :
- Frais de notaire réduits : seulement 2 à 3% contre 7 à 8% dans l'ancien. Dispositifs d'aide à l'achat : PTZ+, TVA réduite, aide de la Collectivité Territoriale de Corse.
- Avantages fiscaux : défiscalisation, exonération de taxe foncière pendant 2 ans.
- Sécurité et garanties : garantie décennale, biennale, de parfait achèvement.
- Performance énergétique optimale : logements conformes aux normes RE2020, assurant faible consommation et confort thermique.
Les informations sur les risques auxquels ce bien est exposé sont disponibles sur le site Géorisques : www.georisques.gouv.fr Les informations sur les risques auxquels ce bien est exposé sont disponibles sur le site Géorisques : www.georisques.gouv.fr
Détails :
Nombre de chambre(s) : 1
Nombre de pièces : 2
Nb de salle d'eau : 1
Terrasse : 1
Nombre de wc : 1
Nombre de parking : 1
Honoraires à charge du Vendeur
Bien En copropriété : Oui
Nombre de lots de la copropriété : 65
Montant moyen des Charges annuelles : 0 euros
Détail sur la procédure en cours : non
* Prix net, hors frais notarié, d'enregistrement et de publicité foncière.
Contactez
SCAGLIA IMMO
N° de téléphone
Nous suivre
Nous contacter