Givors (69700)
Givors (69700) Exclusivité
175 000
€ *
- Référence : VAP10000199-199
- Dernière mise à jour : 06/12/2025
Pour la nouvelle notation (DPE à partir de juillet 2021), c'est la plus mauvaise des deux performances (énergie, climat) qui est retenue.
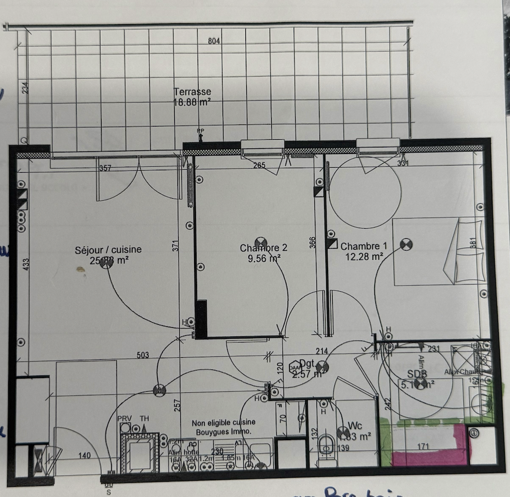
L'agence Espaces et Lieux a le plaisir de vous présenter ce très bel et récent appartement de plus de 57 m2 avec sa grande terrasse de 19 m2 situé, côté et vue sur jardin, dans une résidence sécurisée de 2023.
Idéalement placé à proximité des commerces, écoles et toutes commodités, ce bien offre un cadre de vie confortable, moderne et fonctionnel, parfait pour une résidence principale ou un investissement.
L'appartement se compose d'une cuisine aménagée ouverte sur un spacieux et lumineux salon de 26 m2, de deux grandes chambres (10 m2 et 12 m2), d'une grande salle de bains et d'une terrasse orientée Ouest de 19 m2 sans vis-à-vis.
Un garage complète ce bien.
L'appartement bénéficie d'un jardin partagé ainsi que des garanties décennales.
Les informations sur les risques auxquels ce bien est exposé sont disponibles sur le site Géorisques : www.georisques.gouv.fr
Détails :
Nombre de chambre(s) : 2
Nombre de pièces : 3
Nb de salle de bains : 1
Cuisine : Americaine -Equipee
Mode de chauffage : CONVECTEUR
Type de chauffage : ELECTRIQUE
Format de chauffage : INDIVIDUEL
Terrasse : 1
Nombre de wc : 1
Nombre de parking : 1
Bien En copropriété : Oui
Nombre de lots de la copropriété : 91
Montant moyen des Charges annuelles : 0 euros
Procédure sur le Syndicat des copropriétaires : NOTPROCESS
Détail sur la procédure en cours : non
Nom du négociateur : PESNEL Marion
Idéalement placé à proximité des commerces, écoles et toutes commodités, ce bien offre un cadre de vie confortable, moderne et fonctionnel, parfait pour une résidence principale ou un investissement.
L'appartement se compose d'une cuisine aménagée ouverte sur un spacieux et lumineux salon de 26 m2, de deux grandes chambres (10 m2 et 12 m2), d'une grande salle de bains et d'une terrasse orientée Ouest de 19 m2 sans vis-à-vis.
Un garage complète ce bien.
L'appartement bénéficie d'un jardin partagé ainsi que des garanties décennales.
Les informations sur les risques auxquels ce bien est exposé sont disponibles sur le site Géorisques : www.georisques.gouv.fr
Détails :
Nombre de chambre(s) : 2
Nombre de pièces : 3
Nb de salle de bains : 1
Cuisine : Americaine -Equipee
Mode de chauffage : CONVECTEUR
Type de chauffage : ELECTRIQUE
Format de chauffage : INDIVIDUEL
Terrasse : 1
Nombre de wc : 1
Nombre de parking : 1
Bien En copropriété : Oui
Nombre de lots de la copropriété : 91
Montant moyen des Charges annuelles : 0 euros
Procédure sur le Syndicat des copropriétaires : NOTPROCESS
Détail sur la procédure en cours : non
Nom du négociateur : PESNEL Marion
* Prix net, hors frais notarié, d'enregistrement et de publicité foncière.
Contactez
ESPACES ET LIEUX
N° de téléphone
Nous contacter
Visite virtuelle