Aulnay sous bois (93600)
AULNAY SOUS BOIS (93600)
235 000
€ *
- Référence : 14232098_2342-CH
- Dernière mise à jour : 20/12/2025
Pour la nouvelle notation (DPE à partir de juillet 2021), c'est la plus mauvaise des deux performances (énergie, climat) qui est retenue.
Informations sur les risques (ERP)
Les informations sur les risques auxquels ce bien est exposé sont disponibles sur le site Géorisques : https://www.georisques.gouv.fr
Date du diagnostic ERP : 06/12/2025
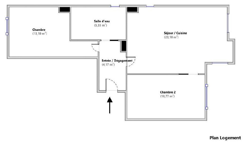
Appartement F3 de 57 m² - Le Parc, Aulnay-sous-Bois (93600) Situé dans le secteur recherché LE PARC, au 1er étage sur 4 avec ascenseur d'une copropriété sécurisée récente (2013), cet appartement F3 de 57 m² vous séduira par son confort et sa luminosité. Il se compose : - Entrée - Pièce de vie de 23 m² donnant sur une TERRASSE exposée sud-est, avec cuisine aménagée ouverte - 2 chambres, dont une de 13 m² avec BALCON et l'autre avec accès direct à la TERRASSE - Salle d'eau moderne avec toilettes ** Atouts de l'appartement ** - Aucun travaux à prévoir, prêt à vivre - Emplacement idéal en plein centre-ville, à seulement 7 minutes du RER et du - Établissements scolaires à deux pas - Terrasse et balcon pour profiter des beaux jours Un appartement LUMINEUX et FONCTIONNEL, idéal pour un couple ou une famille souhaitant vivre au coeur d'Aulnay-sous-Bois, avec toutes les commodités à proximité. Idéalement situé, à découvrir sans tarder ! Contactez votre conseillère Céline HERVÉ : Entrepreneur individuel immatriculé au RSAC N° 901337972 Tribunal de Commerce de Bobigny. Copropriété de 42 lots - dont 21 lots habitation. (Pas de procédure en cours). Charges annuelles : 1980 euros. Céline HERVÉ (EI) Agent Commercial - Numéro RSAC : 901337972 - Bobigny (93).
Etat général : Bon Etat
Surface séjour : 23.18
Surface terrasse : 7
Année de construction : 2013
Chauffage : Individuel
Chauffage (mécanisme) : Radiateur
Chauffage (mode) : Gaz
Fenêtre : PVC Double Vitrage
Cuisine : Ouverte Aménagée Equipée
Ascenceur : oui
Interphone : oui
Fibre optique : Oui
Numéro de mandat : 2342-CH
Précision localisation : LE PARC
Honoraires à la charge de : Vendeur
Bien En copropriété : Oui
Nombre de lots de la copropriété : 42
Montant moyen des Charges annuelles : 1980 euros
Procédure sur le Syndicat des copropriétaires : NC
Détail sur la procédure en cours : Pas de procédure en cours
Taxe foncière : 1081 euros
Etat général : Bon Etat
Surface séjour : 23.18
Surface terrasse : 7
Année de construction : 2013
Chauffage : Individuel
Chauffage (mécanisme) : Radiateur
Chauffage (mode) : Gaz
Fenêtre : PVC Double Vitrage
Cuisine : Ouverte Aménagée Equipée
Ascenceur : oui
Interphone : oui
Fibre optique : Oui
Numéro de mandat : 2342-CH
Précision localisation : LE PARC
Honoraires à la charge de : Vendeur
Bien En copropriété : Oui
Nombre de lots de la copropriété : 42
Montant moyen des Charges annuelles : 1980 euros
Procédure sur le Syndicat des copropriétaires : NC
Détail sur la procédure en cours : Pas de procédure en cours
Taxe foncière : 1081 euros
* Prix net, hors frais notarié, d'enregistrement et de publicité foncière.
Contactez
L'ADRESSE SUCCESS IMMOBILIER
N° de téléphone
Nous contacter