Valloire (73450)
Appartement - 3 pièce(s) - 55 m²
598 000
€ *
- Référence : 1743
- Dernière mise à jour : 24/12/2025
Pour la nouvelle notation (DPE à partir de juillet 2021), c'est la plus mauvaise des deux performances (énergie, climat) qui est retenue.
Programme d'Exception au Coeur de VALLOIRE, le Chalet Hickory est composé de 5 Appartements Haut de Gamme à 100 mètres des remontées mécaniques et à quelques pas de la station.
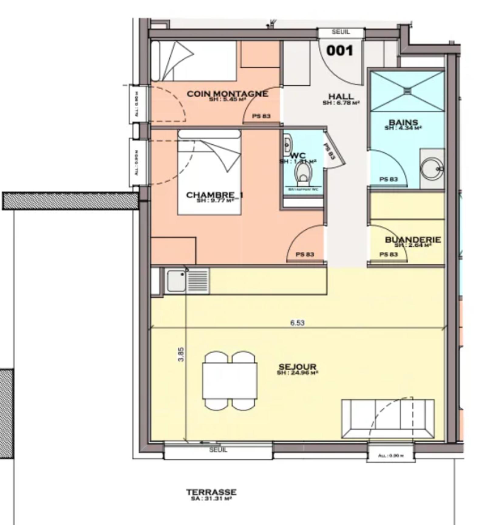
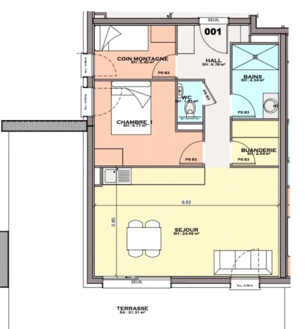
Appartement en rez de jardin, de type T2 + Coin montagne d'une surface de 55.25 m². Comprenant un hall d'entrée avec rangements de 6.78 m², une belle pièce de vie de 24.96 m² avec cuisine ouverte, donnant sur généreuse terrasse de 31.31m². Côté nuit : une chambre, un coin montagne (lits superposés ou lits d'appoint), une salle de bains de 4.34 m², un wc indépendant et une buanderie.
En plus, le logement dispose d'une grande cave/local à skis, ainsi que d'un stationnement extérieur.
Un parking ou box en sous-sol et un aménagement intérieur complet sur mesure peuvent être proposés en option.
Commercialisé en Vente en l'Etat de Futur Achèvement (VEFA), ce programme permet de bénéficier de frais de notaire réduits et ouvre la possibilité de récupérer la TVA (sous conditions).
**Livraison deuxième semestre 2027**
Prix 598 000 € TTC
Descriptif :
- Surface habitable : 55
- Nbre. d'étages : 2
- Étage du bien : RDC
- Nb. de pièces : 3
- Parking
Bien En copropriété : Non
Appartement en rez de jardin, de type T2 + Coin montagne d'une surface de 55.25 m². Comprenant un hall d'entrée avec rangements de 6.78 m², une belle pièce de vie de 24.96 m² avec cuisine ouverte, donnant sur généreuse terrasse de 31.31m². Côté nuit : une chambre, un coin montagne (lits superposés ou lits d'appoint), une salle de bains de 4.34 m², un wc indépendant et une buanderie.
En plus, le logement dispose d'une grande cave/local à skis, ainsi que d'un stationnement extérieur.
Un parking ou box en sous-sol et un aménagement intérieur complet sur mesure peuvent être proposés en option.
Commercialisé en Vente en l'Etat de Futur Achèvement (VEFA), ce programme permet de bénéficier de frais de notaire réduits et ouvre la possibilité de récupérer la TVA (sous conditions).
**Livraison deuxième semestre 2027**
Prix 598 000 € TTC
Descriptif :
- Surface habitable : 55
- Nbre. d'étages : 2
- Étage du bien : RDC
- Nb. de pièces : 3
- Parking
Bien En copropriété : Non
* Prix net, hors frais notarié, d'enregistrement et de publicité foncière.
Contactez
MATRAY IMMOBILIER
N° de téléphone
Nous contacter