Les sables-d'olonne (85100)
Les Sables-d'Olonne (85100)
199 000
€ *
- Référence : PL02/12-MAISON BLANCHE
- Dernière mise à jour : 22/01/2026
Pour la nouvelle notation (DPE à partir de juillet 2021), c'est la plus mauvaise des deux performances (énergie, climat) qui est retenue.
Sous compromis : À vendre – Appartement rénové avec balcon – Les Sables-d'Olonne
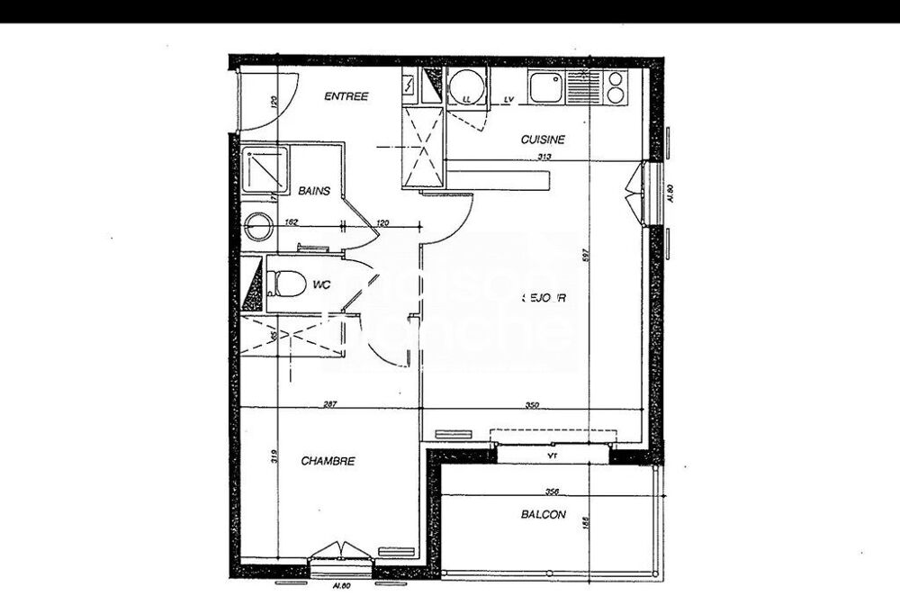
Au sein d'un environnement résidentiel recherché, à quelques minutes à pied des plages et du marché Arago, cet appartement deux pièces de 43 m² bénéficie d'un agencement fonctionnel et d'une rénovation complète.
Situé au premier et dernier étage d'une petite copropriété à faibles charges, il offre un espace de vie lumineux ouvert sur un balcon exposé sud-ouest, idéal pour profiter de l'extérieur en toute tranquillité.
L'appartement comprend :
Une entrée avec rangements
Une pièce de vie traversante avec cuisine aménagée et équipée (plaque vitrocéramique et hotte Bosch),
Une chambre avec placard intégré
Une salle d'eau contemporaine (douche colonne, sèche-serviettes, meuble vasque)
Des WC séparés
Les finitions sont soignées : parquet neuf, peintures, éclairages, terrasse bois, équipements modernes.
Local à vélos commun dans la résidence.
Stationnement aisé dans la rue.
Idéal en résidence principale, secondaire ou pour un investissement locatif qualitatif à proximité immédiate du coeur de ville.
Prix : 199000 € FAI
Contactez-nous pour obtenir plus d'informations ou planifier une visite.
Honoraires inclus de 4.74% TTC à la charge de l'acquéreur.
Prix hors honoraires 190 000 €.
Dans une copropriété de 4 lots.
Aucune procédure n'est en cours.
Classe énergie D, Classe climat B Montant estimé des dépenses annuelles d'énergie pour un usage standard : entre 800.00 € et 1100.00 € sur les années 2021, 2022 et 2023 (abonnements compris).
Les informations sur les risques auxquels ce bien est exposé sont disponibles sur le site Géorisques : georisques.gouv.fr.
Votre conseiller MAISON BLANCHE LES SABLES D'OLONNE : Paul Lipovac
Agent commercial (Entreprise individuelle)
RSAC 989 555 214
TTC
Honoraires à la charge de l'acquéreur
Pourcentage des Honoraires à la charge de l'Acquéreur : 4.74 %
Bien En copropriété : OUI
Nombre de lots de la copropriété : 4
Procédure sur le Syndicat des copropriétaires : NON
Au sein d'un environnement résidentiel recherché, à quelques minutes à pied des plages et du marché Arago, cet appartement deux pièces de 43 m² bénéficie d'un agencement fonctionnel et d'une rénovation complète.
Situé au premier et dernier étage d'une petite copropriété à faibles charges, il offre un espace de vie lumineux ouvert sur un balcon exposé sud-ouest, idéal pour profiter de l'extérieur en toute tranquillité.
L'appartement comprend :
Une entrée avec rangements
Une pièce de vie traversante avec cuisine aménagée et équipée (plaque vitrocéramique et hotte Bosch),
Une chambre avec placard intégré
Une salle d'eau contemporaine (douche colonne, sèche-serviettes, meuble vasque)
Des WC séparés
Les finitions sont soignées : parquet neuf, peintures, éclairages, terrasse bois, équipements modernes.
Local à vélos commun dans la résidence.
Stationnement aisé dans la rue.
Idéal en résidence principale, secondaire ou pour un investissement locatif qualitatif à proximité immédiate du coeur de ville.
Prix : 199000 € FAI
Contactez-nous pour obtenir plus d'informations ou planifier une visite.
Honoraires inclus de 4.74% TTC à la charge de l'acquéreur.
Prix hors honoraires 190 000 €.
Dans une copropriété de 4 lots.
Aucune procédure n'est en cours.
Classe énergie D, Classe climat B Montant estimé des dépenses annuelles d'énergie pour un usage standard : entre 800.00 € et 1100.00 € sur les années 2021, 2022 et 2023 (abonnements compris).
Les informations sur les risques auxquels ce bien est exposé sont disponibles sur le site Géorisques : georisques.gouv.fr.
Votre conseiller MAISON BLANCHE LES SABLES D'OLONNE : Paul Lipovac
Agent commercial (Entreprise individuelle)
RSAC 989 555 214
TTC
Honoraires à la charge de l'acquéreur
Pourcentage des Honoraires à la charge de l'Acquéreur : 4.74 %
Bien En copropriété : OUI
Nombre de lots de la copropriété : 4
Procédure sur le Syndicat des copropriétaires : NON
* Prix net, hors frais notarié, d'enregistrement et de publicité foncière.
Contactez
MAISON BLANCHE
N° de téléphone
Nous suivre
Nous contacter