Vente Appartement 2 pièces 62 m²

Annecy (74000)

398 000 € *
  •   Référence : FF185-241
  •   Dernière mise à jour : 18/04/2026

E
Classe Énergie
253 kWh/m² an
info
B
Indice d'émissions de gaz à effet de serre
9 kgéq/m².an
info
Pour la nouvelle notation (DPE à partir de juillet 2021), c'est la plus mauvaise des deux performances (énergie, climat) qui est retenue.
Informations sur les risques (ERP)
Les informations sur les risques auxquels ce bien est exposé sont disponibles sur le site Géorisques : https://www.georisques.gouv.fr
Date du diagnostic ERP : 19/11/2025

Annecy Vieille Ville - Coup de cœur pour ce loft de 62 m2 utiles

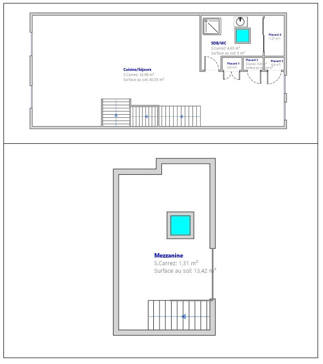
Annecy Le charme perché au sommetCoup de cœur garanti pour ce loft atypique de 62 m2 au sol, perché au 3? et dernier étage d'une résidence sans ascenseur l'occasion rêvée de faire du sport sans abonnement. Situé dans une rue piétonne pleine de cachet, au cœur des vieux quartiers d'Annecy, ce T2 façon loft a tout pour plaire.À découvrir sans tarder :Un salon-séjour lumineux pour vos soirées cocooning ou vos apéros improvisésUne cuisine ouverte et équipée, prête à accueillir vos meilleures recettes (ou vos plats à emporter)Une chambre en mezzanine, parfaite pour rêver de vos prochaines balades au bord du lacUne salle d'eau moderne et un WC, parce que le confort, c'est aussi dans les détailsLocalisation premium : à deux pas du lac, des commerces, des restaurants et de l'ambiance unique du centre historique. Ici, tout se fait à pied, sauf l'ascension vers votre nouveau nid.Rénovation haut de gamme, matériaux de qualité, aucun travaux à prévoir. Vous posez vos valises, et c'est parti.Investisseurs, ouvrez l'œil : rendement locatif au top avec 80 à 85 % de taux de remplissage en location courte durée. Un vrai petit bijou pour faire fructifier votre patrimoine.Ce loft ne restera pas longtemps sur le marché. À visiter avant qu'il ne file entre deux locations.
Bien en collaboration Interkab.

Détails :
Nombre de chambre(s) : 1
Nombre de pièces : 2
Nombre de niveaux : 2
Nb de salle d'eau : 1
Cuisine : Americaine -Equipee
Mode de chauffage : RADIATEUR
Type de chauffage : ELECTRIQUE
Format de chauffage : INDIVIDUEL
Nombre de wc : 1


Honoraires à charge du Vendeur
Taxe foncière : 490 euros

* Prix net, hors frais notarié, d'enregistrement et de publicité foncière.

Contactez
NOVAO

Adresse postale

174 ALLEE DES CHEVREUILS
74330 Sillingy
Itinéraire

Site internet

novaoimmo.fr

N° de téléphone

Siret : 97765970500015

Nous contacter

Contactez-nous pour l'annonce "Annecy Vieille Ville - Coup de cœur pour ce loft de 62 m2 utiles", Réf. : FF185-241

* Tous les champs sont obligatoires ** En cas de transmission de coordonnées téléphoniques vous reconnaissez accepter expressément d'être rappelé par l'annonceur