Vente Appartement 3 pièces 52 m²

Appartement - 3 pièce(s) - 52 m² Exclusivité

195 000 € *
  •   Référence : TAPP937985
  •   Dernière mise à jour : 02/04/2026

D
Classe Énergie
230 kWh/m² an
info
B
Indice d'émissions de gaz à effet de serre
7 kgéq/m².an
info
Pour la nouvelle notation (DPE à partir de juillet 2021), c'est la plus mauvaise des deux performances (énergie, climat) qui est retenue.

Ville-la-Grand (74100)

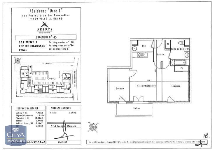
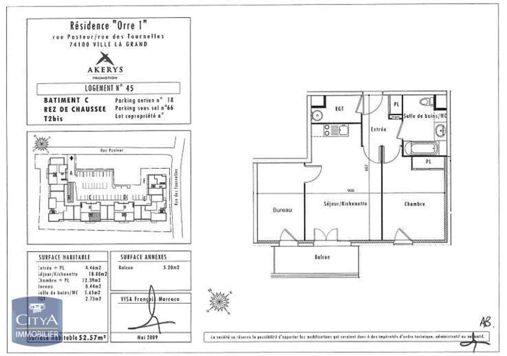
INVESTISSEUR/ vente d'un appartement 3 pièces (T2bis) de 52m2 à Ville-la-Grand, avec balcon, 2 places de parking. - VENTE Découvrez ce charmant appartement 3 pièces de 52 m², situé dans une résidence récente (2009), au cœur d'un environnement agréable et dynamique à Ville-la-Grand, à seulement 8 minutes à pied du CEVA et à proximité immédiate du tramway ligne 17. Situé en rez-de-chaussée sur 3 étages, ce bien offre une distribution fonctionnelle et optimisée, comprenant : une chambre de 12 m2, un bureau ou chambre d'appoint de 8m2, un séjour lumineux de 18m2 ouvrant sur un balcon exposé Sud-Ouest de 5 m², et enfin un cellier de 2.8m2. Chauffage individuel électrique par radiateurs Atout rare dans le secteur : Deux places de stationnement incluses (extérieur + sous-sol) Sa proximité avec le CEVA et les transports transfrontaliers en fait un emplacement particulièrement recherché et sécurisé pour un investissement pérenne. Carrefour Market et salle de fitness à proximité, accessible à pied Il s'agit d'une opportunité idéale pour investir dans un secteur dynamique à forte demande locative. Contactez Laurent Chevalier pour organiser une visite : ou À très bientôt pour découvrir ce bien !. Le bien est soumis au statut de la copropriété , la quote-part budget prévisionnel (dépenses courantes) est de 1 100,00 euros/an. Honoraires à la charge du vendeur. Vous pouvez consulter les barèmes d'honoraires à l'adresse suivante : . Montant estimé des dépenses annuelles d'énergie pour un usage standard : entre 890 et 1 260 euros. Prix moyens des énergies indexés en 2021. Les informations sur les risques auxquels ce bien est exposé sont disponibles sur le site Géorisques : https://www.georisques.gouv.fr

* Prix net, hors frais notarié, d'enregistrement et de publicité foncière.

Contactez
CITYA PERILLAT VALP IMMOBILIER

Adresse postale

9 rue de la Gare
74100 Annemasse
Itinéraire

N° de téléphone

Siret : 39070836000057

Nous contacter

Contactez-nous pour l'annonce "Ville-la-Grand (74100)", Réf. : TAPP937985

* Tous les champs sont obligatoires ** En cas de transmission de coordonnées téléphoniques vous reconnaissez accepter expressément d'être rappelé par l'annonceur