Vente Appartement 5 pièces 160 m²

Pourcieux (83470)

280 000 € *
  •   Référence : 86909530
  •   Dernière mise à jour : 21/04/2026

D
Classe Énergie
248 kWh/m² an
info
D
Indice d'émissions de gaz à effet de serre
49 kgéq/m².an
info
Pour la nouvelle notation (DPE à partir de juillet 2021), c'est la plus mauvaise des deux performances (énergie, climat) qui est retenue.
Informations sur les risques (ERP)
Les informations sur les risques auxquels ce bien est exposé sont disponibles sur le site Géorisques : https://www.georisques.gouv.fr

Appartement T4/5

OPPORTUNITÉ EXCLUSIVE, Très Beau T5 en triplex en centre village de Pourcieux (83470) à 5 minutes seulement des commodités de Saint Maximin la sainte Baume.VISITE VIRTUELLE DISPONIBLE SUR LE SITE AGENCE.Joli potentiel pour ce bien atypique de 160m² env habitables.
Le rez de chaussé se compose d'un ancien local de coiffure , un grand hall d'entrée une remise, et un toilette avec point d'eau.
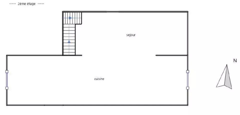
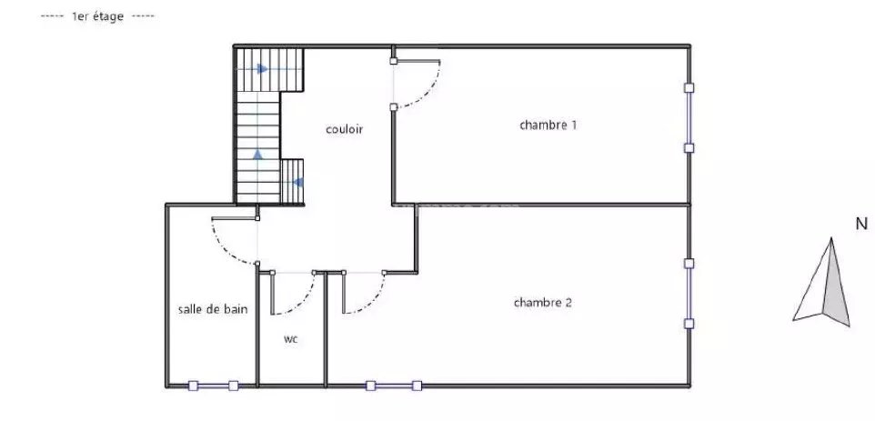
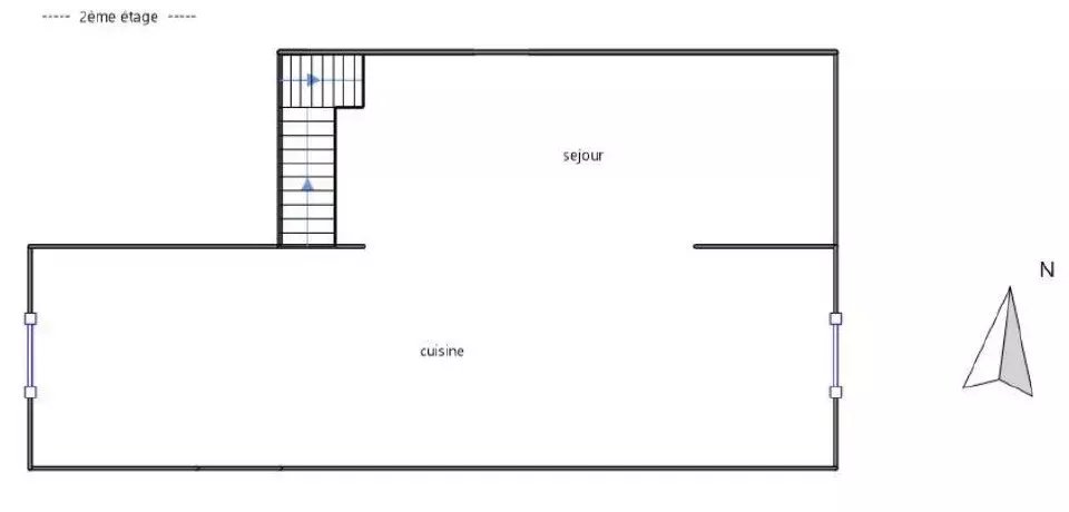
Le premier étage offre 2 chambres, un toilette et une salle de bain, le dernier étage dispose d'un séjour / salle a manger volumineux et une cuisine ouverte.Idéal famille désireuse de devenir propriétaire a moindre cout, avec possibilité d'un commerce ou bureau ou revenu locatif en rdc.
Dépendance attenante .A SAISIR !!

Numéro de mandat : 0430

Honoraires à la charge du Vendeur
Bien En copropriété : NON

* Prix net, hors frais notarié, d'enregistrement et de publicité foncière.

Contactez
ARTHURIMMO.COM AUBAGNE

Adresse postale

34 Rue de la République
13400 Aubagne
Itinéraire

N° de téléphone

Siret : 84085065500019

Nous contacter

Contactez-nous pour l'annonce "Appartement T4/5", Réf. : 86909530

* Tous les champs sont obligatoires ** En cas de transmission de coordonnées téléphoniques vous reconnaissez accepter expressément d'être rappelé par l'annonceur