Mazamet (81200)
Mazamet (81200)
339 000
€ *
- Référence : 84969759AG
- Dernière mise à jour : 17/01/2026
Pour la nouvelle notation (DPE à partir de juillet 2021), c'est la plus mauvaise des deux performances (énergie, climat) qui est retenue.
Informations sur les risques (ERP)
Les informations sur les risques auxquels ce bien est exposé sont disponibles sur le site Géorisques : https://www.georisques.gouv.fr
Située dans un quartier calme et résidentiel de Mazamet, cette magnifique maison bourgeoise entièrement rénovée séduit par son élégance intemporelle et son confort moderne.
Implantée sur un terrain clos et arboré de 1 500 m², à l'abri des regards, elle offre un cadre de vie privilégié, idéal pour une famille en quête de sérénité.
Un art de vivre raffiné
Dès l'entrée, un vaste hall dévoile le charme authentique de la demeure.
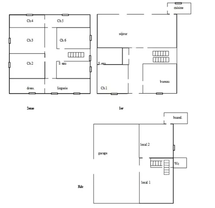
Le rez-de-chaussée accueille deux chambres, dont une suite avec salle d'eau privative, un salon/salle à manger spacieux et baigné de lumière, ainsi qu'une cuisine indépendante moderne, ouverte sur une terrasse ensoleillée avec vue dégagée.
Des espaces généreux et lumineux
À l'étage, trois chambres supplémentaires, une salle d'eau et deux pièces mansardées modulables (bureau, salle de jeux, chambres d'enfants) complètent l'espace nuit.
Le rez-de-jardin, aménagé avec une pièce chauffée, constitue un lieu idéal pour un espace de loisirs ou de travail.
Un garage vient parfaire l'ensemble.
Un cadre de vie exceptionnel
Le jardin arboré accueille une superbe piscine au sel chauffée de 10x5 m, véritable invitation à la détente en toute saison.
Côté confort, la maison bénéficie d'une chaudière à condensation au fioul, de menuiseries en double vitrage et d'une isolation récente des combles, garantissant efficacité énergétique et bien-être au quotidien.
Points forts
Demeure bourgeoise rénovée avec goût
5 chambres + espaces modulables
Piscine chauffée au sel 10x5 m avec pompe à chaleur
Terrain clos et arboré de 1 500 m²
Quartier résidentiel calme et recherché
? Mazamet – Tarn (81)
Une visite virtuelle est disponible sur castres.arthurimmo.com, mais seule une visite en personne saura révéler le charme et les volumes de cette demeure d'exception.
i Les informations sur les risques auxquels ce bien est exposé sont disponibles sur le site : www.georisques.gouv.fr.
? Les photos identifiées « Projet » sont des suggestions de décoration et ne sont pas contractuelles.
Honoraires à la charge du Vendeur
Bien En copropriété : NON
Implantée sur un terrain clos et arboré de 1 500 m², à l'abri des regards, elle offre un cadre de vie privilégié, idéal pour une famille en quête de sérénité.
Un art de vivre raffiné
Dès l'entrée, un vaste hall dévoile le charme authentique de la demeure.
Le rez-de-chaussée accueille deux chambres, dont une suite avec salle d'eau privative, un salon/salle à manger spacieux et baigné de lumière, ainsi qu'une cuisine indépendante moderne, ouverte sur une terrasse ensoleillée avec vue dégagée.
Des espaces généreux et lumineux
À l'étage, trois chambres supplémentaires, une salle d'eau et deux pièces mansardées modulables (bureau, salle de jeux, chambres d'enfants) complètent l'espace nuit.
Le rez-de-jardin, aménagé avec une pièce chauffée, constitue un lieu idéal pour un espace de loisirs ou de travail.
Un garage vient parfaire l'ensemble.
Un cadre de vie exceptionnel
Le jardin arboré accueille une superbe piscine au sel chauffée de 10x5 m, véritable invitation à la détente en toute saison.
Côté confort, la maison bénéficie d'une chaudière à condensation au fioul, de menuiseries en double vitrage et d'une isolation récente des combles, garantissant efficacité énergétique et bien-être au quotidien.
Points forts
Demeure bourgeoise rénovée avec goût
5 chambres + espaces modulables
Piscine chauffée au sel 10x5 m avec pompe à chaleur
Terrain clos et arboré de 1 500 m²
Quartier résidentiel calme et recherché
? Mazamet – Tarn (81)
Une visite virtuelle est disponible sur castres.arthurimmo.com, mais seule une visite en personne saura révéler le charme et les volumes de cette demeure d'exception.
i Les informations sur les risques auxquels ce bien est exposé sont disponibles sur le site : www.georisques.gouv.fr.
? Les photos identifiées « Projet » sont des suggestions de décoration et ne sont pas contractuelles.
Honoraires à la charge du Vendeur
Bien En copropriété : NON
* Prix net, hors frais notarié, d'enregistrement et de publicité foncière.
Contactez
ARTHURIMMO.COM CASTRES
N° de téléphone
Nous contacter
Autre contact (à Castres )
ArthurImmo.com Castres
15 Boulevard Marechal Foch
81100 Castres
Tél.
Site web
Visite virtuelle