Oye plage (62215)
Maison - 6 pièce(s) - 400 m² Exclusivité
315 500
€ *
- Référence : 202_513_18274
- Dernière mise à jour : 18/01/2026
Pour la nouvelle notation (DPE à partir de juillet 2021), c'est la plus mauvaise des deux performances (énergie, climat) qui est retenue.
Informations sur les risques (ERP)
Les informations sur les risques auxquels ce bien est exposé sont disponibles sur le site Géorisques : https://www.georisques.gouv.fr
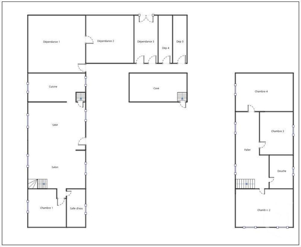
Century21 Immopale vous invite à découvrir cette jolie et imposante propriété individuelle en semi-plain-pied offrant 150m² habitables, implantée sur une vaste parcelle de 2510m² déjà aménagée pour accueillir des chevaux, sur le secteur prisé de Oye-Plage.
Vous découvrirez au rez de chaussée un vaste et lumineux salon séjour prolongé par une jolie cuisine ouverte aménagée et équipée offrant un espace de vie de près de 70m2 ! Une jolie et récente suite parentale vient compléter les prestations du rez de chaussée.
À l'étage, vous trouverez un grand palier lumineux offrant une vue dégagée sur les champs de chaque côté, menant à trois belles chambres ainsi qu'à une salle d'eau.
Vous serez séduits par les extérieurs comprenant une terrasse idéalement orientée plein sud, un jardin tout autour de la maison offrant le soleil à chaque moment de la journée, ainsi qu'une carrière aménagée pour monter à cheval.
Un bâtiment attenant à la maison, actuellement aménagé en écurie et bénéficiant d'un étage, offre une possibilité d'aménagement supplémentaire d'environ 200m², laissant libre cours à votre imagination, tant pour les passionnés d'équitation que pour ceux ayant des projets ambitieux : extension de la maison, espace professionnel, atelier, salle de sport ou projet locatif.
Une allée de stationnement pouvant accueillir plusieurs véhicules ainsi qu'une cave viennent compléter ce bien.
Le tout sur une parcelle de 2510m2.
L'ensemble de la maison a été entièrement rénové il y a deux ans, avec des prestations modernes et réalisées avec goût. Une visite s'impose contactez-nous sans attendre Prix : 315500.0 euros, Honoraires charge vendeur.
Surface Loi Carrez : 150
Honoraires à la charge de l'Acquéreur : non
Vous découvrirez au rez de chaussée un vaste et lumineux salon séjour prolongé par une jolie cuisine ouverte aménagée et équipée offrant un espace de vie de près de 70m2 ! Une jolie et récente suite parentale vient compléter les prestations du rez de chaussée.
À l'étage, vous trouverez un grand palier lumineux offrant une vue dégagée sur les champs de chaque côté, menant à trois belles chambres ainsi qu'à une salle d'eau.
Vous serez séduits par les extérieurs comprenant une terrasse idéalement orientée plein sud, un jardin tout autour de la maison offrant le soleil à chaque moment de la journée, ainsi qu'une carrière aménagée pour monter à cheval.
Un bâtiment attenant à la maison, actuellement aménagé en écurie et bénéficiant d'un étage, offre une possibilité d'aménagement supplémentaire d'environ 200m², laissant libre cours à votre imagination, tant pour les passionnés d'équitation que pour ceux ayant des projets ambitieux : extension de la maison, espace professionnel, atelier, salle de sport ou projet locatif.
Une allée de stationnement pouvant accueillir plusieurs véhicules ainsi qu'une cave viennent compléter ce bien.
Le tout sur une parcelle de 2510m2.
L'ensemble de la maison a été entièrement rénové il y a deux ans, avec des prestations modernes et réalisées avec goût. Une visite s'impose contactez-nous sans attendre Prix : 315500.0 euros, Honoraires charge vendeur.
Surface Loi Carrez : 150
Honoraires à la charge de l'Acquéreur : non
* Prix net, hors frais notarié, d'enregistrement et de publicité foncière.
Contactez
CENTURY 21 IMMOPALE
N° de téléphone
Fax.
Nous contacter