Saulieu (21210)
Saulieu (21210) Exclusivité
300 000
€ *
- Référence : 4723
- Dernière mise à jour : 17/01/2026
Pour la nouvelle notation (DPE à partir de juillet 2021), c'est la plus mauvaise des deux performances (énergie, climat) qui est retenue.
SAULIEU, maison de caractère avec des prestations haut de gamme d'une surface habitable d'environ 200 m² comprenant au rez-de-chaussée surélevé, accessible par un escalier arrondi et un perron abrité donnant sur le hall d'entrée, avec escalier d'accès à l'étage et au sous-sol, un long couloir dessert d'une part le séjour double, une salle à manger/salon avec trois portes-fenêtres donnant sur une terrasse exposée sud-ouest avec cheminée de style, et d'autre part, un WC et un placard.
Au fond du couloir, une grande cuisine aménagée avec ilôt central, un salon avec cheminée Louis XV et deux portes-fenêtres donnant sur la terrasse, un bureau, et un dégagement avec ascenseur desservant tous les niveaux.
À l'étage : quatre chambres dont deux avec dressing, 2 salles de bains dont une avec WC, 1 salle d'eau et 1 WC.
Couloir et dégagement vers l'ascenseur distribuant les 3 niveaux.
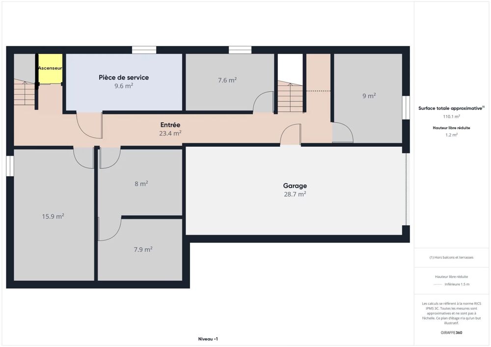
Au sous-sol : garage, chaufferie, deux caves, buanderie avec douche, et deux pièces.
Surface du sous-sol : environ 98 m².
Terrain attenant d'environ 1500 m².
Numéro de mandat : 4723
Honoraires à la charge du Vendeur
Bien En copropriété : NON
Au fond du couloir, une grande cuisine aménagée avec ilôt central, un salon avec cheminée Louis XV et deux portes-fenêtres donnant sur la terrasse, un bureau, et un dégagement avec ascenseur desservant tous les niveaux.
À l'étage : quatre chambres dont deux avec dressing, 2 salles de bains dont une avec WC, 1 salle d'eau et 1 WC.
Couloir et dégagement vers l'ascenseur distribuant les 3 niveaux.
Au sous-sol : garage, chaufferie, deux caves, buanderie avec douche, et deux pièces.
Surface du sous-sol : environ 98 m².
Terrain attenant d'environ 1500 m².
Numéro de mandat : 4723
Honoraires à la charge du Vendeur
Bien En copropriété : NON
* Prix net, hors frais notarié, d'enregistrement et de publicité foncière.
Contactez
AGENCE DOM'IMMO
N° de téléphone
Nous contacter