Ciadoux (31350)
Ciadoux (31350) Exclusivité
280 500
€ *
- Référence : kossel00284-36909
- Dernière mise à jour : 22/01/2026
Pour la nouvelle notation (DPE à partir de juillet 2021), c'est la plus mauvaise des deux performances (énergie, climat) qui est retenue.
Contact : Kossel IMMO, Karl et Sabine de D-HABITAT (carte pro CPI 3031 733)
Cette Belle Propriété est composée d'une Magnifique Villa rénovée avec goût et avec beaucoup de confort, de grandes dépendances pratiques, d'une piscine, d'un beau terrain de 8393m2, le tout avec une Vue Magique sur les Pyrénées.
Elle est idéale pour une famille nombreuse (5 chambres), un artisan (dépendances adaptées) ou quelqu'un qui souhaite avoir deux trois petits animaux au pré (env.4500m2 de pré sur le terrain).
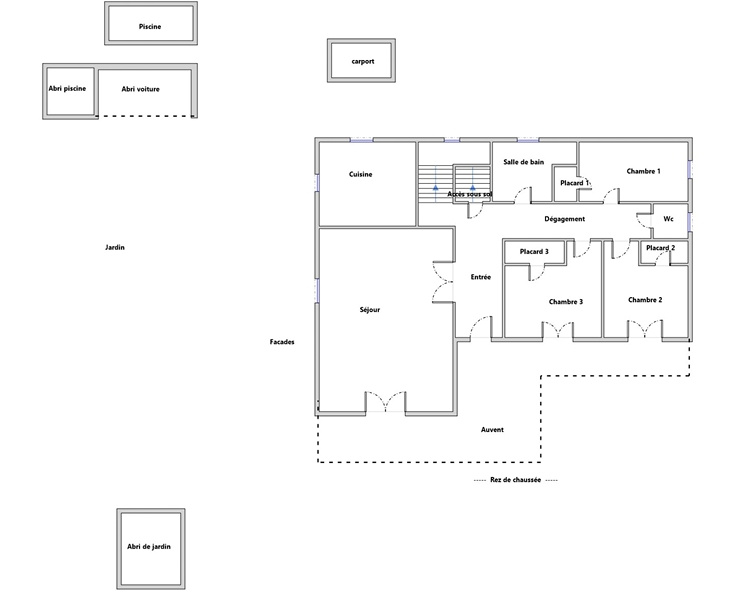
La Villa: D'une superficie de 155m2 habitables, cette Villa tout confort a été rénovée avec goût et comprend en rez-de-chaussée : une entrée desservant un grand séjour (env.30m2) donnant sur une terrasse, avec insert à bois et vue sur les Pyrénées, une cuisine équipée, trois chambres toutes avec placards/dressing, une salle de bain, des toilettes séparées. A l'étage où on accède par un escalier en bois, nous trouvons deux chambres, une salle d'eau avec toilettes ainsi que deux grands greniers servant de débarras. Une terrasse couverte et une terrasse non couverte, toutes deux avec vue Pyrénées. En sous-sol, un grand espace (voir dépendances). Plans disponibles en fin des photos sur notre site.
Les dépendances : Un carport ouvert pour abriter une voiture, Un grand garage d'environ 40m2 fermé sur trois côtés, un local piscine, un abri jardin. En sous-sol de la maison, environ 130m2 de surface comprenant un garage, un atelier, un espace buanderie, une chaufferie, une cave.
Le terrain : D'une superficie totale de 8393m2, le terrain est arboré et fleuri, avec de nombreux espaces où se poser en toute tranquillité. Une serre de 8X4m sur le terrain, permettant de faire pousser des légumes d'été et d'hiver ! Une piscine sans vis-à-vis (rénovée en 2024) agrémente la propriété, indispensable pour se rafraichir lorsqu'il fait chaud !
Technique : Chauffage central pompe à chaleur ou fioul + insert à bois (installation récente) dans la pièce de vie principale / Double vitrage, moustiquaires, volets roulants électriques / Fosse septique / Diags : pas d'amiante, pas de plomb, pas de termites, DPE C / Taxe Foncière 1257 euros / Exemple Hauteurs de plafond : cuisine 2.44m, grand séjour 2.5m (les photos grand angle donnent l'impression de plafond bas, mais non !).
Situation : Dans un petit village, à 15min de Boulogne Sur Gesse.
Suivez-nous sur et Mandataires Karl-Kossel (l-agence-immobiliere.fr) - Annonce rédigée et publiée par un Agent Mandataire -
Détails :
Nombre de chambre(s) : 5
Nombre de pièces : 7
Nombre de niveaux : 2
Nb de salle de bains : 1
Nb de salle d'eau : 1
Cuisine : Separee -Equipee
Mode de chauffage : CHAUDIERE
Type de chauffage : FIOUL
Format de chauffage : CENTRAL
Terrasse : 1
Piscine : 1
Nombre de wc : 2
Honoraires à charge de l'Acquéreur
Honoraires : 10500 euros
Pourcentage des Honoraires à la charge de l'Acquéreur : 3.89 %
Prix net vendeur : 270000 euros
Nom du négociateur : Karl KOSSEL
Taxe foncière : 1257 euros
Cette Belle Propriété est composée d'une Magnifique Villa rénovée avec goût et avec beaucoup de confort, de grandes dépendances pratiques, d'une piscine, d'un beau terrain de 8393m2, le tout avec une Vue Magique sur les Pyrénées.
Elle est idéale pour une famille nombreuse (5 chambres), un artisan (dépendances adaptées) ou quelqu'un qui souhaite avoir deux trois petits animaux au pré (env.4500m2 de pré sur le terrain).
La Villa: D'une superficie de 155m2 habitables, cette Villa tout confort a été rénovée avec goût et comprend en rez-de-chaussée : une entrée desservant un grand séjour (env.30m2) donnant sur une terrasse, avec insert à bois et vue sur les Pyrénées, une cuisine équipée, trois chambres toutes avec placards/dressing, une salle de bain, des toilettes séparées. A l'étage où on accède par un escalier en bois, nous trouvons deux chambres, une salle d'eau avec toilettes ainsi que deux grands greniers servant de débarras. Une terrasse couverte et une terrasse non couverte, toutes deux avec vue Pyrénées. En sous-sol, un grand espace (voir dépendances). Plans disponibles en fin des photos sur notre site.
Les dépendances : Un carport ouvert pour abriter une voiture, Un grand garage d'environ 40m2 fermé sur trois côtés, un local piscine, un abri jardin. En sous-sol de la maison, environ 130m2 de surface comprenant un garage, un atelier, un espace buanderie, une chaufferie, une cave.
Le terrain : D'une superficie totale de 8393m2, le terrain est arboré et fleuri, avec de nombreux espaces où se poser en toute tranquillité. Une serre de 8X4m sur le terrain, permettant de faire pousser des légumes d'été et d'hiver ! Une piscine sans vis-à-vis (rénovée en 2024) agrémente la propriété, indispensable pour se rafraichir lorsqu'il fait chaud !
Technique : Chauffage central pompe à chaleur ou fioul + insert à bois (installation récente) dans la pièce de vie principale / Double vitrage, moustiquaires, volets roulants électriques / Fosse septique / Diags : pas d'amiante, pas de plomb, pas de termites, DPE C / Taxe Foncière 1257 euros / Exemple Hauteurs de plafond : cuisine 2.44m, grand séjour 2.5m (les photos grand angle donnent l'impression de plafond bas, mais non !).
Situation : Dans un petit village, à 15min de Boulogne Sur Gesse.
Suivez-nous sur et Mandataires Karl-Kossel (l-agence-immobiliere.fr) - Annonce rédigée et publiée par un Agent Mandataire -
Détails :
Nombre de chambre(s) : 5
Nombre de pièces : 7
Nombre de niveaux : 2
Nb de salle de bains : 1
Nb de salle d'eau : 1
Cuisine : Separee -Equipee
Mode de chauffage : CHAUDIERE
Type de chauffage : FIOUL
Format de chauffage : CENTRAL
Terrasse : 1
Piscine : 1
Nombre de wc : 2
Honoraires à charge de l'Acquéreur
Honoraires : 10500 euros
Pourcentage des Honoraires à la charge de l'Acquéreur : 3.89 %
Prix net vendeur : 270000 euros
Nom du négociateur : Karl KOSSEL
Taxe foncière : 1257 euros
* Prix net, hors frais notarié, d'enregistrement et de publicité foncière.
Contactez
D-HABITAT - L'AGENCE IMMOBILIERE
N° de téléphone
Nous contacter