La colle-sur-loup (06480)

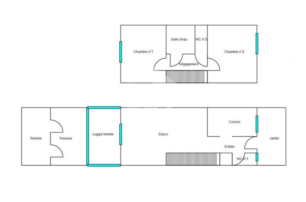
Maison - 3 pièce(s) - 62 m²

360 000 € *
  •   Référence : 2457
  •   Dernière mise à jour : 13/11/2025

B
Classe Énergie
86 kWh/m² an
info
A
Indice d'émissions de gaz à effet de serre
2 kgéq/m².an
info
Pour la nouvelle notation (DPE à partir de juillet 2021), c'est la plus mauvaise des deux performances (énergie, climat) qui est retenue.

Située dans un quartier résidentiel calme et familial, cette maison mitoyenne traversante de 62 m² est en bon état général. Lumineuse grâce à son exposition sud-ouest, elle offre un agencement pratique et fonctionnel. Vous profiterez de la climatisation, d'une terrasse ensoleillée, d'une véranda accueillante ainsi que d'un parking privé. Un bien idéal pour une vie paisible en famille.
L'Etat des Risques et Pollution peut être consulté sur https://www.georisques.gouv.fr


Honoraires à la charge du Vendeur
Pourcentage des Honoraires : 18000.000 %
Bien En copropriété : Oui
Nombre de lots de la copropriété : 65
Montant moyen des Charges annuelles : 121.00 euros

* Prix net, hors frais notarié, d'enregistrement et de publicité foncière.

Contactez
ERA AGENCE B.A IMMOBILIER

Adresse postale

135 avenue Emile Hugues
06140 VENCE
Itinéraire

Site internet

erabaimmobilier.com

N° de téléphone

Siret : 981947898

Nous contacter

Contactez-nous pour l'annonce "La Colle-sur-Loup (06480)", Réf. : 2457

* Tous les champs sont obligatoires ** En cas de transmission de coordonnées téléphoniques vous reconnaissez accepter expressément d'être rappelé par l'annonceur