Saulieu (21210)
Saulieu (21210) Exclusivité
140 000
€ *
- Référence : 4703
- Dernière mise à jour : 06/12/2025
Pour la nouvelle notation (DPE à partir de juillet 2021), c'est la plus mauvaise des deux performances (énergie, climat) qui est retenue.
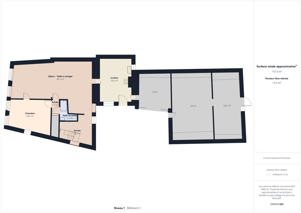
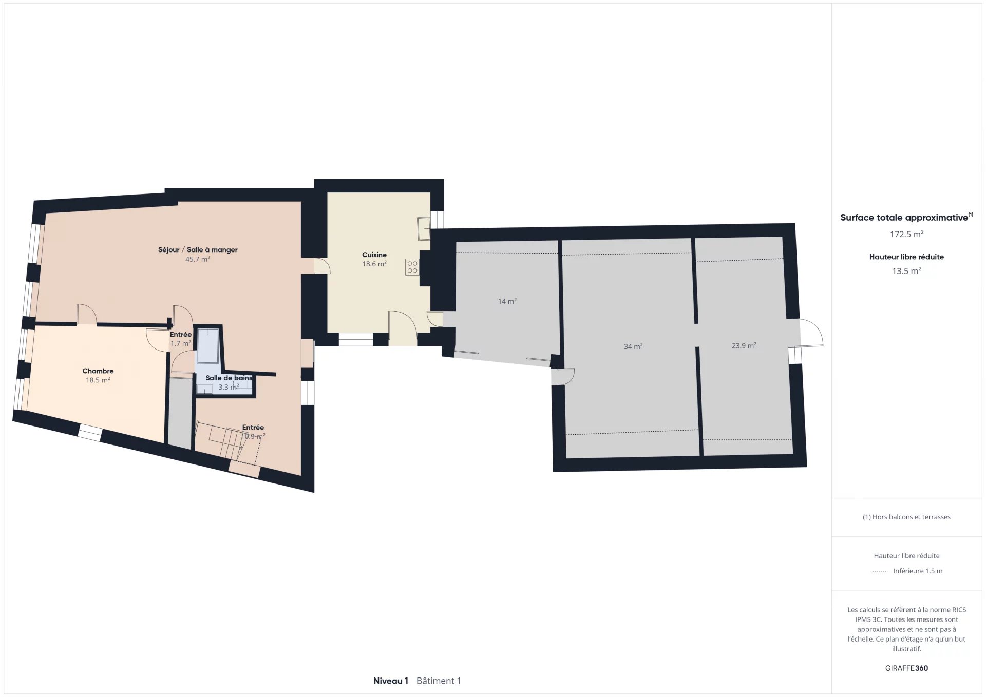
SAULIEU CENTRE VILLE, situation idéale pour cet Immeuble à usage de commerce et habitation comprenant en rez-de-chaussée un grand magasin avec large vitrine sur rue, réserve et chambre froide, accès aux réserves indépendantes de l'entrée principale, à la suite en usage privé au logement située au-dessus du magasin au premier étage avec accès par voie privée, comprenant une grande terrasse exposée Sud, une cuisine, un séjour/une salle à manger de 45 m² environ,une chambre de 17 m² environ , une salle d'eau/WC, beaucoup de cachet pour ce niveau où l'on retrouve sol tomettes, plafond à la française.
Au second étage aménagé dans un ancien grenier: un salon de 36 m² , deux chambres de 13 m² et 16 m², une salle de sport et une salle d'eau/WC.
Au-dessus : grande salle de jeu mansardée de 50 m² environ, avec charpente apparente.
Depuis la terrasse on accède à un grenier aménageable, situé au-dessus des réserves du rez de chaussée.
Chauffage électrique et à bois, toutes les menuiseries extérieures sont en PVC double vitrage et volets roulants.
Garage, courette atelier et caves voutées.
Vous habitez en centre-ville dans un grand et agréable appartement avec terrasse, et dépendances.
Numéro de mandat : 4703
Honoraires à la charge du Vendeur
Bien En copropriété : NON
Au second étage aménagé dans un ancien grenier: un salon de 36 m² , deux chambres de 13 m² et 16 m², une salle de sport et une salle d'eau/WC.
Au-dessus : grande salle de jeu mansardée de 50 m² environ, avec charpente apparente.
Depuis la terrasse on accède à un grenier aménageable, situé au-dessus des réserves du rez de chaussée.
Chauffage électrique et à bois, toutes les menuiseries extérieures sont en PVC double vitrage et volets roulants.
Garage, courette atelier et caves voutées.
Vous habitez en centre-ville dans un grand et agréable appartement avec terrasse, et dépendances.
Numéro de mandat : 4703
Honoraires à la charge du Vendeur
Bien En copropriété : NON
* Prix net, hors frais notarié, d'enregistrement et de publicité foncière.
Contactez
AGENCE DOM'IMMO
N° de téléphone
Nous contacter