Carnoy-mametz (80300)
Carnoy-Mametz (80300) Exclusivité
45 000
€ *
- Référence : 1847609
- Dernière mise à jour : 06/12/2025
Pour la nouvelle notation (DPE à partir de juillet 2021), c'est la plus mauvaise des deux performances (énergie, climat) qui est retenue.
Immobilier.notaires® et l'office notarial SELAS Laurent GILQUIN et Associés vous proposent :
Maison de ville / village à vendre aux enchères
- - - - - - - - - - - - - - - - - - - - - -
Adresse du bien : 2 bis et 3 Place Saint Vaast 80300 CARNOY
- - - - - - - - - - - - - - - - - - - - - -
En L'OFFICE NOTARIAL SAS GILQUIN ET ASSOCIES
26/28, Rue Gambetta 80300 ALBERT
Jeudi 4 décembre 2025 à 10h30
(Dépôt de consignation à 10H00)
--------------------------------
CARNOY-MAMETZ (80300)
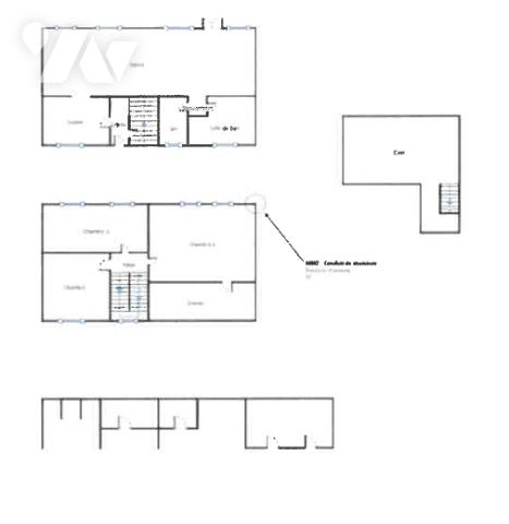
LOT 1 : 3 Place Saint Vaast ; MAISON INDIVIDUELLE (R+1) de 123 m² A RENOVER– LIBRE - Classe énergie : G. Classe climat : G.
Dépenses (estimation) : 9 820 € - Logement consommation excessive
LOT 2 : 2 Bis Place Saint Vaast ; GARAGE AVEC JARDIN - LIBRE
Lot 1 : Une maison individuelle à rénover d'environ 123 m² datant d'avant 1948 se c comme suit : composant comme suit :
Rez-de-chaussée : cuisine, séjour, salle de bains, wc indépendant et une terrasse
1er étage : palier et deux chambres
Terrasse - Terrain
Cadastrée section 175 AB numéro 39 pour une contenance de 274 m²
Chauffage : Chaudière individuelle fioul
Eau chaude : Cumulus électrique
Lot 2 : Un garage avec jardin
Cadastré section 175 AB numéro 74 pour une contenance de 127 m²
Mise à prix : 45 000 € avec faculté de baisse du 1/4 puis du 1/3 ou de moitié 1/2 à défaut d'enchères.
Consignation : 4 500 € (par virement bancaire sur le compte de Maître Laurent GILQUIN Notaire)
Visites sur rendez-vous les 18/11 et 25/11 à 11H30.
Taxe foncière : Information non communiquée
Cahier des conditions de vente consultable en l'office et transmis après la visite par mail.
Les informations sur les risques auxquels ce bien est exposé sont disponibles sur le site Géorisques https://www.georisques.gouv.fr/.
Infos : ou
Me Laurent GILQUIN à ALBERT (80300)
www.immobilier.notaires.fr, le site immobilier des notaires.
- - - - - - - - - - - - - - - - - - - - - -
Visites : Visites sur rendez-vous les 18/11 et 25/11 à 11H30
Contact :
- - - - - - - - - - - - - - - - - - - - - -
Conditions de la vente : Le bien est mis en vente aux enchères publiques.
Date de la vente : le 04/12/25 à 10:30
Lieu de la vente : En L'OFFICE NOTARIAL SAS GILQUIN ET ASSOCIES - 26/28, Rue Gambetta 80300 ALBERT
Mise à prix avec faculté de baisse : 45 000 euros
Le cahier des conditions de vente est consultable à l'office notarial.
- - - - - - - - - - - - - - - - - - - - - -
Annonce de l'étude SELAS Laurent GILQUIN et Associés - Notaires à Albert - N° SIRET : 3040
- - - - - - - - - - - - - - - - - - - - - -
Immobilier.notaires® : Evaluer, acheter & vendre avec les notaires partout en France. 12 000 notaires, experts et négociateurs vous accompagnent dans vos projets immobiliers en toute confiance.
Référence : 251204VAE15CARNOY
Précision localisation : CARNOY-MAMETZ (80300)
Maison de ville / village à vendre aux enchères
- - - - - - - - - - - - - - - - - - - - - -
Adresse du bien : 2 bis et 3 Place Saint Vaast 80300 CARNOY
- - - - - - - - - - - - - - - - - - - - - -
En L'OFFICE NOTARIAL SAS GILQUIN ET ASSOCIES
26/28, Rue Gambetta 80300 ALBERT
Jeudi 4 décembre 2025 à 10h30
(Dépôt de consignation à 10H00)
--------------------------------
CARNOY-MAMETZ (80300)
LOT 1 : 3 Place Saint Vaast ; MAISON INDIVIDUELLE (R+1) de 123 m² A RENOVER– LIBRE - Classe énergie : G. Classe climat : G.
Dépenses (estimation) : 9 820 € - Logement consommation excessive
LOT 2 : 2 Bis Place Saint Vaast ; GARAGE AVEC JARDIN - LIBRE
Lot 1 : Une maison individuelle à rénover d'environ 123 m² datant d'avant 1948 se c comme suit : composant comme suit :
Rez-de-chaussée : cuisine, séjour, salle de bains, wc indépendant et une terrasse
1er étage : palier et deux chambres
Terrasse - Terrain
Cadastrée section 175 AB numéro 39 pour une contenance de 274 m²
Chauffage : Chaudière individuelle fioul
Eau chaude : Cumulus électrique
Lot 2 : Un garage avec jardin
Cadastré section 175 AB numéro 74 pour une contenance de 127 m²
Mise à prix : 45 000 € avec faculté de baisse du 1/4 puis du 1/3 ou de moitié 1/2 à défaut d'enchères.
Consignation : 4 500 € (par virement bancaire sur le compte de Maître Laurent GILQUIN Notaire)
Visites sur rendez-vous les 18/11 et 25/11 à 11H30.
Taxe foncière : Information non communiquée
Cahier des conditions de vente consultable en l'office et transmis après la visite par mail.
Les informations sur les risques auxquels ce bien est exposé sont disponibles sur le site Géorisques https://www.georisques.gouv.fr/.
Infos : ou
Me Laurent GILQUIN à ALBERT (80300)
www.immobilier.notaires.fr, le site immobilier des notaires.
- - - - - - - - - - - - - - - - - - - - - -
Visites : Visites sur rendez-vous les 18/11 et 25/11 à 11H30
Contact :
- - - - - - - - - - - - - - - - - - - - - -
Conditions de la vente : Le bien est mis en vente aux enchères publiques.
Date de la vente : le 04/12/25 à 10:30
Lieu de la vente : En L'OFFICE NOTARIAL SAS GILQUIN ET ASSOCIES - 26/28, Rue Gambetta 80300 ALBERT
Mise à prix avec faculté de baisse : 45 000 euros
Le cahier des conditions de vente est consultable à l'office notarial.
- - - - - - - - - - - - - - - - - - - - - -
Annonce de l'étude SELAS Laurent GILQUIN et Associés - Notaires à Albert - N° SIRET : 3040
- - - - - - - - - - - - - - - - - - - - - -
Immobilier.notaires® : Evaluer, acheter & vendre avec les notaires partout en France. 12 000 notaires, experts et négociateurs vous accompagnent dans vos projets immobiliers en toute confiance.
Référence : 251204VAE15CARNOY
Précision localisation : CARNOY-MAMETZ (80300)
* Prix net, hors frais notarié, d'enregistrement et de publicité foncière.
Contactez
ADNOV
N° de téléphone
Nous suivre
Nous contacter
Logement à consommation énergétique excessive