Lautrec (81440)
Lautrec (81440)
205 000
€ *
- Référence : 86371995A
- Dernière mise à jour : 05/12/2025
Pour la nouvelle notation (DPE à partir de juillet 2021), c'est la plus mauvaise des deux performances (énergie, climat) qui est retenue.
Informations sur les risques (ERP)
Les informations sur les risques auxquels ce bien est exposé sont disponibles sur le site Géorisques : https://www.georisques.gouv.fr
Élégante maison individuelle construite en 2006, d'environ 127 m² habitables, offrant volume, luminosité et confort, sur un terrain clos de 620 m² avec une vue exceptionnelle sur les Pyrénées.
Un agencement idéal pour concilier vie de famille et/ou projets personnels
Le rez-de-chaussée propose :
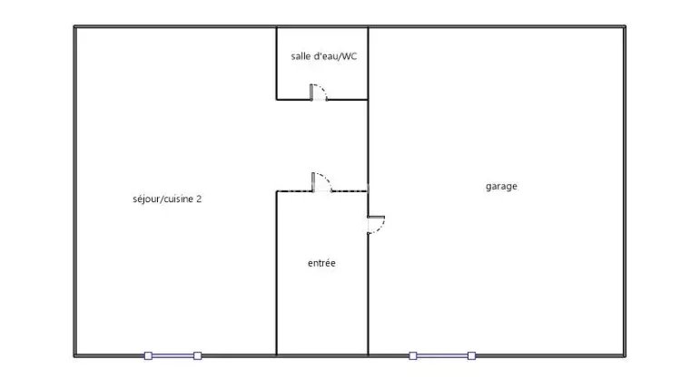
Une entrée accueillante avec placard de rangement,
Un appartement indépendant d'environ 33 m² comprenant une cuisine d'été, une salle d'eau avec WC - parfait pour recevoir, télétravailler ou exercer une activité libérale ( travaux finition à prévoir )
Un grand garage d'environ 49 m², offrant un bel espace de stockage ou d'atelier.
.
À l'étage, un espace de vie chaleureux et lumineux :
.
L'étage principal séduit par une pièce de vie traversante de 42 m² environ, baignée de lumière, avec salon agrémenté d'un poêle à granulés et cuisine équipée ouverte sur la terrasse.
La partie nuit se compose de trois chambres confortables et d'une spacieuse salle de bains avec douche et baignoire d'angle.
.
Confort et prestations:
- Climatisation réversible,
- Poêle à granulés performant,
- Menuiseries double vitrage,
- Volets PVC (entretien facile),
- Tout-à-l'égout.
.
Extérieurs et environnement
Une vaste terrasse d'environ 80 m² offre un panorama imprenable sur la Montagne Noire et les Pyrénées, idéale pour les repas d'été et les couchers de soleil.
Le jardin en deux terrasses apporte charme et intimité.
Un carport et deux places privatives complètent l'ensemble.
Un cadre de vie authentique et pratique :
Située à quelques pas du centre du village de Lautrec, classé parmi Les Plus Beaux Villages de France, vous profiterez de toutes les commodités à pied : boulangerie, pharmacie, écoles, base de loisirs, commerces de proximité.
Lautrec bénéficie d'une situation privilégiée :
? 15 min de Castres,
? 20 min de l'A69 (Castres-Toulouse),
? 25 min de Puylaurens,
? 30 min d'Albi.
i Informations sur les risques disponibles sur www.georisques.gouv.fr
.
? les photos avec l'inscription PROJET IA sont des images générées par IA comme étant des idées de décoration ; elles ne sont donc pas contractuelles.
Plus d'information :
- Climatisation
Honoraires à la charge du Vendeur
Bien En copropriété : NON
Un agencement idéal pour concilier vie de famille et/ou projets personnels
Le rez-de-chaussée propose :
Une entrée accueillante avec placard de rangement,
Un appartement indépendant d'environ 33 m² comprenant une cuisine d'été, une salle d'eau avec WC - parfait pour recevoir, télétravailler ou exercer une activité libérale ( travaux finition à prévoir )
Un grand garage d'environ 49 m², offrant un bel espace de stockage ou d'atelier.
.
À l'étage, un espace de vie chaleureux et lumineux :
.
L'étage principal séduit par une pièce de vie traversante de 42 m² environ, baignée de lumière, avec salon agrémenté d'un poêle à granulés et cuisine équipée ouverte sur la terrasse.
La partie nuit se compose de trois chambres confortables et d'une spacieuse salle de bains avec douche et baignoire d'angle.
.
Confort et prestations:
- Climatisation réversible,
- Poêle à granulés performant,
- Menuiseries double vitrage,
- Volets PVC (entretien facile),
- Tout-à-l'égout.
.
Extérieurs et environnement
Une vaste terrasse d'environ 80 m² offre un panorama imprenable sur la Montagne Noire et les Pyrénées, idéale pour les repas d'été et les couchers de soleil.
Le jardin en deux terrasses apporte charme et intimité.
Un carport et deux places privatives complètent l'ensemble.
Un cadre de vie authentique et pratique :
Située à quelques pas du centre du village de Lautrec, classé parmi Les Plus Beaux Villages de France, vous profiterez de toutes les commodités à pied : boulangerie, pharmacie, écoles, base de loisirs, commerces de proximité.
Lautrec bénéficie d'une situation privilégiée :
? 15 min de Castres,
? 20 min de l'A69 (Castres-Toulouse),
? 25 min de Puylaurens,
? 30 min d'Albi.
i Informations sur les risques disponibles sur www.georisques.gouv.fr
.
? les photos avec l'inscription PROJET IA sont des images générées par IA comme étant des idées de décoration ; elles ne sont donc pas contractuelles.
Plus d'information :
- Climatisation
Honoraires à la charge du Vendeur
Bien En copropriété : NON
* Prix net, hors frais notarié, d'enregistrement et de publicité foncière.
Contactez
ARTHURIMMO.COM CASTRES
N° de téléphone
Nous contacter
Autre contact (à Castres )
ArthurImmo.com Castres
15 Boulevard Marechal Foch
81100 Castres
Tél.
Site web
Visite virtuelle