Collonges (01550)
Collonges (01550) Exclusivité
530 000
€ *
- Référence : 86460714
- Dernière mise à jour : 04/12/2025
Pour la nouvelle notation (DPE à partir de juillet 2021), c'est la plus mauvaise des deux performances (énergie, climat) qui est retenue.
Informations sur les risques (ERP)
Les informations sur les risques auxquels ce bien est exposé sont disponibles sur le site Géorisques : https://www.georisques.gouv.fr
Nouveauté en exclusivité à saisir rapidement !
Dans la commune de Collonges (01550), à 10 minutes de la frontière suisse par la douane de Pougny-Chancy, et à proximité à pied de départs de randonnée, je vous présente cette spacieuse maison de 465,14 m2 dont 165,62 m2 habitables.
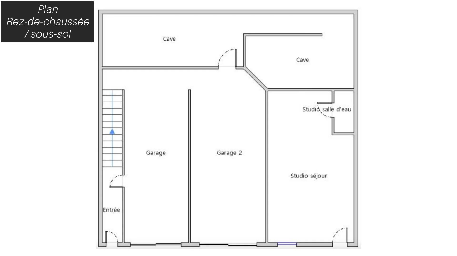
Elle se compose de 3 chambres, un studio indépendant, une véranda, 2 garages, une cave, 2 jardins, une terrasse et des combles aménageables.
Construite sur un terrain de 567 m2, cette maison ancienne est bâtie sur sous-sol, a des murs très épais, de belles hauteurs sous plafond, des finitions de qualité, du double vitrage et des volets électriques.
Vous apprécierez son grand séjour-double s'ouvrant sur une terrasse avec vue sur les montagnes et Genève, ainsi que la tranquillité de son environnement.
Pour cette annonce, il est conseillé de me contacter sans délai.
Le gros œuvre de cette maison est en excellent état, mais vous pourriez être tentés par des travaux de modernisation :
-Rénovation de l'électricité ;
-Modernisation des pièces d'eau ;
-Peintures ;
-Rénovation complète du studio du rez-de-chaussée : Chiffrée à 6.820 euros TTC.
Devis réalisés pour remonter la classe énergétique en D :
-Installation d'une pompe à chaleur : 20.554 euros TTC
-Pose de 100 mm d'isolation sur le plancher des combles : 1.794,41 euros TTC
Agencement au rez-de-chaussée et sous-sol :
-2 garages de 22,80 m2 et 19,26 m2, et 52,31 m2 de caves ;
-Un studio avec kitchenette et salle d'eau + WC ;
-Une cour parking privative pour garer 4 voitures et un jardin clos d'environ 200 m2.
À l'étage du rez-de-jardin :
-Un séjour double de 40,37 m2 avec cheminée, et ouvert sur une terrasse de 16,70 m2 ;
-Cuisine dînatoire attenante de 20,21 m2, ouverte sur la terrasse également ;
-3 chambres avec placards : 11,43 m2, 10,99 m2 et 15,65 m2 ;
-Une grande salle d'eau avec fenêtre de 7,59 m2, et un WC séparé ;
-Couloir, et véranda de 13 m2 donnant sur un jardin d'environ 100 m2 ;
-Un cellier avec un escalier menant vers d'immenses combles aménageables de 155 m2 avec une belle hauteur faîtière de 3,22 m.
Découvrez un film immobilier dans cette annonce et sur mes réseaux sociaux : Facebook, Instagram, YouTube : @agencemaitre
Contactez-moi dès que possible et avec un plan de financement abouti pour avoir l'opportunité de visiter et vous positionner de façon prioritaire.
Environnement :
-Départs de randonnées en forêt à 700 mètres ;
-À 2 minutes en voiture : Crèche, école, épicerie, boulangerie, restaurants, maison médicale ;
-Frontière suisse / douane de Pougny-Chancy : 10 minutes en voiture ;
-Valserhône en 25 minutes : Lycée, piscine et gare TGV (Genève, Lyon, Valence, Paris, Saint-Gervais-les-Bains-Le-Fayet, Grenoble, Annemasse, Évian-les-Bains.)
Taxe foncière : 1.165euros / année
Chauffage : Cheminée, sèche-serviettes électrique.
Une chaudière au mazout en bon état, connectée à un réseau hydraulique fonctionnel de radiateurs, cependant la cuve mazout a été déconnectée et nettoyée.
Un projet d'achat ou de vente ? Besoin d'une estimation ? Je suis votre interlocuteur privilégié sur les deux Savoie (74 et 73), l'Ain (01), et le Canton de Genève.
Chers confrères, mon agence est ouverte à la collaboration
- sous réserve de la présentation d'un client qualifié et qui ne m'a pas contacté au préalable
- alors n'hésitez pas.
Les honoraires de l'agence sont à la charge du vendeur.
Les informations sur les risques auxquels ce bien est exposé sont disponibles sur le site Géorisques à l'adresse suivante : georisques.gouv.fr
Carte T numéro CPI 000 008 délivrée par la CCI de Haute-Savoie
Numéro de mandat : 65
Honoraires à la charge du Vendeur
Bien En copropriété : NON
Dans la commune de Collonges (01550), à 10 minutes de la frontière suisse par la douane de Pougny-Chancy, et à proximité à pied de départs de randonnée, je vous présente cette spacieuse maison de 465,14 m2 dont 165,62 m2 habitables.
Elle se compose de 3 chambres, un studio indépendant, une véranda, 2 garages, une cave, 2 jardins, une terrasse et des combles aménageables.
Construite sur un terrain de 567 m2, cette maison ancienne est bâtie sur sous-sol, a des murs très épais, de belles hauteurs sous plafond, des finitions de qualité, du double vitrage et des volets électriques.
Vous apprécierez son grand séjour-double s'ouvrant sur une terrasse avec vue sur les montagnes et Genève, ainsi que la tranquillité de son environnement.
Pour cette annonce, il est conseillé de me contacter sans délai.
Le gros œuvre de cette maison est en excellent état, mais vous pourriez être tentés par des travaux de modernisation :
-Rénovation de l'électricité ;
-Modernisation des pièces d'eau ;
-Peintures ;
-Rénovation complète du studio du rez-de-chaussée : Chiffrée à 6.820 euros TTC.
Devis réalisés pour remonter la classe énergétique en D :
-Installation d'une pompe à chaleur : 20.554 euros TTC
-Pose de 100 mm d'isolation sur le plancher des combles : 1.794,41 euros TTC
Agencement au rez-de-chaussée et sous-sol :
-2 garages de 22,80 m2 et 19,26 m2, et 52,31 m2 de caves ;
-Un studio avec kitchenette et salle d'eau + WC ;
-Une cour parking privative pour garer 4 voitures et un jardin clos d'environ 200 m2.
À l'étage du rez-de-jardin :
-Un séjour double de 40,37 m2 avec cheminée, et ouvert sur une terrasse de 16,70 m2 ;
-Cuisine dînatoire attenante de 20,21 m2, ouverte sur la terrasse également ;
-3 chambres avec placards : 11,43 m2, 10,99 m2 et 15,65 m2 ;
-Une grande salle d'eau avec fenêtre de 7,59 m2, et un WC séparé ;
-Couloir, et véranda de 13 m2 donnant sur un jardin d'environ 100 m2 ;
-Un cellier avec un escalier menant vers d'immenses combles aménageables de 155 m2 avec une belle hauteur faîtière de 3,22 m.
Découvrez un film immobilier dans cette annonce et sur mes réseaux sociaux : Facebook, Instagram, YouTube : @agencemaitre
Contactez-moi dès que possible et avec un plan de financement abouti pour avoir l'opportunité de visiter et vous positionner de façon prioritaire.
Environnement :
-Départs de randonnées en forêt à 700 mètres ;
-À 2 minutes en voiture : Crèche, école, épicerie, boulangerie, restaurants, maison médicale ;
-Frontière suisse / douane de Pougny-Chancy : 10 minutes en voiture ;
-Valserhône en 25 minutes : Lycée, piscine et gare TGV (Genève, Lyon, Valence, Paris, Saint-Gervais-les-Bains-Le-Fayet, Grenoble, Annemasse, Évian-les-Bains.)
Taxe foncière : 1.165euros / année
Chauffage : Cheminée, sèche-serviettes électrique.
Une chaudière au mazout en bon état, connectée à un réseau hydraulique fonctionnel de radiateurs, cependant la cuve mazout a été déconnectée et nettoyée.
Un projet d'achat ou de vente ? Besoin d'une estimation ? Je suis votre interlocuteur privilégié sur les deux Savoie (74 et 73), l'Ain (01), et le Canton de Genève.
Chers confrères, mon agence est ouverte à la collaboration
- sous réserve de la présentation d'un client qualifié et qui ne m'a pas contacté au préalable
- alors n'hésitez pas.
Les honoraires de l'agence sont à la charge du vendeur.
Les informations sur les risques auxquels ce bien est exposé sont disponibles sur le site Géorisques à l'adresse suivante : georisques.gouv.fr
Carte T numéro CPI 000 008 délivrée par la CCI de Haute-Savoie
Numéro de mandat : 65
Honoraires à la charge du Vendeur
Bien En copropriété : NON
* Prix net, hors frais notarié, d'enregistrement et de publicité foncière.
Contactez
AGENCE MAîTRE
N° de téléphone
Nous suivre
Nous contacter
Visite virtuelle
Logement à consommation énergétique excessive