Sangatte (62231)
Maison - 6 pièce(s) - 155 m² Exclusivité
312 500
€ *
- Référence : 202_513_18655
- Dernière mise à jour : 22/01/2026
Pour la nouvelle notation (DPE à partir de juillet 2021), c'est la plus mauvaise des deux performances (énergie, climat) qui est retenue.
Informations sur les risques (ERP)
Les informations sur les risques auxquels ce bien est exposé sont disponibles sur le site Géorisques : https://www.georisques.gouv.fr
BLERIOT-PLAGE : Pavillon 140 m² (toiture de 2021) / 3 à 4 chambres / Jardin plein sud / Garage
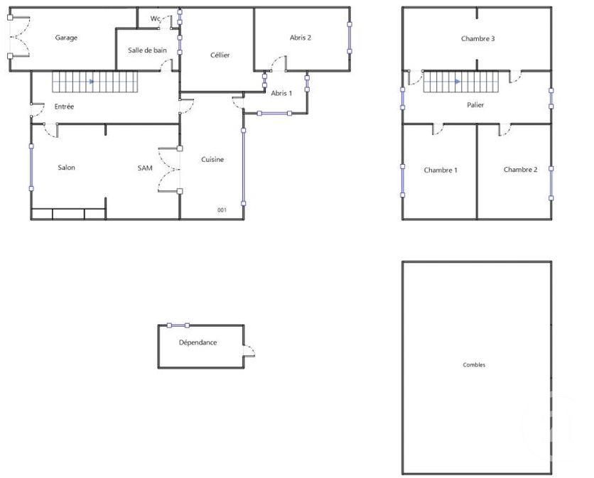
Century21 Immopale vous invite à découvrir ce beau pavillon familial de 140m2 habitables dans le secteur prisé de Blériot Plage.
Vous découvrirez au rez de chaussée une entrée, un agréable et lumineux salon-séjour prolongé par une grande cuisine aménagée et équipée avec son cellier, offrant une jolie vue sur le jardin, ainsi qu' une salle de bains.
A l'étage, un palier mène à trois grandes chambres, avec la possibilité d'en aménager une quatrième. Au dernier étage, un grenier offre un vaste espace de rangement.
A l'extérieur, vous apprécierez le grand jardin de 200m2, agrémenté d' arbres fruitiers et idéalement exposé plein Sud !
Une dépendance, un garage ainsi que deux places de stationnement privatives complètent les prestations de cette jolie maison qui vous séduira par sa luminosité, ses beaux volumes et son potentiel ! Le tout sur une parcelle de 363m2 entièrement clôturée.
Situé dans un environnement calme et privilégié, à quelques pas de la plage et des commerces, une visite s'impose sans tarder !
Cette maison au fort potentiel, dispose d'une toiture de 2021 sous garantie décennale, d'un jardin de 200 m² plein sud, d'une cuisine aménagée et équipée Cuisinella de 2020, d'une chaudière de 2018 ainsi que de menuiseries en double vitrage datant de 2018.
Pour toute information, nous vous invitons à nous contacter ou par e-mail à . Prix : 312500.0 euros, Honoraires charge vendeur.
Surface Loi Carrez : 140
Honoraires à la charge de l'Acquéreur : non
Century21 Immopale vous invite à découvrir ce beau pavillon familial de 140m2 habitables dans le secteur prisé de Blériot Plage.
Vous découvrirez au rez de chaussée une entrée, un agréable et lumineux salon-séjour prolongé par une grande cuisine aménagée et équipée avec son cellier, offrant une jolie vue sur le jardin, ainsi qu' une salle de bains.
A l'étage, un palier mène à trois grandes chambres, avec la possibilité d'en aménager une quatrième. Au dernier étage, un grenier offre un vaste espace de rangement.
A l'extérieur, vous apprécierez le grand jardin de 200m2, agrémenté d' arbres fruitiers et idéalement exposé plein Sud !
Une dépendance, un garage ainsi que deux places de stationnement privatives complètent les prestations de cette jolie maison qui vous séduira par sa luminosité, ses beaux volumes et son potentiel ! Le tout sur une parcelle de 363m2 entièrement clôturée.
Situé dans un environnement calme et privilégié, à quelques pas de la plage et des commerces, une visite s'impose sans tarder !
Cette maison au fort potentiel, dispose d'une toiture de 2021 sous garantie décennale, d'un jardin de 200 m² plein sud, d'une cuisine aménagée et équipée Cuisinella de 2020, d'une chaudière de 2018 ainsi que de menuiseries en double vitrage datant de 2018.
Pour toute information, nous vous invitons à nous contacter ou par e-mail à . Prix : 312500.0 euros, Honoraires charge vendeur.
Surface Loi Carrez : 140
Honoraires à la charge de l'Acquéreur : non
* Prix net, hors frais notarié, d'enregistrement et de publicité foncière.
Contactez
CENTURY 21 IMMOPALE
N° de téléphone
Fax.
Nous contacter