Vente Maison 5 pièces 465 m²

Collonges (01550) Exclusivité

430 000 € *
  •   Référence : 86696074C
  •   Dernière mise à jour : 28/02/2026

F
Classe Énergie
381 kWh/m² an
info
F
Indice d'émissions de gaz à effet de serre
90 kgéq/m².an
info
Pour la nouvelle notation (DPE à partir de juillet 2021), c'est la plus mauvaise des deux performances (énergie, climat) qui est retenue.
Informations sur les risques (ERP)
Les informations sur les risques auxquels ce bien est exposé sont disponibles sur le site Géorisques : https://www.georisques.gouv.fr

Collonges – Maison T5 avec terrasse et garages

Une opportunité exclusive et peu commune à découvrir sans tarder.
Située à Collonges (01550), à seulement dix minutes de la frontière suisse par la douane de Pougny-Chancy et à deux pas de nombreux chemins de randonnée, je vous présente une propriété de caractère aux volumes remarquables.
Cette ferme mitoyenne d'un côté développe une surface totale de 465,14 m2, dont 165,62 m2 habitables, et comprend trois chambres, un studio indépendant, une véranda, deux garages, une cave, un jardin, une terrasse ainsi que de généreux combles pouvant être aménagés.
Implantée sur un terrain d'environ 560 m2 et bénéficiant d'un sous-sol complet, cette demeure ancienne se distingue par ses belles hauteurs sous plafond et son double séjour prolongé par une terrasse avec vue dégagée sur les montagnes et Genève.
La quiétude de l'environnement confère à l'ensemble une atmosphère aussi rare qu'attrayante.
Pour cette propriété, il est vivement conseillé de prendre contact rapidement afin de ne pas laisser passer cette occasion.

Le gros œuvre est en très bon état, toutefois certains travaux de remise au goût du jour pourront être envisagés :


- Mise aux normes de l'installation électrique ;

- Modernisation des pièces d'eau ;

- Travaux de peinture ;

- Rénovation du studio situé au rez-de-chaussée : estimée à 6 820 euros TTC ;

Deux devis ont été établis afin d'atteindre une future classe énergétique D :


- Installation d'une pompe à chaleur : 20 554 euros TTC ;

- Pose de 100 mm d'isolant sur le plancher des combles : 1 794,41 euros TTC ;

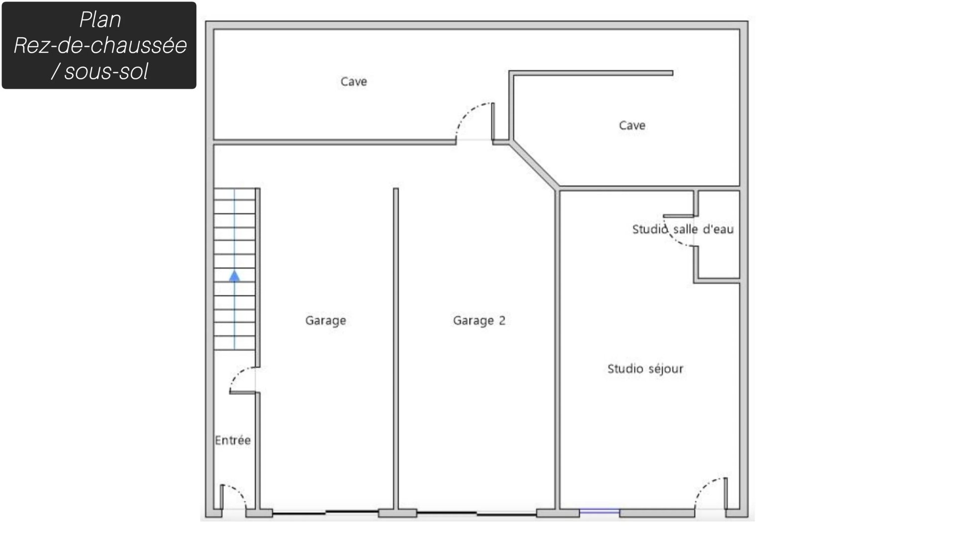
Agencement au rez-de-chaussée et au sous-sol :


- Deux garages de 22,80 m2 et 19,26 m2, ainsi que 52,31 m2 de caves ;

- Un studio comprenant une kitchenette et une salle d'eau avec WC ;

- Une cour privative permettant le stationnement de quatre véhicules et un jardin clos d'environ 200 m2 ;
À l'étage donnant sur le second jardin :

- Un séjour double de 40,37 m2 avec cheminée, prolongé par une terrasse de 16,70 m2 ;

- Une cuisine dînatoire attenante de 20,21 m2, bénéficiant également d'un accès direct à la terrasse ;

- Trois chambres avec placards de 11,43 m2, 10,99 m2 et 15,65 m2 ;

- Une grande salle d'eau de 7,59 m2 avec fenêtre et un WC indépendant ;

- Un couloir et une véranda de 13 m2 ouvrant sur un jardin d'environ 100 m2 ;

- Un cellier menant à de superbes combles aménageables de 155 m2, offrant une hauteur sous faîtière de 3,22 m ;

Une vidéo de présentation accompagne cette annonce et est également disponible sur mes réseaux sociaux : Facebook, Instagram, YouTube : @agencemaitre.

Je vous invite à me contacter dans les meilleurs délais, avec un plan de financement finalisé, afin de bénéficier d'une visite prioritaire et de vous positionner.

Environnement :


- Départs de randonnées en forêt à 700 mètres ;

- À deux minutes en voiture : crèche, école, épicerie, boulangerie, restaurants, maison médicale ;

- Frontière suisse, douane de Pougny-Chancy à dix minutes en voiture ;

- Valserhône à vingt-cinq minutes : lycée, piscine et gare TGV avec liaisons vers Genève, Lyon, Valence, Paris, Saint-Gervais-les-Bains–Le Fayet, Grenoble, Annemasse et Évian-les-Bains ;

Taxe foncière : 1 165 euros par an.

Chauffage : cheminée et sèche-serviettes électriques.
Présence d'une chaudière au mazout en bon état, raccordée à un réseau hydraulique de radiateurs fonctionnel ; la cuve à mazout a toutefois été déconnectée et nettoyée.

Vous avez un projet d'achat ou de vente ? Besoin d'une estimation ? Je suis votre interlocuteur privilégié sur la Haute-Savoie et la Savoie (74 et 73), l'Ain (01) ainsi que le Canton de Genève.

Chers confrères, mon agence reste ouverte à la collaboration, sous réserve de la présentation d'un acquéreur qualifié n'ayant pas pris contact avec moi auparavant ; n'hésitez pas à me solliciter.

Les honoraires de l'agence sont à la charge du vendeur.
Les informations relatives aux risques auxquels ce bien est exposé sont disponibles sur le site Géorisques : [georisques.gouv.fr]( )

Numéro de mandat : 65

Honoraires à la charge du Vendeur
Bien En copropriété : NON

* Prix net, hors frais notarié, d'enregistrement et de publicité foncière.

Contactez
AGENCE MAîTRE

Adresse postale

39 Route de Fleuretan
74350 Copponex
Itinéraire

N° de téléphone

Nous suivre

Siret : 97835511300033

Nous contacter

Contactez-nous pour l'annonce "Collonges – Maison T5 avec terrasse et garages", Réf. : 86696074C

* Tous les champs sont obligatoires ** En cas de transmission de coordonnées téléphoniques vous reconnaissez accepter expressément d'être rappelé par l'annonceur