Vente Maison 6 pièces 124 m²

Bailleau-Armenonville (28320) Exclusivité

199 000 € *
  •   Référence : VM2603-BIENSEREIN28
  •   Dernière mise à jour : 05/04/2026

C
Classe Énergie
173 kWh/m² an
info
B
Indice d'émissions de gaz à effet de serre
6 kgéq/m².an
info
Pour la nouvelle notation (DPE à partir de juillet 2021), c'est la plus mauvaise des deux performances (énergie, climat) qui est retenue.
Informations sur les risques (ERP)
Les informations sur les risques auxquels ce bien est exposé sont disponibles sur le site Géorisques : https://www.georisques.gouv.fr

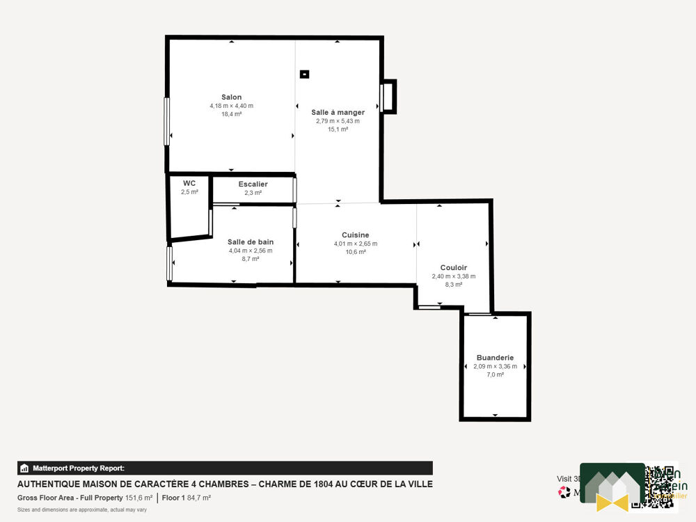
AUTHENTIQUE MAISON DE CARACTÈRE 4 CHAMBRES – CHARME DE 1804 A

AUTHENTIQUE MAISON DE CARACTÈRE 4 CHAMBRES – CHARME DE 1804 AU COEUR DE LA VILLE

Bienvenue dans cette maison proposée en exclusivité, cette maison de caractère de 1804, véritable havre de paix, dans un excellent état intérieur et bénéficie de notre pack visibilité, incluant une visite virtuelle immersive et des photos haute qualité pour une découverte optimale.
.

DÉCOUVREZ L'INTÉRIEUR

-Un séjour
-Une salle à manger.
-Une cuisine américaine aménagée et équipée,
-Deux chambres principales confortables

- Deux chambres supplémentaires de plus petite taille, parfaites pour des enfants, un bureau ou un espace télétravail
-Une salle de bains et une salle d'eau
-Deux WC
-Une cave
-Une buanderie
-Un grenier être une aménagé en chambre supplémentaire ou bureau

CÔTÉ CONFORT & ÉQUIPEMENTS

-Maison en excellent état intérieur
-Ouvertures PVC double vitrage.
-Exposition sud-ouest, garantissant une belle luminosité
-Charme de l'ancien soigneusement préservé

L'EMPLACEMENT

Un emplacement pratique, proche de toutes les commodités du quotidien :
-À 5 minutes à pied :
École maternelle
Restaurants
Arrêts de bus
-À 10 minutes à pied :
Trois commerces d'alimentation générale
-À 15 minutes à pied :
Collège
Médecins généralistes
-À 5 minutes en pied :
Parc et jardin pour vos moments de détente
-À 10 minute de la gare de Epernon

Une maison pleine d'âme, idéale pour une famille, un couple avec télétravail ou un projet de vie évolutif, alliant cachet historique et fonctionnalité moderne.

Ne manquez pas cette opportunité - contactez votre agent au Noeud Pap' pour plus d'informations ou organiser une vis

Honoraires à la charge du vendeur.
Classe énergie C, Classe climat B Montant moyen estimé des dépenses annuelles d'énergie pour un usage standard, établi à partir des prix de l'énergie de l'année 2021 : entre 1606.00 et 2175.00 €.
Les informations sur les risques auxquels ce bien est exposé sont disponibles sur le site Géorisques : georisques.gouv.fr.

Votre conseiller Bien Serein immobilier : Mathis VILCOQ
Agent commercial (Entreprise individuelle)
RSAC 951127430
TTC
Numéro de mandat : 840

Honoraires à la charge du Vendeur
Bien En copropriété : NON

* Prix net, hors frais notarié, d'enregistrement et de publicité foncière.

Contactez
BIEN SEREIN

Nos horaires

  • Lundi : 9h - 18h

Voir +

Adresse postale

41 Avenue DE LA PAIX
28300 Lèves
Itinéraire

Site internet

bienserein.fr

N° de téléphone

Nous suivre

Siret : 91308223600013

Nous contacter

Contactez-nous pour l'annonce "AUTHENTIQUE MAISON DE CARACTÈRE 4 CHAMBRES – CHARME DE 1804 A", Réf. : VM2603-BIENSEREIN28

* Tous les champs sont obligatoires ** En cas de transmission de coordonnées téléphoniques vous reconnaissez accepter expressément d'être rappelé par l'annonceur