La longueville (59570)
La longueville (59570)
24 035
€ *
- Référence : AT600-9252-2053
- Dernière mise à jour : 19/12/2025
Pour la nouvelle notation (DPE à partir de juillet 2021), c'est la plus mauvaise des deux performances (énergie, climat) qui est retenue.
TIGRE IMMOBILIER vous présente une opportunité à saisir dans le Bavaisis !
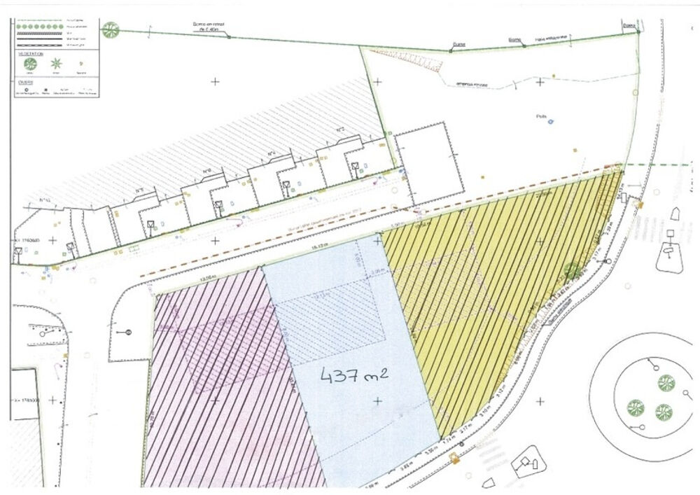
Située dans un environnement paisible et recherché, cette parcelle de 437 m2 dispose d'une façade généreuse de 15,13 m, idéale pour concevoir une maison adaptée à vos envies.
Non viabilisé mais facilement raccordable, ce terrain offre de belles perspectives pour concrétiser votre projet de construction dans un cadre agréable.
Pour plus d'informations, contactez dès aujourd'hui votre conseillère en immobilier, Stéphanie LOCOCCIOLO,
Les informations sur les risques auxquels ce bien est exposé sont disponibles sur le site Géorisques : www.georisques.gouv.fr
TIGRE IMMOBILIER MAUBEUGE JEUMONT www.tigre-immobilier.fr - ou
Honoraires à charge de l'Acquéreur
Honoraires : 2185 euros
Pourcentage des Honoraires à la charge de l'Acquéreur : 10.00 %
Prix net vendeur : 21850 euros
Nom du négociateur : LOCOCCIOLO Stephanie
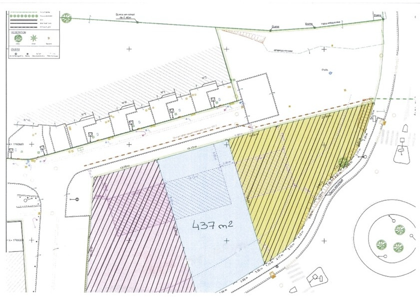
Située dans un environnement paisible et recherché, cette parcelle de 437 m2 dispose d'une façade généreuse de 15,13 m, idéale pour concevoir une maison adaptée à vos envies.
Non viabilisé mais facilement raccordable, ce terrain offre de belles perspectives pour concrétiser votre projet de construction dans un cadre agréable.
Pour plus d'informations, contactez dès aujourd'hui votre conseillère en immobilier, Stéphanie LOCOCCIOLO,
Les informations sur les risques auxquels ce bien est exposé sont disponibles sur le site Géorisques : www.georisques.gouv.fr
TIGRE IMMOBILIER MAUBEUGE JEUMONT www.tigre-immobilier.fr - ou
Honoraires à charge de l'Acquéreur
Honoraires : 2185 euros
Pourcentage des Honoraires à la charge de l'Acquéreur : 10.00 %
Prix net vendeur : 21850 euros
Nom du négociateur : LOCOCCIOLO Stephanie
* Prix net, hors frais notarié, d'enregistrement et de publicité foncière.
Contactez
TIGRE IMMOBILIER MAUBEUGE
N° de téléphone
Fax.
Nous suivre
Nous contacter