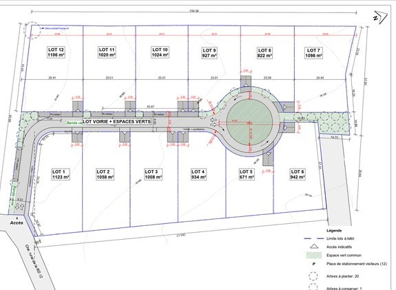
Vente Terrain 1024 m²

Les issards (09100)

66 000 € *
  •   Référence : TERRAIN10-100
  •   Dernière mise à jour : 07/04/2026

NC
Classe Énergie
Non communiqué
info
NC
Indice d'émissions de gaz à effet de serre
Non communiqué
info
Pour la nouvelle notation (DPE à partir de juillet 2021), c'est la plus mauvaise des deux performances (énergie, climat) qui est retenue.

TERRAIN VIABILISE 1024m2

Sur le bas de la commune - LES ISSARDS - Ce terrain viabilisé -EAU-TEL-ELEC- N'attend que vous pour réaliser votre projet.
La surface de plancher maximale autorisée est de 300m2.
Pour toutes informations n'hésitez pas à nous contacter.



Honoraires à charge du Vendeur

Nom du négociateur : LOZE Pascal

* Prix net, hors frais notarié, d'enregistrement et de publicité foncière.

Contactez
MY LALIE IMMOBILIER

Adresse postale

22 bis avenue des Pyrénées
31830 Plaisance-du-Touch
Itinéraire

Site internet

mylalie.fr

N° de téléphone

Siret : 93303790500017

Nous contacter

Contactez-nous pour l'annonce "TERRAIN VIABILISE 1024m2", Réf. : TERRAIN10-100

* Tous les champs sont obligatoires ** En cas de transmission de coordonnées téléphoniques vous reconnaissez accepter expressément d'être rappelé par l'annonceur