Eymeux (26730)

Eymeux (26730)

84 000 € *
  •   Référence : 11330
  •   Dernière mise à jour : 05/12/2025

NC
Classe Énergie
Non communiqué
info
NC
Indice d'émissions de gaz à effet de serre
Non communiqué
info
Pour la nouvelle notation (DPE à partir de juillet 2021), c'est la plus mauvaise des deux performances (énergie, climat) qui est retenue.

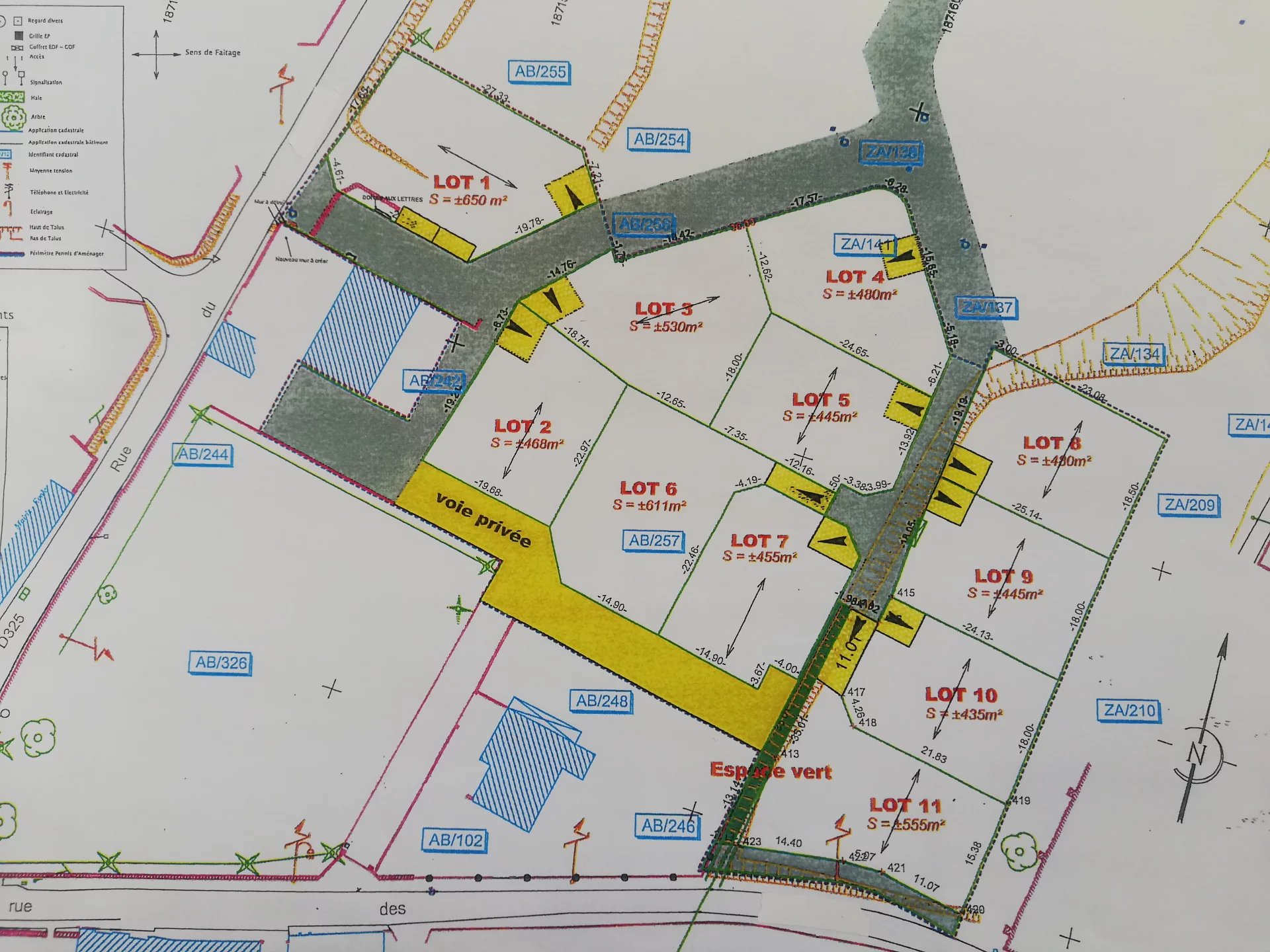
Idéalement situés entre Saint Marcellin et Romans, au coeur du village d'Eymeux, découvrez les terrains entièrement viabilisés que nous proposons dans le nouveau lotissement 'Les Chênes 2'
11 lots d'une superficie comprise entre 435m² et 650m²...PRIX DE 84 000 EUROS A 93 000 EUROS....
libre constructeur...ATTENTION TRES PEU DE LOTS ENCORE DISPONIBLES
Possibilité de réaliser sur une des parcelles restante 2 logements (idéal investisseurs).
Commerces de proximités, école et transport scolaire pour collège et lycée.

Numéro de mandat : 11330

Honoraires à la charge du Vendeur
Bien En copropriété : NON

* Prix net, hors frais notarié, d'enregistrement et de publicité foncière.

Contactez
GROUPE IMMOTIONS

Adresse postale

24 Boulevard Riondel
38160 Saint-Marcellin
Itinéraire

N° de téléphone

Siret : 49068926200023

Nous contacter

Contactez-nous pour l'annonce "ENTRE SAINT MARCELLIN ET ROMANS", Réf. : 11330

* Tous les champs sont obligatoires ** En cas de transmission de coordonnées téléphoniques vous reconnaissez accepter expressément d'être rappelé par l'annonceur