Artemare (01510)
Artemare (01510) Sous Compromis
70 200
€ *
- Référence : VT0003422-13765
- Dernière mise à jour : 21/12/2025
Pour la nouvelle notation (DPE à partir de juillet 2021), c'est la plus mauvaise des deux performances (énergie, climat) qui est retenue.
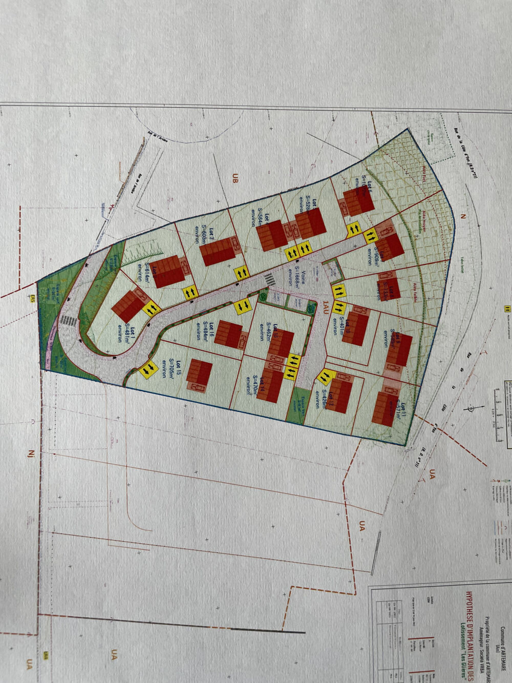
Terrain à vendre sur la commune de Artemare d'une surface d'environ 481 m2.
Un projet de construction ? vous avez trouvé la bonne annonce. LOT no1 Un lotissement de 16 Lots, libre constructeur. Nous pouvons également si vous le souhaitez vous accompagner avec un professionnel de la construction et une structure bancaire adaptée pour ne pas avoir les contraintes de chercher alors n'hésitez plus. Artemare petite ville d'environ 1300 habitants mais qui à tout d'une GRANDE avec toutes les commodités ( école primaire, collège, futur crèche, garderie, carrefour, pharmacie, médecin, dentiste, kiné, pompier, boulangerie, boucherie, fleuriste, banque, tabac, notaire, miltiple associations, garage, restaurants)
Amoureux de la nature entre Lacs et Montagnes, rando, vtt, ski.
Proche de toutes les commodités, écoles primaire, collége, centre ville, à 15 minutes de Belley, 10 minutes de culoz pour la Gare, GENEVE 45 minutes, LYON 1H00, ANNECY 50 minutes, AIX-LES-BAINS 40 minutes.
Pour tout complément d'information merci de contacter votre conseillier en immobilier Mr Raphaël LACHIZE , inscrit au RSAC Bourg-En-Bresse no 832.499.644
Honoraires à charge du Vendeur
Nom du négociateur : GIRET Ludovic
Un projet de construction ? vous avez trouvé la bonne annonce. LOT no1 Un lotissement de 16 Lots, libre constructeur. Nous pouvons également si vous le souhaitez vous accompagner avec un professionnel de la construction et une structure bancaire adaptée pour ne pas avoir les contraintes de chercher alors n'hésitez plus. Artemare petite ville d'environ 1300 habitants mais qui à tout d'une GRANDE avec toutes les commodités ( école primaire, collège, futur crèche, garderie, carrefour, pharmacie, médecin, dentiste, kiné, pompier, boulangerie, boucherie, fleuriste, banque, tabac, notaire, miltiple associations, garage, restaurants)
Amoureux de la nature entre Lacs et Montagnes, rando, vtt, ski.
Proche de toutes les commodités, écoles primaire, collége, centre ville, à 15 minutes de Belley, 10 minutes de culoz pour la Gare, GENEVE 45 minutes, LYON 1H00, ANNECY 50 minutes, AIX-LES-BAINS 40 minutes.
Pour tout complément d'information merci de contacter votre conseillier en immobilier Mr Raphaël LACHIZE , inscrit au RSAC Bourg-En-Bresse no 832.499.644
Honoraires à charge du Vendeur
Nom du négociateur : GIRET Ludovic
* Prix net, hors frais notarié, d'enregistrement et de publicité foncière.
Contactez
EXCEPTIMMO
N° de téléphone
Nous contacter