Vente Terrain 392 m²

Talmont st hilaire (85440)

85 000 € *
  •   Référence : EK 210-283
  •   Dernière mise à jour : 03/04/2026

NC
Classe Énergie
Non communiqué
info
NC
Indice d'émissions de gaz à effet de serre
Non communiqué
info
Pour la nouvelle notation (DPE à partir de juillet 2021), c'est la plus mauvaise des deux performances (énergie, climat) qui est retenue.

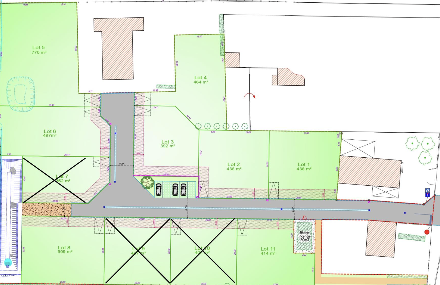
Terrain de 392 m2, viabilisé.

Dans un petit lotissement arboré de 11 lots, venez découvrir cette parcelle de 392 m2.
Son emprise au sol est de 40%, située en zone UBb. Libre de constructeur.
Possibilité d'avoir une construction de 130 000 € en lien avec Milcendeau . (maison 2 chambres)
Tous les réseaux seront disponibles en façade.
N'hésitez plus, appelez moi



Honoraires à charge de l'Acquéreur
Honoraires : 7000 euros
Pourcentage des Honoraires à la charge de l'Acquéreur : 0.90 %
Prix net vendeur : 780000 euros

Nom du négociateur : LAGRANGE Elodie

* Prix net, hors frais notarié, d'enregistrement et de publicité foncière.

Contactez
ENOKIM

Nos horaires

  • Lundi : 9h - 19h

Voir +

Adresse postale

79 Rue DE L'OCEAN
85520 Jard-sur-Mer
Itinéraire

Site internet

enokim.fr

N° de téléphone

Nous suivre

Siret : 88415106900017

Nous contacter

Contactez-nous pour l'annonce "Terrain de 392 m2, viabilisé.", Réf. : EK 210-283

* Tous les champs sont obligatoires ** En cas de transmission de coordonnées téléphoniques vous reconnaissez accepter expressément d'être rappelé par l'annonceur