Saint chamond (42400)

SAINT CHAMOND (42400)

229 000 € *
  •   Référence : 59033279_11106
  •   Dernière mise à jour : 29/12/2025

NC
Classe Énergie
Non communiqué
info
NC
Indice d'émissions de gaz à effet de serre
Non communiqué
info
Pour la nouvelle notation (DPE à partir de juillet 2021), c'est la plus mauvaise des deux performances (énergie, climat) qui est retenue.

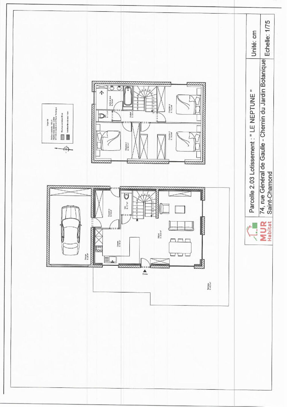
L'agence Immobilière Kahûte vous propose au coeur d'un lotissement de standing « le parc Neptune ", ce terrain constructible de 763m2 en zone UC et en CES non réglementé dans un environnement calme, verdoyant et recherché. RARE, entièrement plat, il est idéalement situé sur les hauteurs de St-Chamond à proximité immédiate du stade Pauze, du complexe sportif et du parc Labesse. Accessibilité : A 5mn des commerces et commodités, il est entouré d'un environnement résidentiel, à seulement 10mn à pied de l'école Ste Marie et à 4 mn en voiture de la gare de St Chamond. Depuis la gare de Saint Chamond, vous aurez accès à la gare de Chateaucreux en 10 min et à la gare de la Part Dieu en 38 min. Vous accèderez également au centre-ville de Saint Etienne en 20 minutes en voiture Exemple d'un projet de maison de 100m2 (plan ci-joint en photo) à 182000 euros soit maison + terrain à 411000 euros Une adresse rare et recherchée à découvrir. 3 autres lots sont également disponibles : 642m2, 557m2 et 1000m2 Les informations sur les risques auxquels ce bien est exposé sont disponibles sur le site Géorisques : www.georisques.gouv.fr Pour plus de renseignements : Jean Pierre Gerin

Surface terrain : 763



Honoraires à la charge de : Vendeur
Bien En copropriété : Non
Procédure sur le Syndicat des copropriétaires : NC

* Prix net, hors frais notarié, d'enregistrement et de publicité foncière.

Contactez
KAHUTE

Nos horaires

  • Lundi : 9h - 19h 12h - 14h sur rendez-vous uniquement

Voir +

Adresse postale

86 Avenue de Lanessan
69410 Champagne-au-Mont-d'Or
Itinéraire

Site internet

kahute.fr

N° de téléphone

Siret : 84076988900014

Nous contacter

Contactez-nous pour l'annonce "Sur les hauteurs de St Chamond au pied du Pilat Terrain plat constructible et viabilisé de 763m2 - libre constructeur", Réf. : 59033279_11106

* Tous les champs sont obligatoires ** En cas de transmission de coordonnées téléphoniques vous reconnaissez accepter expressément d'être rappelé par l'annonceur