Peypin (13124)
Peypin (13124)
269 000
€ *
- Référence : 86455221
- Dernière mise à jour : 01/12/2025
Pour la nouvelle notation (DPE à partir de juillet 2021), c'est la plus mauvaise des deux performances (énergie, climat) qui est retenue.
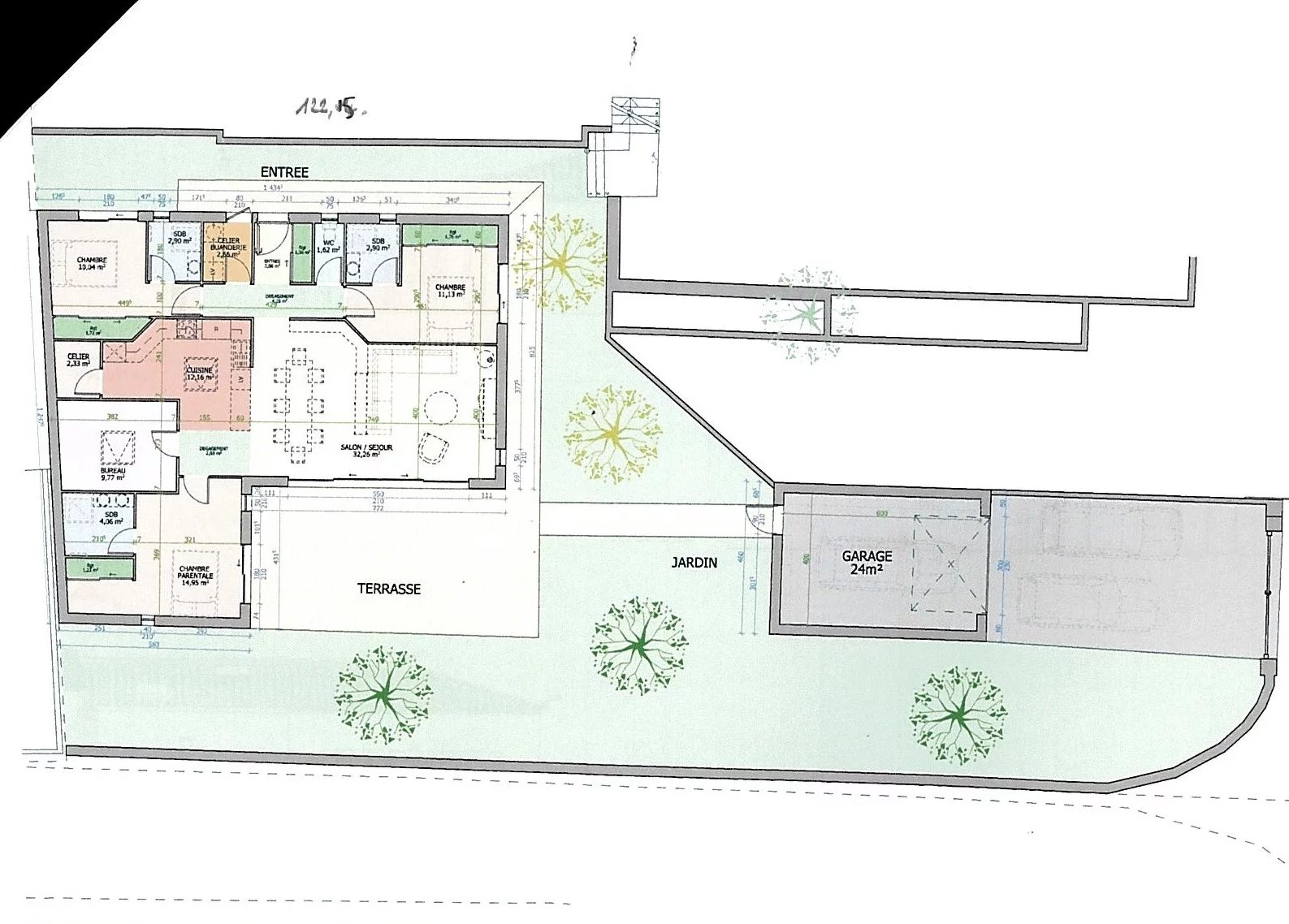
À Peypin, au calme, beau terrain de 500 m² vendu avec permis de construire accordé et purgé de tous recours pour une maison de plain-pied de 122 m² habitables + garage de 24 m².
La taxe de raccordement au tout-à-l'égout ainsi que l'installation du compteur d'eau sont réglées.
La maison prévue, très fonctionnelle, accueillera un beau séjour-cuisine de plus de 47 m², un cellier arrière-cuisine, un autre cellier buanderie, trois chambres, chacune avec placard et salle de bains + un bureau qui peut également servir de 4ème chambre.
Le quartier est calme, bien situé dans le village, et le terrain exposé plein sud est très ensoleillé.
RARE ! Ce bien vous est proposé par votre agence immobilière Arthurimmo.com Pourrières.
Numéro de mandat : 239
Honoraires à la charge du Vendeur
Bien En copropriété : NON
La taxe de raccordement au tout-à-l'égout ainsi que l'installation du compteur d'eau sont réglées.
La maison prévue, très fonctionnelle, accueillera un beau séjour-cuisine de plus de 47 m², un cellier arrière-cuisine, un autre cellier buanderie, trois chambres, chacune avec placard et salle de bains + un bureau qui peut également servir de 4ème chambre.
Le quartier est calme, bien situé dans le village, et le terrain exposé plein sud est très ensoleillé.
RARE ! Ce bien vous est proposé par votre agence immobilière Arthurimmo.com Pourrières.
Numéro de mandat : 239
Honoraires à la charge du Vendeur
Bien En copropriété : NON
* Prix net, hors frais notarié, d'enregistrement et de publicité foncière.
Contactez
ARTHURIMMO.COM SAINTE VICTOIRE
N° de téléphone
Nous contacter