Fontenay sous bois (94120)
Fontenay Sous Bois (94120)
350 000
€ *
- Référence : 940047622
- Dernière mise à jour : 19/12/2025
Pour la nouvelle notation (DPE à partir de juillet 2021), c'est la plus mauvaise des deux performances (énergie, climat) qui est retenue.
Le Cabinet GHT Immo vous propose :
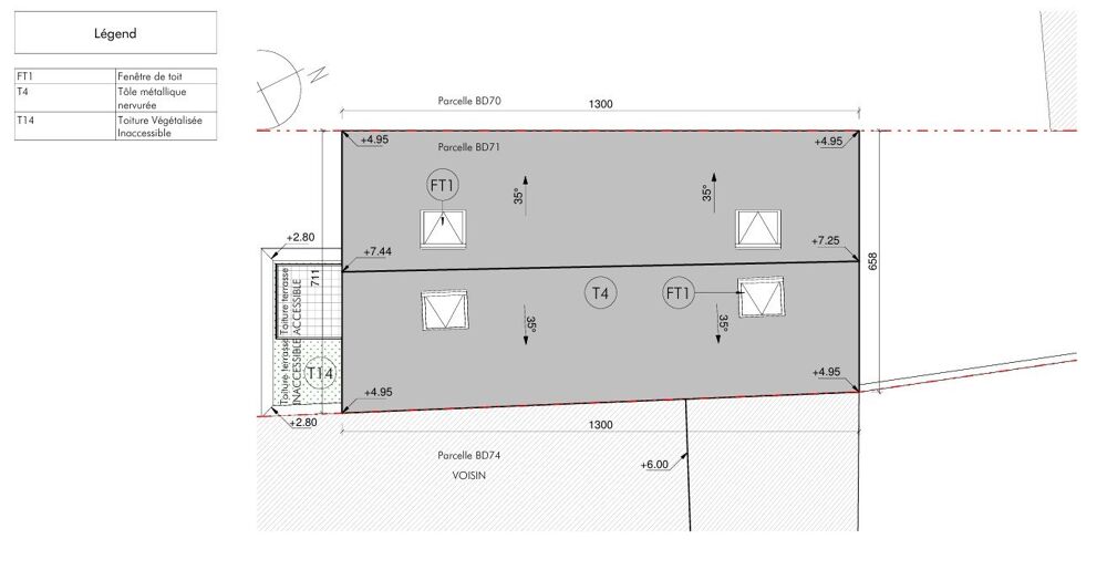
Un projet rare de construction neuve à Fontenay-sous-Bois (94120).
Situé au cœur d'un quartier historique et recherché, ce projet concerne la réalisation d'une maison individuelle en R+1 avec sous-sol, nichée dans un environnement calme, entre immeubles de standing et maisons mitoyennes.
Description du projet :
Démolition d'un ancien local de jardin pour faire place à une maison neuve contemporaine
Architecture soignée mêlant parement minéral et bardage bois
Séjour spacieux et lumineux au rez-de-chaussée, grandes ouvertures au sud pour un confort thermique optimisé
Chambres et pièces d'eau à l'étage
Deux jardins réaménagés et végétalisés au nord et au sud
Terrasse bois au sud pour profiter de l'extérieur
Caractéristiques :
Maison R+1 avec sous-sol
Façades en pierre beige clair et bardage bois
Toiture en métal gris clair
Espaces verts aménagés, gestion des eaux pluviales optimisée
Clôtures existantes conservées ou intégrées au projet
Accès & stationnement :
Accès piéton par une voie calme
Place de stationnement dédiée, située à proximité immédiate
Un projet pensé pour s'intégrer harmonieusement dans son environnement, tout en offrant un cadre de vie confortable, moderne et éco-responsable.
Contactez dès maintenant le cabinet GHT Immo pour plus d'informations sur ce projet unique.
Prix net vendeur : 330000 euros
Pourcentage des Honoraires à la charge de l'Acquéreur : 6.06 %
Honoraires à la charge de l'Acquéreur : oui
Un projet rare de construction neuve à Fontenay-sous-Bois (94120).
Situé au cœur d'un quartier historique et recherché, ce projet concerne la réalisation d'une maison individuelle en R+1 avec sous-sol, nichée dans un environnement calme, entre immeubles de standing et maisons mitoyennes.
Description du projet :
Démolition d'un ancien local de jardin pour faire place à une maison neuve contemporaine
Architecture soignée mêlant parement minéral et bardage bois
Séjour spacieux et lumineux au rez-de-chaussée, grandes ouvertures au sud pour un confort thermique optimisé
Chambres et pièces d'eau à l'étage
Deux jardins réaménagés et végétalisés au nord et au sud
Terrasse bois au sud pour profiter de l'extérieur
Caractéristiques :
Maison R+1 avec sous-sol
Façades en pierre beige clair et bardage bois
Toiture en métal gris clair
Espaces verts aménagés, gestion des eaux pluviales optimisée
Clôtures existantes conservées ou intégrées au projet
Accès & stationnement :
Accès piéton par une voie calme
Place de stationnement dédiée, située à proximité immédiate
Un projet pensé pour s'intégrer harmonieusement dans son environnement, tout en offrant un cadre de vie confortable, moderne et éco-responsable.
Contactez dès maintenant le cabinet GHT Immo pour plus d'informations sur ce projet unique.
Prix net vendeur : 330000 euros
Pourcentage des Honoraires à la charge de l'Acquéreur : 6.06 %
Honoraires à la charge de l'Acquéreur : oui
* Prix net, hors frais notarié, d'enregistrement et de publicité foncière.
Contactez
GHT IMMO
N° de téléphone
Nous contacter