Vente Terrain 7 pièces

Terrain - 7 pièce(s)

239 000 € *
  •   Référence : 11JH030/12912
  •   Dernière mise à jour : 06/03/2026

NC
Classe Énergie
Non communiqué
info
NC
Indice d'émissions de gaz à effet de serre
Non communiqué
info
Pour la nouvelle notation (DPE à partir de juillet 2021), c'est la plus mauvaise des deux performances (énergie, climat) qui est retenue.

Espagne

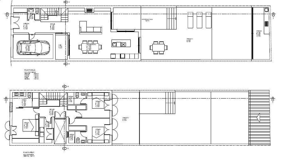
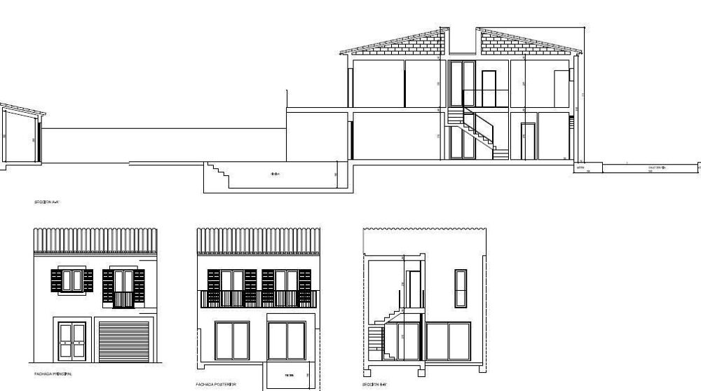
Opportunité unique à Biniali, Majorque : ~~Terrain à bâtir avec permis de construire prêt pour la construction d'une maison de ville moderne avec piscine et jardin. Situé dans le village pittoresque de Biniali, appartenant à la municipalité de Sencelles, ce terrain offre la possibilité de vivre dans un environnement calme et rural à seulement 25 minutes de route de Palma.~~Le terrain est le dernier disponible d'un ensemble de neuf parcelles. Les parcelles voisines, certaines en cours de construction et d'autres déjà achevées, garantissent un environnement de croissance et de développement.~~Tous les services de base sont disponibles sur le terrain, y compris l'eau, l'électricité et les raccordements aux égouts. De plus, il sera livré avec un permis de construire en cours de validité, ce qui permettra de commencer la construction presque immédiatement.~~Le projet architectural prévoit une maison de ville à deux étages d'une superficie approximative de 211m2, dont 15m2 pour un garage pour un véhicule. Au rez-de-chaussée, il y a un hall d'entrée, un salon/salle à manger lumineux avec une cuisine ouverte, des toilettes pour les invités et un garage pour une voiture. A l'étage supérieur, il y a trois chambres doubles spacieuses, chacune avec sa propre salle de bains en suite, et une buanderie.~~La conception comprend également des espaces extérieurs bien utilisés, avec un total d'environ 42m2 de terrasses et un jardin privé d'environ 70m2. A noter la piscine de 7x3 mètres, idéale pour profiter du climat méditerranéen, ainsi qu'un porche pour le barbecue, parfait pour les réunions en plein air avec la famille et les amis.~~Cette propriété offre une opportunité exceptionnelle de construire la maison de vos rêves dans un cadre idyllique, entouré par la nature et avec toutes les commodités à portée de main. ~~Ne laissez pas passer cette opportunité unique à Biniali !~~Agence immobilière inscrite au Registre Officiel des Agents Immobiliers des Iles Baléares ROAIIB sous le numéro GOIBE740280/2024

* Prix net, hors frais notarié, d'enregistrement et de publicité foncière.

Contactez
GESTPROPIEDAD

Adresse postale

carretera andratx, 2, local 5
PALMA
Itinéraire

N° de téléphone

Nous contacter

Contactez-nous pour l'annonce "Espagne", Réf. : 11JH030/12912

* Tous les champs sont obligatoires ** En cas de transmission de coordonnées téléphoniques vous reconnaissez accepter expressément d'être rappelé par l'annonceur